1991March
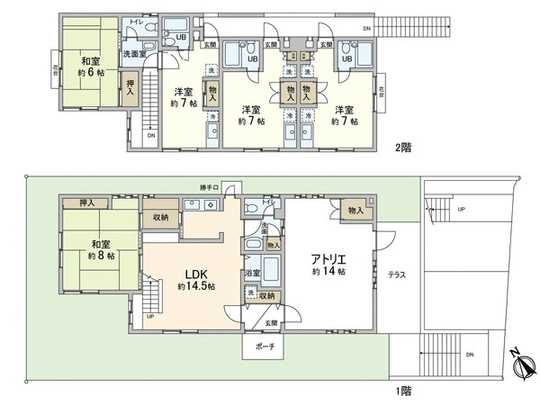
49,700,000 yen, 3LDK, 150.56 sq m
Used Homes » Kanto » Tokyo » Machida
 
| | Machida, Tokyo 東京都町田市 |
| Odakyu line "Tamagawa Gakuen before" walk 3 minutes 小田急線「玉川学園前」歩3分 |
Price 価格 | | 49,700,000 yen 4970万円 | Floor plan 間取り | | 3LDK 3LDK | Units sold 販売戸数 | | 1 units 1戸 | Land area 土地面積 | | 198.35 sq m (registration) 198.35m2(登記) | Building area 建物面積 | | 150.56 sq m (registration) 150.56m2(登記) | Driveway burden-road 私道負担・道路 | | Nothing, Southeast 6m width (contact the road width 8m) 無、南東6m幅(接道幅8m) | Completion date 完成時期(築年月) | | March 1991 1991年3月 | Address 住所 | | Machida, Tokyo Tamagawa Gakuen 7 東京都町田市玉川学園7 | Traffic 交通 | | Odakyu line "Tamagawa Gakuen before" walk 3 minutes 小田急線「玉川学園前」歩3分
| Person in charge 担当者より | | Rep Hiroyuki Machida [Director] 担当者町田弘幸【主任】 | Contact お問い合せ先 | | Mitsui Rehouse Machida Mitsui Fudosan Realty (Ltd.) TEL: 0120-944031 [Toll free] Please contact the "saw SUUMO (Sumo)" 三井のリハウス町田店三井不動産リアルティ(株)TEL:0120-944031【通話料無料】「SUUMO(スーモ)を見た」と問い合わせください | Building coverage, floor area ratio 建ぺい率・容積率 | | 40% ・ 80% 40%・80% | Time residents 入居時期 | | Consultation 相談 | Land of the right form 土地の権利形態 | | Ownership 所有権 | Structure and method of construction 構造・工法 | | Wooden 2-story 木造2階建 | Use district 用途地域 | | One low-rise 1種低層 | Overview and notices その他概要・特記事項 | | Contact: Hiroyuki Machida [Director] , Parking: car space 担当者:町田弘幸【主任】、駐車場:カースペース | Company profile 会社概要 | | <Mediation> Minister of Land, Infrastructure and Transport (13) No. 000777 (one company) Property distribution management Association (Corporation) metropolitan area real estate Fair Trade Council member Mitsui Rehouse Machida Mitsui Fudosan Realty Co. Yubinbango194-0022 Machida, Tokyo Morino 1-13-14 Nissay Machida building 6th floor <仲介>国土交通大臣(13)第000777号(一社)不動産流通経営協会会員 (公社)首都圏不動産公正取引協議会加盟三井のリハウス町田店三井不動産リアルティ(株)〒194-0022 東京都町田市森野1-13-14 日本生命町田ビル6階 |
 Local appearance photo
現地外観写真
 Floor plan
間取り図
Location
|