Used Homes » Kanto » Tokyo » Machida
 
| | Machida, Tokyo 東京都町田市 |
| Odakyu line "Machida" walk 23 minutes 小田急線「町田」歩23分 |
| Immediate Available, 2 along the line more accessible, Super close, It is close to the city, Facing south, Yang per good, A quiet residential area, Around traffic fewer, Or more before road 6mese-style room, Shaping land, Toilet 2 places, 2-story, The window in the bathroom 即入居可、2沿線以上利用可、スーパーが近い、市街地が近い、南向き、陽当り良好、閑静な住宅地、周辺交通量少なめ、前道6m以上、和室、整形地、トイレ2ヶ所、2階建、浴室に窓 |
| Immediate Available, 2 along the line more accessible, Super close, It is close to the city, Facing south, Yang per good, A quiet residential area, Around traffic fewer, Or more before road 6mese-style room, Shaping land, Toilet 2 places, 2-story, The window in the bathroom, All rooms are two-sided lighting, Flat terrain, 2 family house 即入居可、2沿線以上利用可、スーパーが近い、市街地が近い、南向き、陽当り良好、閑静な住宅地、周辺交通量少なめ、前道6m以上、和室、整形地、トイレ2ヶ所、2階建、浴室に窓、全室2面採光、平坦地、2世帯住宅 |
Features pickup 特徴ピックアップ | | Immediate Available / 2 along the line more accessible / Super close / It is close to the city / Facing south / Yang per good / A quiet residential area / Around traffic fewer / Or more before road 6m / Japanese-style room / Shaping land / Toilet 2 places / 2-story / The window in the bathroom / All rooms are two-sided lighting / Flat terrain / 2 family house 即入居可 /2沿線以上利用可 /スーパーが近い /市街地が近い /南向き /陽当り良好 /閑静な住宅地 /周辺交通量少なめ /前道6m以上 /和室 /整形地 /トイレ2ヶ所 /2階建 /浴室に窓 /全室2面採光 /平坦地 /2世帯住宅 | Price 価格 | | 28 million yen 2800万円 | Floor plan 間取り | | 4DDKK 4DDKK | Units sold 販売戸数 | | 1 units 1戸 | Total units 総戸数 | | 1 units 1戸 | Land area 土地面積 | | 113.07 sq m (registration) 113.07m2(登記) | Building area 建物面積 | | 75.73 sq m (measured) 75.73m2(実測) | Driveway burden-road 私道負担・道路 | | Nothing, Southeast 6m width (contact the road width 8m) 無、南東6m幅(接道幅8m) | Completion date 完成時期(築年月) | | January 1984 1984年1月 | Address 住所 | | Tokyo Machida Morino 6 東京都町田市森野6 | Traffic 交通 | | Odakyu line "Machida" walk 23 minutes JR Yokohama Line "Kobuchi" walk 20 minutes Odakyu line "Machida" bus 4 minutes Morino 6-chome, walk 3 minutes 小田急線「町田」歩23分 JR横浜線「古淵」歩20分 小田急線「町田」バス4分森野6丁目歩3分
| Related links 関連リンク | | [Related Sites of this company] 【この会社の関連サイト】 | Person in charge 担当者より | | Person in charge of real-estate and building Hayashida Yang Age: 40 Daigyokai experience: shopping to be a milestone in 25 years your life! We would appreciate by all means to help. 担当者宅建林田 陽年齢:40代業界経験:25年お客様の人生において節目となるお買い物!是非お手伝いさせて頂ければ幸いです。 | Contact お問い合せ先 | | TEL: 0800-603-2731 [Toll free] mobile phone ・ Also available from PHS Caller ID is not notified Please contact the "saw SUUMO (Sumo)" If it does not lead, If the real estate company TEL:0800-603-2731【通話料無料】携帯電話・PHSからもご利用いただけます 発信者番号は通知されません 「SUUMO(スーモ)を見た」と問い合わせください つながらない方、不動産会社の方は
| Building coverage, floor area ratio 建ぺい率・容積率 | | 40% ・ 80% 40%・80% | Time residents 入居時期 | | Immediate available 即入居可 | Land of the right form 土地の権利形態 | | Ownership 所有権 | Structure and method of construction 構造・工法 | | Wooden 2-story 木造2階建 | Use district 用途地域 | | One low-rise 1種低層 | Other limitations その他制限事項 | | Regulations have by the Landscape Act, Height district, Site area minimum Yes, Shade limit Yes 景観法による規制有、高度地区、敷地面積最低限度有、日影制限有 | Overview and notices その他概要・特記事項 | | Contact: Hayashida Yang, Facilities: Public Water Supply, This sewage, Parking: car space 担当者:林田 陽、設備:公営水道、本下水、駐車場:カースペース | Company profile 会社概要 | | <Mediation> Governor of Tokyo (1) No. 089264 (Corporation) Tokyo Metropolitan Government Building Lots and Buildings Transaction Business Association (Corporation) metropolitan area real estate Fair Trade Council member (Ltd.) Urban Home Machida branch Yubinbango194-0022 Tokyo Machida Morino 1-34-10 first Yazawa building first floor <仲介>東京都知事(1)第089264号(公社)東京都宅地建物取引業協会会員 (公社)首都圏不動産公正取引協議会加盟(株)アーバンホーム町田支店〒194-0022 東京都町田市森野1-34-10 第1矢沢ビル1階 |
Local appearance photo現地外観写真  Local (September 2013) Shooting
現地(2013年9月)撮影
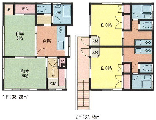
Floor plan間取り図  28 million yen, 4DDKK, Land area 113.07 sq m , Building area 75.73 sq m
2800万円、4DDKK、土地面積113.07m2、建物面積75.73m2
Local appearance photo現地外観写真  Local (September 2013) Shooting
現地(2013年9月)撮影
Local photos, including front road前面道路含む現地写真  Local (September 2013) Shooting
現地(2013年9月)撮影
Primary school小学校  1174m until Machida Municipal Machida fourth elementary school
町田市立町田第四小学校まで1174m
Government office役所  1200m to Machida City Hall
町田市役所まで1200m
Location
|