|
|
Machida, Tokyo
東京都町田市
|
|
Odakyu line "Machida" bus 6 minutes Takinosawa walk 3 minutes
小田急線「町田」バス6分滝の沢歩3分
|
|
Beautiful residence of H.25_Nen October renovation completed, Immediate Available ・ Now new life start !!
H.25年10月リフォーム済のきれいな住まい、即入居可・今すぐ新生活スタート!!
|
|
Family Mart (about 180m) ・ Koide clinic (about 350m) ・ Uerushia (about 400m)
ファミリーマート(約180m)・小出クリニック(約350m)・ウエルシア(約400m)
|
Features pickup 特徴ピックアップ | | Immediate Available / 2 along the line more accessible / Interior renovation / System kitchen / Yang per good / All room storage / A quiet residential area / Corner lot / Japanese-style room / Shaping land / Washbasin with shower / Toilet 2 places / Bathroom 1 tsubo or more / 2-story / Warm water washing toilet seat / The window in the bathroom / Ventilation good 即入居可 /2沿線以上利用可 /内装リフォーム /システムキッチン /陽当り良好 /全居室収納 /閑静な住宅地 /角地 /和室 /整形地 /シャワー付洗面台 /トイレ2ヶ所 /浴室1坪以上 /2階建 /温水洗浄便座 /浴室に窓 /通風良好 |
Price 価格 | | 29,800,000 yen 2980万円 |
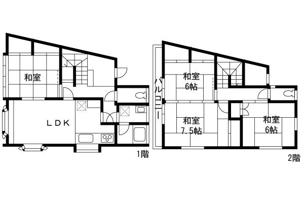
Floor plan 間取り | | 4LDK 4LDK |
Units sold 販売戸数 | | 1 units 1戸 |
Total units 総戸数 | | 1 units 1戸 |
Land area 土地面積 | | 109.09 sq m (registration) 109.09m2(登記) |
Building area 建物面積 | | 96.56 sq m (registration) 96.56m2(登記) |
Driveway burden-road 私道負担・道路 | | 26 sq m , North 4m width, West 4m width 26m2、北4m幅、西4m幅 |
Completion date 完成時期(築年月) | | November 1987 1987年11月 |
Address 住所 | | Machida, Tokyo Kiso East 1 東京都町田市木曽東1 |
Traffic 交通 | | Odakyu line "Machida" bus 6 minutes Takinosawa walk 3 minutes JR Yokohama Line "Kobuchi" walk 15 minutes JR Yokohama Line "Fuchinobe" walk 49 minutes 小田急線「町田」バス6分滝の沢歩3分 JR横浜線「古淵」歩15分 JR横浜線「淵野辺」歩49分
|
Contact お問い合せ先 | | TEL: 0800-603-0791 [Toll free] mobile phone ・ Also available from PHS Caller ID is not notified Please contact the "saw SUUMO (Sumo)" If it does not lead, If the real estate company TEL:0800-603-0791【通話料無料】携帯電話・PHSからもご利用いただけます 発信者番号は通知されません 「SUUMO(スーモ)を見た」と問い合わせください つながらない方、不動産会社の方は
|
Building coverage, floor area ratio 建ぺい率・容積率 | | 40% ・ 80% 40%・80% |
Time residents 入居時期 | | Immediate available 即入居可 |
Land of the right form 土地の権利形態 | | Ownership 所有権 |
Structure and method of construction 構造・工法 | | Wooden 2-story 木造2階建 |
Renovation リフォーム | | October 2013 interior renovation completed (kitchen ・ bathroom ・ toilet ・ wall ・ floor ・ tatami ・ Sliding door, etc.) 2013年10月内装リフォーム済(キッチン・浴室・トイレ・壁・床・畳・襖等) |
Use district 用途地域 | | One low-rise 1種低層 |
Overview and notices その他概要・特記事項 | | Facilities: Public Water Supply, This sewage, Parking: car space 設備:公営水道、本下水、駐車場:カースペース |
Company profile 会社概要 | | <Mediation> Minister of Land, Infrastructure and Transport (7) No. 003744 (the Company), Kanagawa Prefecture Building Lots and Buildings Transaction Business Association (Corporation) metropolitan area real estate Fair Trade Council member Asahi Land and Building Co., Ltd. Daiwa branch sales 2 Division Yubinbango242-0016 Yamato-shi, Kanagawa Yamatominami 1-12-22 Kawamoto building <仲介>国土交通大臣(7)第003744号(社)神奈川県宅地建物取引業協会会員 (公社)首都圏不動産公正取引協議会加盟朝日土地建物(株)大和支店営業2課〒242-0016 神奈川県大和市大和南1-12-22 川本ビル |