Used Homes » Kanto » Tokyo » Machida


Machida, Tokyo
JR Yokohama Line "Kobuchi" 12 minutes water tower before walk 2 minutes by bus
Southwest corner lot ・ A quiet residential area ・ Sunny! A quiet residential corner lot shaping land yang per good 2-story Japanese-style whole room 6 tatami mats or more living stairs all the living room storage systems kitchen immediately Available
Machidakita elementary school elementary school 500m Yamazaki junior high 1400m canary kindergarten 650m super Santoku ・ Machida Kitamise 650m Shinagawa clinic 1500m quiet residential corner lot shaping land yang per good 2-story Japanese-style whole room 6 tatami mats or more living stairs all the living room storage systems kitchen immediately Available
Features pickup
Immediate Available / System kitchen / Yang per good / All room storage / A quiet residential area / Corner lot / Japanese-style room / Shaping land / 2-story / All room 6 tatami mats or more / Living stairs
Price
16.8 million yen
Floor plan
4LDK
Units sold
1 units
Land area
113.55 sq m (measured)
Building area
82.96 sq m (registration)
Driveway burden-road
25.19 sq m , South 4m width (contact the road width 8.6m), West 4m width (contact the road width 9.6m)
Completion date
March 1973
Address
Machida, Tokyo Honmachida
Traffic
JR Yokohama Line "Kobuchi" 12 minutes water tower before walk 2 minutes by bus
Odakyu line "Tsurukawa" bus 18 minutes Imai Ayumi Yato 6 minutes
Tamasen Odakyu "Kurokawa" bus 22 minutes Fujino stand estates walk 13 minutes
Contact
TEL: 0800-603-8480 [Toll free] mobile phone ・ Also available from PHS
Caller ID is not notified
Please contact the "saw SUUMO (Sumo)"
If it does not lead, If the real estate company
Building coverage, floor area ratio
Fifty percent ・ 80%
Time residents
Immediate available
Land of the right form
Ownership
Structure and method of construction
Wooden 2-story
Renovation
2013 January exterior renovation completed
Use district
One low-rise
Other limitations
Building restrictions have per on the cliff, Built-in garage 12.37 square meters including
Overview and notices
Facilities: Public Water Supply, This sewage, Individual LPG, Parking: car space
Company profile
<Mediation> Kanagawa Governor (2) Article 026 475 issue (stock) residence of square HOMESyubinbango252-0231 Sagamihara, Kanagawa Prefecture, Chuo-ku, Sagamihara 5-1-2A


Local appearance photo

Local appearance photo. It is also a good per sun in the southwest corner lot of a quiet residential area. Heisei you Yes to building outer wall construction in 25 years in January.
It is also a good per sun in the southwest corner lot of a quiet residential area. Heisei you Yes to building outer wall construction in 25 years in January.

Local appearance photo
Local appearance photo

Local appearance photo
Local appearance photo

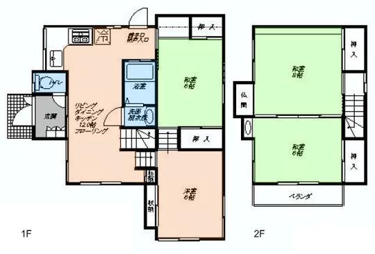
Floor plan

Floor plan. 16.8 million yen, 4LDK, Land area 113.55 sq m , Building area 82.96 sq m
16.8 million yen, 4LDK, Land area 113.55 sq m , Building area 82.96 sq m

Local appearance photo
Local appearance photo

Local photos, including front road
Local photos, including front road

Parking lot
Parking lot

Hospital

Hospital. 1500m to Shinagawa clinic
1500m to Shinagawa clinic

Other
Other

Local photos, including front road
Local photos, including front road

Other

Other. Canary kindergarten 650m
Canary kindergarten 650m

Local photos, including front road
Local photos, including front road

Local photos, including front road
Local photos, including front road



Location