Used Homes » Kanto » Tokyo » Machida
 
| | Machida, Tokyo 東京都町田市 |
| Odakyu line "Machida" 15 minutes water tower before walking 5 minutes by bus 小田急線「町田」バス15分給水塔前歩5分 |
| Parking two Allowed, LDK18 tatami mats or more, Dish washing dryer, Face-to-face kitchen, Floor heating, Construction housing performance with evaluation, Design house performance with evaluation, 2 along the line more accessible, Super close, Facing south, Bathroom Dryer, Exposure to the sun 駐車2台可、LDK18畳以上、食器洗乾燥機、対面式キッチン、床暖房、建設住宅性能評価付、設計住宅性能評価付、2沿線以上利用可、スーパーが近い、南向き、浴室乾燥機、陽当り |
| Construction housing performance with evaluation, Design house performance with evaluation, 2 along the line more accessible, LDK18 tatami mats or more, Facing south, Bathroom Dryer, Parking two Allowed, Super close, Yang per good, All room storage, A quiet residential areaese-style room, Shaping land, Washbasin with shower, Face-to-face kitchen, Bathroom 1 tsubo or more, 2-story, South balcony, Nantei, TV monitor interphone, Leafy residential area, Dish washing dryer, Walk-in closet, All rooms are two-sided lighting, A large gap between the neighboring house, Flat terrain, Floor heating 建設住宅性能評価付、設計住宅性能評価付、2沿線以上利用可、LDK18畳以上、南向き、浴室乾燥機、駐車2台可、スーパーが近い、陽当り良好、全居室収納、閑静な住宅地、和室、整形地、シャワー付洗面台、対面式キッチン、浴室1坪以上、2階建、南面バルコニー、南庭、TVモニタ付インターホン、緑豊かな住宅地、食器洗乾燥機、ウォークインクロゼット、全室2面採光、隣家との間隔が大きい、平坦地、床暖房 |
Features pickup 特徴ピックアップ | | Construction housing performance with evaluation / Design house performance with evaluation / Parking two Allowed / 2 along the line more accessible / LDK18 tatami mats or more / Super close / Facing south / Bathroom Dryer / Yang per good / All room storage / A quiet residential area / Japanese-style room / Shaping land / Washbasin with shower / Face-to-face kitchen / Bathroom 1 tsubo or more / 2-story / South balcony / Nantei / TV monitor interphone / Leafy residential area / Dish washing dryer / Walk-in closet / All rooms are two-sided lighting / A large gap between the neighboring house / Flat terrain / Floor heating 建設住宅性能評価付 /設計住宅性能評価付 /駐車2台可 /2沿線以上利用可 /LDK18畳以上 /スーパーが近い /南向き /浴室乾燥機 /陽当り良好 /全居室収納 /閑静な住宅地 /和室 /整形地 /シャワー付洗面台 /対面式キッチン /浴室1坪以上 /2階建 /南面バルコニー /南庭 /TVモニタ付インターホン /緑豊かな住宅地 /食器洗乾燥機 /ウォークインクロゼット /全室2面採光 /隣家との間隔が大きい /平坦地 /床暖房 | Price 価格 | | 37,800,000 yen 3780万円 | Floor plan 間取り | | 4LDK 4LDK | Units sold 販売戸数 | | 1 units 1戸 | Total units 総戸数 | | 1 units 1戸 | Land area 土地面積 | | 156.11 sq m (registration) 156.11m2(登記) | Building area 建物面積 | | 112.82 sq m (registration) 112.82m2(登記) | Driveway burden-road 私道負担・道路 | | Nothing, West 4m width (contact the road width 14m) 無、西4m幅(接道幅14m) | Completion date 完成時期(築年月) | | March 2006 2006年3月 | Address 住所 | | Machida, Tokyo Honmachida 東京都町田市本町田 | Traffic 交通 | | Odakyu line "Machida" 15 minutes water tower before walking 5 minutes by bus JR Yokohama Line "Kobuchi" walk 37 minutes Odakyu line "Tamagawa Gakuen before" walk 41 minutes 小田急線「町田」バス15分給水塔前歩5分 JR横浜線「古淵」歩37分 小田急線「玉川学園前」歩41分
| Related links 関連リンク | | [Related Sites of this company] 【この会社の関連サイト】 | Person in charge 担当者より | | Person in charge of real-estate and building Hosoi Makoto Age: 30 Daigyokai Experience: 7 years [Favorite food] Meat General [hobby] clean up, reading [Word] There are replacement experience! Because it will or can make proposals with a view different to various talk, Please contact us also that other than property. 担当者宅建細井 誠年齢:30代業界経験:7年【好きな食べ物】お肉全般 【趣味】掃除、読書 【一言】買い替え経験あります! 色々お話すると違う観点でご提案出来たり致しますので、物件以外の事でもご相談ください。 | Contact お問い合せ先 | | TEL: 0800-603-2731 [Toll free] mobile phone ・ Also available from PHS Caller ID is not notified Please contact the "saw SUUMO (Sumo)" If it does not lead, If the real estate company TEL:0800-603-2731【通話料無料】携帯電話・PHSからもご利用いただけます 発信者番号は通知されません 「SUUMO(スーモ)を見た」と問い合わせください つながらない方、不動産会社の方は
| Time residents 入居時期 | | January 2014 2014年1月 | Land of the right form 土地の権利形態 | | Ownership 所有権 | Structure and method of construction 構造・工法 | | Wooden 2-story 木造2階建 | Construction 施工 | | (Ltd.) Urban Home (株)アーバンホーム | Use district 用途地域 | | One low-rise 1種低層 | Other limitations その他制限事項 | | Regulations have by the Landscape Act, Residential land development construction regulation area, Height district, Site area minimum Yes, Shade limit Yes 景観法による規制有、宅地造成工事規制区域、高度地区、敷地面積最低限度有、日影制限有 | Overview and notices その他概要・特記事項 | | Contact: Hosoi Truth, Facilities: Public Water Supply, This sewage, Parking: car space 担当者:細井 誠、設備:公営水道、本下水、駐車場:カースペース | Company profile 会社概要 | | <Mediation> Governor of Tokyo (1) No. 089264 (Corporation) Tokyo Metropolitan Government Building Lots and Buildings Transaction Business Association (Corporation) metropolitan area real estate Fair Trade Council member (Ltd.) Urban Home Machida branch Yubinbango194-0022 Tokyo Machida Morino 1-34-10 first Yazawa building first floor <仲介>東京都知事(1)第089264号(公社)東京都宅地建物取引業協会会員 (公社)首都圏不動産公正取引協議会加盟(株)アーバンホーム町田支店〒194-0022 東京都町田市森野1-34-10 第1矢沢ビル1階 |
Local photos, including front road前面道路含む現地写真  Local (11 May 2013) Shooting
現地(2013年11月)撮影
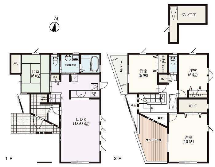
Floor plan間取り図  37,800,000 yen, 4LDK, Land area 156.11 sq m , Building area 112.82 sq m
3780万円、4LDK、土地面積156.11m2、建物面積112.82m2
Local appearance photo現地外観写真  Local (11 May 2013) Shooting
現地(2013年11月)撮影
Livingリビング  Indoor (11 May 2013) Shooting
室内(2013年11月)撮影
Bathroom浴室  Indoor (11 May 2013) Shooting
室内(2013年11月)撮影
Kitchenキッチン  Indoor (11 May 2013) Shooting
室内(2013年11月)撮影
Entrance玄関  Local (11 May 2013) Shooting
現地(2013年11月)撮影
Toiletトイレ  Indoor (11 May 2013) Shooting
室内(2013年11月)撮影
Garden庭  Local (11 May 2013) Shooting
現地(2013年11月)撮影
Other introspectionその他内観  Indoor (11 May 2013) Shooting
室内(2013年11月)撮影
Compartment figure区画図  37,800,000 yen, 4LDK, Land area 156.11 sq m , Building area 112.82 sq m
3780万円、4LDK、土地面積156.11m2、建物面積112.82m2
Otherその他  Local (11 May 2013) Shooting
現地(2013年11月)撮影
Livingリビング  Indoor (11 May 2013) Shooting
室内(2013年11月)撮影
Location
|