1997April
24,800,000 yen, 3LDK, 89.41 sq m
Used Homes » Kanto » Tokyo » Machida
 
| | Machida, Tokyo 東京都町田市 |
| JR Yokohama Line "Aihara" bus 7 minutes true rice walk 3 minutes JR横浜線「相原」バス7分真米歩3分 |
Price 価格 | | 24,800,000 yen 2480万円 | Floor plan 間取り | | 3LDK 3LDK | Units sold 販売戸数 | | 1 units 1戸 | Land area 土地面積 | | 206.69 sq m (registration) 206.69m2(登記) | Building area 建物面積 | | 89.41 sq m (registration) 89.41m2(登記) | Driveway burden-road 私道負担・道路 | | Nothing 無 | Completion date 完成時期(築年月) | | April 1997 1997年4月 | Address 住所 | | Machida, Tokyo Aihara-cho 東京都町田市相原町 | Traffic 交通 | | JR Yokohama Line "Aihara" bus 7 minutes true rice walk 3 minutes JR横浜線「相原」バス7分真米歩3分
| Contact お問い合せ先 | | TEL: 0800-805-6261 [Toll free] mobile phone ・ Also available from PHS Caller ID is not notified Please contact the "saw SUUMO (Sumo)" If it does not lead, If the real estate company TEL:0800-805-6261【通話料無料】携帯電話・PHSからもご利用いただけます 発信者番号は通知されません 「SUUMO(スーモ)を見た」と問い合わせください つながらない方、不動産会社の方は
| Building coverage, floor area ratio 建ぺい率・容積率 | | 40% ・ 80% 40%・80% | Time residents 入居時期 | | Consultation 相談 | Land of the right form 土地の権利形態 | | Ownership 所有権 | Structure and method of construction 構造・工法 | | Wooden 2-story 木造2階建 | Use district 用途地域 | | One low-rise 1種低層 | Overview and notices その他概要・特記事項 | | Facilities: Public Water Supply, This sewage, Individual LPG, Parking: car space 設備:公営水道、本下水、個別LPG、駐車場:カースペース | Company profile 会社概要 | | <Mediation> Minister of Land, Infrastructure and Transport (3) The 006,183 No. housing Information Center Tama Center store Seongnam Construction (Ltd.) Yubinbango206-0014 Tokyo Tama cotter 1166-1 <仲介>国土交通大臣(3)第006183号住宅情報館 多摩センター店城南建設(株)〒206-0014 東京都多摩市乞田1166-1 |
Local appearance photo現地外観写真  Building appearance
建物外観
Non-living roomリビング以外の居室  Japanese style room
和室
 Kitchen
キッチン
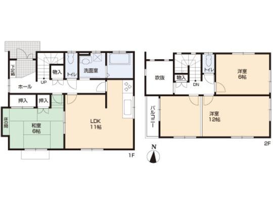
Floor plan間取り図  24,800,000 yen, 3LDK, Land area 206.69 sq m , Building area 89.41 sq m floor plan
2480万円、3LDK、土地面積206.69m2、建物面積89.41m2 間取り図
Non-living roomリビング以外の居室  Western style room
洋室
 Toilet
トイレ
Location
|