|
|
Setagaya-ku, Tokyo
東京都世田谷区
|
|
Oimachi Line Tokyu "Oyamadai" walk 9 minutes
東急大井町線「尾山台」歩9分
|
|
■ Siemens on the south side about 6m public road ■ Mitsubishijishohomu construction Commitment custom home ■ All-electric and eco Jaws ■ Can you use it as a two-family house!
■南側約6m公道に面す ■三菱地所ホーム施工 こだわりの注文住宅 ■オール電化&エコジョーズ ■二世帯住宅としてお使いいただけます!
|
Features pickup 特徴ピックアップ | | Siemens south road / Or more before road 6m / All-electric / Attic storage 南側道路面す /前道6m以上 /オール電化 /屋根裏収納 |
Price 価格 | | 128 million yen 1億2800万円 |
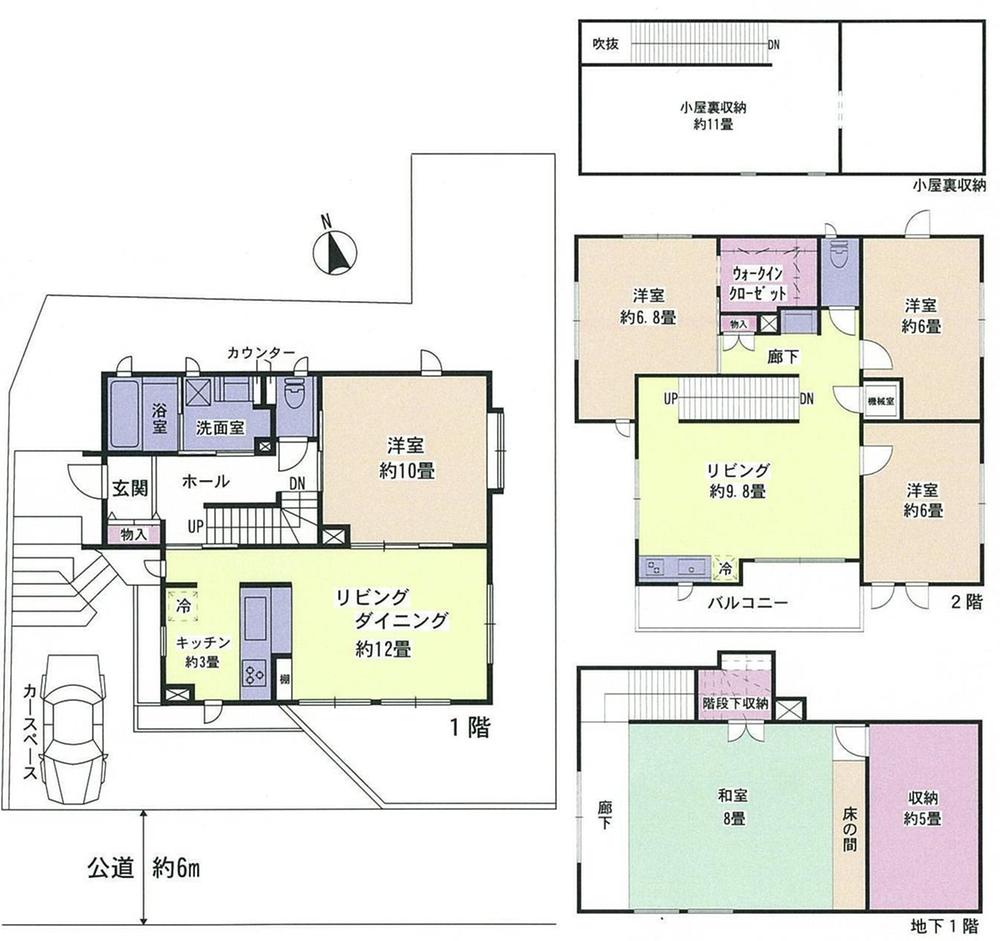
Floor plan 間取り | | 5LDK 5LDK |
Units sold 販売戸数 | | 1 units 1戸 |
Land area 土地面積 | | 169.71 sq m (registration) 169.71m2(登記) |
Building area 建物面積 | | 161.71 sq m (registration) 161.71m2(登記) |
Driveway burden-road 私道負担・道路 | | Nothing, South 6m width 無、南6m幅 |
Completion date 完成時期(築年月) | | January 2010 2010年1月 |
Address 住所 | | Setagaya-ku, Tokyo Oyamadai 2 東京都世田谷区尾山台2 |
Traffic 交通 | | Oimachi Line Tokyu "Oyamadai" walk 9 minutes 東急大井町線「尾山台」歩9分
|
Person in charge 担当者より | | Rep Ito 担当者伊藤 |
Contact お問い合せ先 | | TEL: 0800-603-0017 [Toll free] mobile phone ・ Also available from PHS Caller ID is not notified Please contact the "saw SUUMO (Sumo)" If it does not lead, If the real estate company TEL:0800-603-0017【通話料無料】携帯電話・PHSからもご利用いただけます 発信者番号は通知されません 「SUUMO(スーモ)を見た」と問い合わせください つながらない方、不動産会社の方は
|
Building coverage, floor area ratio 建ぺい率・容積率 | | 40% ・ 80% 40%・80% |
Time residents 入居時期 | | Consultation 相談 |
Land of the right form 土地の権利形態 | | Ownership 所有権 |
Structure and method of construction 構造・工法 | | Wooden second floor underground 1-story part RC 木造2階地下1階建一部RC |
Use district 用途地域 | | One low-rise 1種低層 |
Other limitations その他制限事項 | | Quasi-fire zones 準防火地域 |
Overview and notices その他概要・特記事項 | | Contact: Ito, Facilities: Public Water Supply, This sewage, All-electric, Parking: car space 担当者:伊藤、設備:公営水道、本下水、オール電化、駐車場:カースペース |
Company profile 会社概要 | | <Mediation> Minister of Land, Infrastructure and Transport (12) No. 001168 (one company) Real Estate Association (Corporation) metropolitan area real estate Fair Trade Council member Odakyu Real Estate Co., Ltd. (stock) Shinjuku 160-0023 Tokyo Nishi-Shinjuku, Shinjuku-ku, 1-5-1 Odakyu Shinjuku Nishiguchi Station Building No. 102 (Odakyu Hulk first floor) <仲介>国土交通大臣(12)第001168号(一社)不動産協会会員 (公社)首都圏不動産公正取引協議会加盟小田急不動産(株)新宿店〒160-0023 東京都新宿区西新宿1-5-1 小田急新宿西口駅前ビル102号(小田急ハルク1階) |