2008September
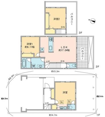
95,800,000 yen, 3LDK, 92.75 sq m
Used Homes » Kanto » Tokyo » Setagaya
 
| | Setagaya-ku, Tokyo 東京都世田谷区 |
| Denentoshi Tokyu "Yoga" walk 6 minutes 東急田園都市線「用賀」歩6分 |
Price 価格 | | 95,800,000 yen 9580万円 | Floor plan 間取り | | 3LDK 3LDK | Units sold 販売戸数 | | 1 units 1戸 | Land area 土地面積 | | 93.62 sq m (registration) 93.62m2(登記) | Building area 建物面積 | | 92.75 sq m (registration) 92.75m2(登記) | Driveway burden-road 私道負担・道路 | | Nothing, North 7.9m width (contact the road width 4.9m), East 3.9m width 無、北7.9m幅(接道幅4.9m)、東3.9m幅 | Completion date 完成時期(築年月) | | September 2008 2008年9月 | Address 住所 | | Setagaya-ku, Tokyo Yoga 4 東京都世田谷区用賀4 | Traffic 交通 | | Denentoshi Tokyu "Yoga" walk 6 minutes 東急田園都市線「用賀」歩6分
| Person in charge 担当者より | | Rep Tokumoto Yuichi 担当者徳本 裕一 | Contact お問い合せ先 | | Mitsui Rehouse Yoga shop Mitsui Fudosan Realty (Ltd.) TEL: 0120-923831 [Toll free] Please contact the "saw SUUMO (Sumo)" 三井のリハウス用賀店三井不動産リアルティ(株)TEL:0120-923831【通話料無料】「SUUMO(スーモ)を見た」と問い合わせください | Building coverage, floor area ratio 建ぺい率・容積率 | | Fifty percent ・ Hundred percent 50%・100% | Time residents 入居時期 | | Consultation 相談 | Land of the right form 土地の権利形態 | | Ownership 所有権 | Structure and method of construction 構造・工法 | | Wooden three-story 木造3階建 | Use district 用途地域 | | One low-rise 1種低層 | Overview and notices その他概要・特記事項 | | Contact: Tokumoto Yuichi, Parking: car space 担当者:徳本 裕一、駐車場:カースペース | Company profile 会社概要 | | <Mediation> Minister of Land, Infrastructure and Transport (13) No. 000777 (one company) Property distribution management Association (Corporation) metropolitan area real estate Fair Trade Council member Mitsui Rehouse Yoga shop Mitsui Fudosan Realty Co. Yubinbango158-0097 Setagaya-ku, Tokyo Yoga 4-3-3 Buaidebiru first floor <仲介>国土交通大臣(13)第000777号(一社)不動産流通経営協会会員 (公社)首都圏不動産公正取引協議会加盟三井のリハウス用賀店三井不動産リアルティ(株)〒158-0097 東京都世田谷区用賀4-3-3 ブァイデビル1階 |
 Local appearance photo
現地外観写真
 Floor plan
間取り図
Location
|