Used Homes » Kanto » Tokyo » Setagaya
 
| | Setagaya-ku, Tokyo 東京都世田谷区 |
| Denentoshi Tokyu "Yoga" walk 13 minutes 東急田園都市線「用賀」歩13分 |
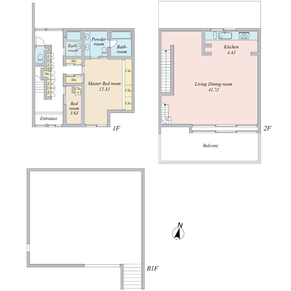
| ■ Home and office (underground first floor office, 1st floor ・ Second floor residence specification) ■ Second floor atrium is open-minded living. ■住居兼事務所(地下1階事務所、1階・2階住居仕様)■2階吹き抜け開放的なリビングです。 |
| ■ Living dining 41.7J ■リビングダイニング41.7J |
Features pickup 特徴ピックアップ | | 2 along the line more accessible / LDK20 tatami mats or more / It is close to the city / Facing south / System kitchen / Yang per good / All room storage / A quiet residential area / Toilet 2 places / 2-story / South balcony / The window in the bathroom / Atrium / Leafy residential area / Urban neighborhood / Ventilation good / All living room flooring / Good view / City gas / Flat terrain 2沿線以上利用可 /LDK20畳以上 /市街地が近い /南向き /システムキッチン /陽当り良好 /全居室収納 /閑静な住宅地 /トイレ2ヶ所 /2階建 /南面バルコニー /浴室に窓 /吹抜け /緑豊かな住宅地 /都市近郊 /通風良好 /全居室フローリング /眺望良好 /都市ガス /平坦地 | Price 価格 | | 145 million yen 1億4500万円 | Floor plan 間取り | | 2LDK 2LDK | Units sold 販売戸数 | | 1 units 1戸 | Total units 総戸数 | | 1 units 1戸 | Land area 土地面積 | | 188.41 sq m (registration) 188.41m2(登記) | Building area 建物面積 | | 231.51 sq m (registration) 231.51m2(登記) | Driveway burden-road 私道負担・道路 | | Nothing, East 4m width 無、東4m幅 | Completion date 完成時期(築年月) | | December 2000 2000年12月 | Address 住所 | | Setagaya-ku, Tokyo Seta 5 東京都世田谷区瀬田5 | Traffic 交通 | | Denentoshi Tokyu "Yoga" walk 13 minutes Denentoshi Tokyu "Futakotamagawa" walk 17 minutes Oimachi Line Tokyu "Kaminoge" walk 25 minutes 東急田園都市線「用賀」歩13分 東急田園都市線「二子玉川」歩17分 東急大井町線「上野毛」歩25分
| Related links 関連リンク | | [Related Sites of this company] 【この会社の関連サイト】 | Person in charge 担当者より | | Person in charge of Kawasaki TakiTakeshi 担当者川崎 滝雄 | Contact お問い合せ先 | | TEL: 0800-603-0386 [Toll free] mobile phone ・ Also available from PHS Caller ID is not notified Please contact the "saw SUUMO (Sumo)" If it does not lead, If the real estate company TEL:0800-603-0386【通話料無料】携帯電話・PHSからもご利用いただけます 発信者番号は通知されません 「SUUMO(スーモ)を見た」と問い合わせください つながらない方、不動産会社の方は
| Building coverage, floor area ratio 建ぺい率・容積率 | | Fifty percent ・ Hundred percent 50%・100% | Time residents 入居時期 | | Consultation 相談 | Land of the right form 土地の権利形態 | | Ownership 所有権 | Structure and method of construction 構造・工法 | | SRC2 floors 1 underground story SRC2階地下1階建 | Use district 用途地域 | | One low-rise 1種低層 | Other limitations その他制限事項 | | Height district, Quasi-fire zones 高度地区、準防火地域 | Overview and notices その他概要・特記事項 | | Contact: Kawasaki TakiTakeshi, Facilities: Public Water Supply, This sewage, City gas, Parking: car space 担当者:川崎 滝雄、設備:公営水道、本下水、都市ガス、駐車場:カースペース | Company profile 会社概要 | | <Mediation> Minister of Land, Infrastructure and Transport (6) No. 004372 (Corporation) metropolitan area real estate Fair Trade Council member (Ltd.) Ken ・ Corporation Jiyugaoka branch Yubinbango152-0035 Meguro-ku, Tokyo Jiyugaoka 2-13-6 KN Jiyugaoka Plaza 5th floor <仲介>国土交通大臣(6)第004372号(公社)首都圏不動産公正取引協議会会員 (株)ケン・コーポレーション自由が丘支店〒152-0035 東京都目黒区自由が丘2-13-6 KN自由が丘プラザ5階 |
Local appearance photo現地外観写真  Local (July 2013) Shooting
現地(2013年7月)撮影
Livingリビング  Indoor (July 2012) shooting
室内(2012年7月)撮影
Floor plan間取り図  145 million yen, 2LDK, Land area 188.41 sq m , Building area 231.51 sq m floor plan
1億4500万円、2LDK、土地面積188.41m2、建物面積231.51m2 間取図
Local appearance photo現地外観写真  Local (July 2012) shooting
現地(2012年7月)撮影
Livingリビング  Indoor (July 2012) shooting
室内(2012年7月)撮影
Bathroom浴室  Indoor (July 2012) shooting
室内(2012年7月)撮影
Kitchenキッチン  Indoor (July 2012) shooting
室内(2012年7月)撮影
Non-living roomリビング以外の居室  Indoor (July 2012) shooting
室内(2012年7月)撮影
Entrance玄関  Local (July 2012) shooting
現地(2012年7月)撮影
Wash basin, toilet洗面台・洗面所  Indoor (July 2012) shooting
室内(2012年7月)撮影
Toiletトイレ  Indoor (July 2012) shooting
室内(2012年7月)撮影
Parking lot駐車場  Local (July 2012) shooting
現地(2012年7月)撮影
Balconyバルコニー  Local (July 2012) shooting
現地(2012年7月)撮影
Other introspectionその他内観  Indoor (July 2012) shooting
室内(2012年7月)撮影
 Local guide map
現地案内図
 Other
その他
Livingリビング  Indoor (July 2012) shooting
室内(2012年7月)撮影
Bathroom浴室  Indoor (July 2012) shooting
室内(2012年7月)撮影
Non-living roomリビング以外の居室  Indoor (July 2012) shooting
室内(2012年7月)撮影
Other introspectionその他内観  Indoor (July 2012) shooting
室内(2012年7月)撮影
Location
|