1991July
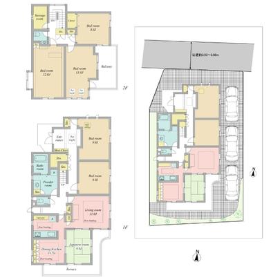
165 million yen, 6LDK + S (storeroom), 188.45 sq m
Used Homes » Kanto » Tokyo » Setagaya
 
| | Setagaya-ku, Tokyo 東京都世田谷区 |
| Odakyu line "Shimokitazawa" walk 9 minutes 小田急線「下北沢」歩9分 |
Price 価格 | | 165 million yen 1億6500万円 | Floor plan 間取り | | 6LDK + S (storeroom) 6LDK+S(納戸) | Units sold 販売戸数 | | 1 units 1戸 | Land area 土地面積 | | 257.74 sq m (registration) 257.74m2(登記) | Building area 建物面積 | | 188.45 sq m (registration) 188.45m2(登記) | Driveway burden-road 私道負担・道路 | | Nothing, North 3.9m width 無、北3.9m幅 | Completion date 完成時期(築年月) | | July 1991 1991年7月 | Address 住所 | | Setagaya-ku, Tokyo Shirota 2 東京都世田谷区代田2 | Traffic 交通 | | Odakyu line "Shimokitazawa" walk 9 minutes Inokashira "Shimokitazawa" walk 9 minutes 小田急線「下北沢」歩9分 京王井の頭線「下北沢」歩9分
| Person in charge 担当者より | | Rep Naomichi Kobayashi 担当者小林直道 | Contact お問い合せ先 | | TEL: 0800-603-0389 [Toll free] mobile phone ・ Also available from PHS Caller ID is not notified Please contact the "saw SUUMO (Sumo)" If it does not lead, If the real estate company TEL:0800-603-0389【通話料無料】携帯電話・PHSからもご利用いただけます 発信者番号は通知されません 「SUUMO(スーモ)を見た」と問い合わせください つながらない方、不動産会社の方は
| Building coverage, floor area ratio 建ぺい率・容積率 | | Fifty percent ・ 150% 50%・150% | Time residents 入居時期 | | Immediate available 即入居可 | Land of the right form 土地の権利形態 | | Ownership 所有権 | Structure and method of construction 構造・工法 | | Wooden 2-story 木造2階建 | Use district 用途地域 | | One low-rise 1種低層 | Overview and notices その他概要・特記事項 | | Contact: Naomichi Kobayashi, Parking: car space 担当者:小林直道、駐車場:カースペース | Company profile 会社概要 | | <Mediation> Minister of Land, Infrastructure and Transport (6) No. 004372 (Corporation) metropolitan area real estate Fair Trade Council member (Ltd.) Ken ・ Corporation housing sales department Yubinbango106-0031 Tokyo, Minato-ku, Nishi-Azabu 1-2-7 <仲介>国土交通大臣(6)第004372号(公社)首都圏不動産公正取引協議会会員 (株)ケン・コーポレーション住宅営業部〒106-0031 東京都港区西麻布1-2-7 |
 Local appearance photo
現地外観写真
 Floor plan
間取り図
Location
|