1991September
72,800,000 yen, 3LDK, 119.02 sq m
Used Homes » Kanto » Tokyo » Setagaya
 
| | Setagaya-ku, Tokyo 東京都世田谷区 |
| Denentoshi Tokyu "Sangenjaya" walk 13 minutes 東急田園都市線「三軒茶屋」歩13分 |
Price 価格 | | 72,800,000 yen 7280万円 | Floor plan 間取り | | 3LDK 3LDK | Units sold 販売戸数 | | 1 units 1戸 | Land area 土地面積 | | 97.29 sq m (registration) 97.29m2(登記) | Building area 建物面積 | | 119.02 sq m (registration) 119.02m2(登記) | Driveway burden-road 私道負担・道路 | | 12.97 sq m 12.97m2 | Completion date 完成時期(築年月) | | September 1991 1991年9月 | Address 住所 | | Setagaya-ku, Tokyo Wakabayashi 2 東京都世田谷区若林2 | Traffic 交通 | | Denentoshi Tokyu "Sangenjaya" walk 13 minutes 東急田園都市線「三軒茶屋」歩13分
| Contact お問い合せ先 | | TEL: 0800-805-6236 [Toll free] mobile phone ・ Also available from PHS Caller ID is not notified Please contact the "saw SUUMO (Sumo)" If it does not lead, If the real estate company TEL:0800-805-6236【通話料無料】携帯電話・PHSからもご利用いただけます 発信者番号は通知されません 「SUUMO(スーモ)を見た」と問い合わせください つながらない方、不動産会社の方は
| Building coverage, floor area ratio 建ぺい率・容積率 | | 60% ・ 160% 60%・160% | Time residents 入居時期 | | Consultation 相談 | Land of the right form 土地の権利形態 | | Ownership 所有権 | Structure and method of construction 構造・工法 | | Wooden three-story 木造3階建 | Use district 用途地域 | | One middle and high 1種中高 | Other limitations その他制限事項 | | Other garage part about 14m2 Yes 他車庫部分約14m2有 | Overview and notices その他概要・特記事項 | | Parking: No 駐車場:無 | Company profile 会社概要 | | <Mediation> Minister of Land, Infrastructure and Transport (3) The 006,183 No. housing Information Center Azamino shop Seongnam Construction (Ltd.) Yubinbango225-0005 Kanagawa Prefecture, Aoba-ku, Yokohama City Ekoda 3-6-1 <仲介>国土交通大臣(3)第006183号住宅情報館 あざみ野店城南建設(株)〒225-0005 神奈川県横浜市青葉区荏子田3-6-1 |
Local appearance photo現地外観写真  Building appearance
建物外観
 Building appearance
建物外観
 Parking lot
駐車場
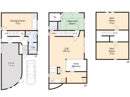
Floor plan間取り図  72,800,000 yen, 3LDK, Land area 97.29 sq m , Building area 119.02 sq m floor plan
7280万円、3LDK、土地面積97.29m2、建物面積119.02m2 間取り図
Local photos, including front road前面道路含む現地写真  Frontal road
前面道路
 Frontal road
前面道路
Location
|