Used Homes » Kanto » Tokyo » Setagaya


Setagaya-ku, Tokyo
Odakyu line "Chitosefunabashi" walk 12 minutes
Sure in a quiet residential area presence. Land area 236 sq m , Luxurious made on the ground the second floor basement first floor that extends to a total floor area of ​​338 sq m.
A quiet residential area of ​​Chitosefunabashi Station walking distance. You can feel free to renovation. Also we will correspond at any time preview. Please feel free to contact us.
Features pickup
Vibration Control ・ Seismic isolation ・ Earthquake resistant / Seismic fit / Parking three or more possible / Immediate Available / 2 along the line more accessible / Land 50 square meters or more / LDK18 tatami mats or more / Fiscal year Available / It is close to Tennis Court / Super close / Facing south / System kitchen / Bathroom Dryer / Yang per good / All room storage / Flat to the station / A quiet residential area / Around traffic fewer / Japanese-style room / Garden more than 10 square meters / garden / Home garden / Washbasin with shower / Security enhancement / Shutter - garage / Toilet 2 places / Bathroom 1 tsubo or more / 2-story / 2 or more sides balcony / South balcony / High speed Internet correspondence / Warm water washing toilet seat / TV with bathroom / The window in the bathroom / Atrium / High-function toilet / Leafy residential area / Urban neighborhood / Mu front building / Ventilation good / Good view / Or more ceiling height 2.5m / Living stairs / City gas / Storeroom / Whirlpool / All rooms are two-sided lighting / BS ・ CS ・ CATV / Attic storage
Price
140 million yen
Floor plan
6LDK + 3S (storeroom)
Units sold
1 units
Land area
236.09 sq m (registration)
Building area
338.75 sq m (registration)
Driveway burden-road
Nothing, East 4m width
Completion date
October 1988
Address
Setagaya-ku, Tokyo Funabashi 4-5-21
Traffic
Odakyu line "Chitosefunabashi" walk 12 minutes
Odakyu line "Kyodo" walk 20 minutes
Keio Line "Sakurajosui" walk 25 minutes
Related links
[Related Sites of this company]
Person in charge
Rep KishiYu machine
Contact
(Ltd.) Your agent TEL: 0120-997786 [Toll free] Please contact the "saw SUUMO (Sumo)"
Building coverage, floor area ratio
Fifty percent ・ Hundred percent
Time residents
Immediate available
Land of the right form
Ownership
Structure and method of construction
RC2 floors 1 underground story some wooden
Use district
One low-rise
Other limitations
Greening area
Overview and notices
Contact: KishiYuki, Facilities: Public Water Supply, This sewage, City gas, Parking: underground garage
Company profile
<Mediation> Governor of Tokyo (1) No. 095242 (Ltd.) Your agent Yubinbango135-0045 Koto-ku, Tokyo Furuishiba 3-1-5


Local appearance photo

Local appearance photo. A presence in a quiet residential area Mongamae
A presence in a quiet residential area Mongamae

Local appearance photo. Tiling
Tiling

Floor plan

Floor plan. 140 million yen, 6LDK + 3S (storeroom), Land area 236.09 sq m , Building area 338.75 sq m 1F ・ 2F Floor
140 million yen, 6LDK + 3S (storeroom), Land area 236.09 sq m , Building area 338.75 sq m 1F ・ 2F Floor

Living

Living. 12 tatami mats than of living
12 tatami mats than of living

Bathroom

Bathroom. Bathroom with TV bathroom
Bathroom with TV bathroom

Kitchen

Kitchen. Spacious U-shaped counter kitchen
Spacious U-shaped counter kitchen

Non-living room

Non-living room. 2F Japanese-style room
2F Japanese-style room

Entrance

Entrance. A spacious entrance
A spacious entrance

Wash basin, toilet

Wash basin, toilet. Laundry Area ・ Undressing washroom
Laundry Area ・ Undressing washroom

Toilet

Toilet. Restroom with cleanliness
Restroom with cleanliness

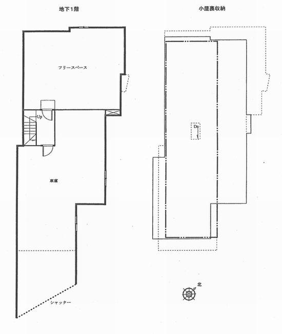
Other local

Other local. B1F ・ Attic floor plan
B1F ・ Attic floor plan

Living

Living. 3 face lighting of living
3 face lighting of living

Kitchen

Kitchen. oven ・ 3-burner stove
oven ・ 3-burner stove

Non-living room

Non-living room. 1F Japanese-style room
1F Japanese-style room

Entrance

Entrance. Enhancement also footwear storage
Enhancement also footwear storage

Toilet

Toilet. Of course with a bidet function
Of course with a bidet function

Non-living room

Non-living room. 2F Western-style A
2F Western-style A

Entrance

Entrance. Door plate with a sense of weight
Door plate with a sense of weight

Non-living room

Non-living room. 2F Western-style B
2F Western-style B

Non-living room. 2F Western C
2F Western C



Location