1998February
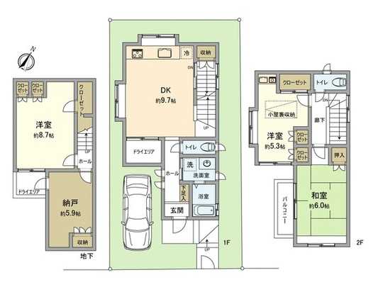
41,500,000 yen, 3DK + S (storeroom), 95.42 sq m
Used Homes » Kanto » Tokyo » Setagaya
 
| | Setagaya-ku, Tokyo 東京都世田谷区 |
| Keio Line "Osan Chitose" walk 12 minutes 京王線「千歳烏山」歩12分 |
Price 価格 | | 41,500,000 yen 4150万円 | Floor plan 間取り | | 3DK + S (storeroom) 3DK+S(納戸) | Units sold 販売戸数 | | 1 units 1戸 | Land area 土地面積 | | 80.24 sq m (measured) 80.24m2(実測) | Building area 建物面積 | | 95.42 sq m (measured) 95.42m2(実測) | Driveway burden-road 私道負担・道路 | | 14.8 sq m , East 4.5m width (contact the road width 6.5m) 14.8m2、東4.5m幅(接道幅6.5m) | Completion date 完成時期(築年月) | | February 1998 1998年2月 | Address 住所 | | Setagaya-ku, Tokyo Kamisoshigaya 6 東京都世田谷区上祖師谷6 | Traffic 交通 | | Keio Line "Osan Chitose" walk 12 minutes 京王線「千歳烏山」歩12分
| Person in charge 担当者より | | Rep Junya Takeuchi 担当者竹内淳也 | Contact お問い合せ先 | | Mitsui Rehouse Osan shop Mitsui Fudosan Realty (Ltd.) TEL: 0120-921031 [Toll free] Please contact the "saw SUUMO (Sumo)" 三井のリハウス烏山店三井不動産リアルティ(株)TEL:0120-921031【通話料無料】「SUUMO(スーモ)を見た」と問い合わせください | Building coverage, floor area ratio 建ぺい率・容積率 | | 40% ・ 80% 40%・80% | Time residents 入居時期 | | Immediate available 即入居可 | Land of the right form 土地の権利形態 | | Ownership 所有権 | Structure and method of construction 構造・工法 | | Wooden second floor underground 1 story 木造2階地下1階建 | Use district 用途地域 | | One low-rise 1種低層 | Overview and notices その他概要・特記事項 | | Contact: Junya Takeuchi, Parking: car space 担当者:竹内淳也、駐車場:カースペース | Company profile 会社概要 | | <Mediation> Minister of Land, Infrastructure and Transport (13) No. 000777 (one company) Property distribution management Association (Corporation) metropolitan area real estate Fair Trade Council member Mitsui Rehouse Osan shop Mitsui Fudosan Realty Co. Yubinbango157-0062 Setagaya-ku, Tokyo Minamikarasuyama 6-28-3 pa - Kuhaitsu Osan first floor <仲介>国土交通大臣(13)第000777号(一社)不動産流通経営協会会員 (公社)首都圏不動産公正取引協議会加盟三井のリハウス烏山店三井不動産リアルティ(株)〒157-0062 東京都世田谷区南烏山6-28-3 パ―クハイツからすやま1階 |
 Local appearance photo
現地外観写真
 Floor plan
間取り図
Location
|