1983January
69,800,000 yen, 5LDK, 157.38 sq m
Used Homes » Kanto » Tokyo » Setagaya
 
| | Setagaya-ku, Tokyo 東京都世田谷区 |
| Oimachi Line Tokyu "roar" walk 13 minutes 東急大井町線「等々力」歩13分 |
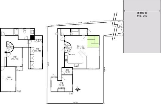
Price 価格 | | 69,800,000 yen 6980万円 | Floor plan 間取り | | 5LDK 5LDK | Units sold 販売戸数 | | 1 units 1戸 | Land area 土地面積 | | 227.26 sq m (registration) 227.26m2(登記) | Building area 建物面積 | | 157.38 sq m (registration) 157.38m2(登記) | Driveway burden-road 私道負担・道路 | | Nothing, East 6m width (contact the road width 1.8m) 無、東6m幅(接道幅1.8m) | Completion date 完成時期(築年月) | | January 1983 1983年1月 | Address 住所 | | Setagaya-ku, Tokyo Noge 1 東京都世田谷区野毛1 | Traffic 交通 | | Oimachi Line Tokyu "roar" walk 13 minutes 東急大井町線「等々力」歩13分
| Person in charge 担当者より | | The person in charge Yoshizawa Atsushi 担当者吉澤 敦司 | Contact お問い合せ先 | | Sumitomo Real Estate Sales Co., Ltd. Yukigayaotsuka business center TEL: 03-5499-7130 Please contact as "saw SUUMO (Sumo)" 住友不動産販売(株)雪が谷大塚営業センターTEL:03-5499-7130「SUUMO(スーモ)を見た」と問い合わせください | Building coverage, floor area ratio 建ぺい率・容積率 | | 40% ・ 80% 40%・80% | Time residents 入居時期 | | Consultation 相談 | Land of the right form 土地の権利形態 | | Ownership 所有権 | Structure and method of construction 構造・工法 | | Wooden 2-story 木造2階建 | Use district 用途地域 | | One low-rise 1種低層 | Other limitations その他制限事項 | | Reconstruction not / Terrain: upland 再建築不可/地勢:高台 | Overview and notices その他概要・特記事項 | | Person in charge: Yoshizawa Atsushi, Parking: No 担当者:吉澤 敦司、駐車場:無 | Company profile 会社概要 | | <Mediation> Minister of Land, Infrastructure and Transport (11) Article 002077 No. Sumitomo Real Estate Sales Co., Ltd. Yukigayaotsuka business center Yubinbango145-0066 Ota-ku, Tokyo Minamiyukigaya 2-12-10 Kunimitsu building the third floor <仲介>国土交通大臣(11)第002077号住友不動産販売(株)雪が谷大塚営業センター〒145-0066 東京都大田区南雪谷2-12-10 クニミツビル3階 |
Local appearance photo現地外観写真  Building appearance
建物外観
 Floor plan
間取り図
Location
|