1995May
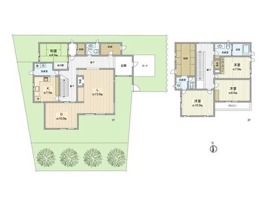
135 million yen, 4LDK + S (storeroom), 190.32 sq m
Used Homes » Kanto » Tokyo » Setagaya
 
| | Setagaya-ku, Tokyo 東京都世田谷区 |
| Inokashira "Ikenoue" walk 8 minutes 京王井の頭線「池ノ上」歩8分 |
Price 価格 | | 135 million yen 1億3500万円 | Floor plan 間取り | | 4LDK + S (storeroom) 4LDK+S(納戸) | Units sold 販売戸数 | | 1 units 1戸 | Land area 土地面積 | | 324.91 sq m (registration) 324.91m2(登記) | Building area 建物面積 | | 190.32 sq m (registration) 190.32m2(登記) | Driveway burden-road 私道負担・道路 | | Nothing, East 4.7m width (contact the road width 3m) 無、東4.7m幅(接道幅3m) | Completion date 完成時期(築年月) | | May 1995 1995年5月 | Address 住所 | | Setagaya-ku, Tokyo Daizawa 1 東京都世田谷区代沢1 | Traffic 交通 | | Inokashira "Ikenoue" walk 8 minutes Odakyu line "Shimokitazawa" walk 15 minutes 京王井の頭線「池ノ上」歩8分 小田急線「下北沢」歩15分
| Person in charge 担当者より | | Rep Inagaki Goichi 担当者稲垣 剛一 | Contact お問い合せ先 | | Rehouse of Mitsui Shimokitazawa shop Mitsui Fudosan Realty (Ltd.) TEL: 0120-924031 [Toll free] Please contact the "saw SUUMO (Sumo)" 三井のリハウス下北沢店三井不動産リアルティ(株)TEL:0120-924031【通話料無料】「SUUMO(スーモ)を見た」と問い合わせください | Building coverage, floor area ratio 建ぺい率・容積率 | | Fifty percent ・ 150% 50%・150% | Time residents 入居時期 | | Consultation 相談 | Land of the right form 土地の権利形態 | | Ownership 所有権 | Structure and method of construction 構造・工法 | | Wooden 2-story 木造2階建 | Use district 用途地域 | | One low-rise 1種低層 | Other limitations その他制限事項 | | Good location of the 2-wire 2 Station use A quiet residential area Land area spacious about 98.28 square meters 2線2駅利用の好立地 閑静な住宅街 土地面積広々約98.28坪 | Overview and notices その他概要・特記事項 | | Contact: Inagaki Goichi, Parking: car space 担当者:稲垣 剛一、駐車場:カースペース | Company profile 会社概要 | | <Mediation> Minister of Land, Infrastructure and Transport (13) No. 000777 (one company) Property distribution management Association (Corporation) metropolitan area real estate Fair Trade Council member Mitsui Rehouse Shimokitazawa shop Mitsui Fudosan Realty Co. Yubinbango155-0031 Setagaya-ku, Tokyo Kitazawa 2-2-7 N.F. building first floor <仲介>国土交通大臣(13)第000777号(一社)不動産流通経営協会会員 (公社)首都圏不動産公正取引協議会加盟三井のリハウス下北沢店三井不動産リアルティ(株)〒155-0031 東京都世田谷区北沢2-2-7 N.F.ビル1階 |
 Local appearance photo
現地外観写真
 Floor plan
間取り図
Location
|