|
|
Setagaya-ku, Tokyo
東京都世田谷区
|
|
Odakyu line "Kyodo" walk 8 minutes
小田急線「経堂」歩8分
|
|
Your preview is available at the reservation. Please feel free to contact us until 03-5707-2301. Large RC Detached of more than 100 square meters in both land and buildings
ご内覧は予約制にて承ります。お気軽に03-5707-2301迄お問い合わせ下さい。土地建物ともに100坪以上の大型RC戸建
|
|
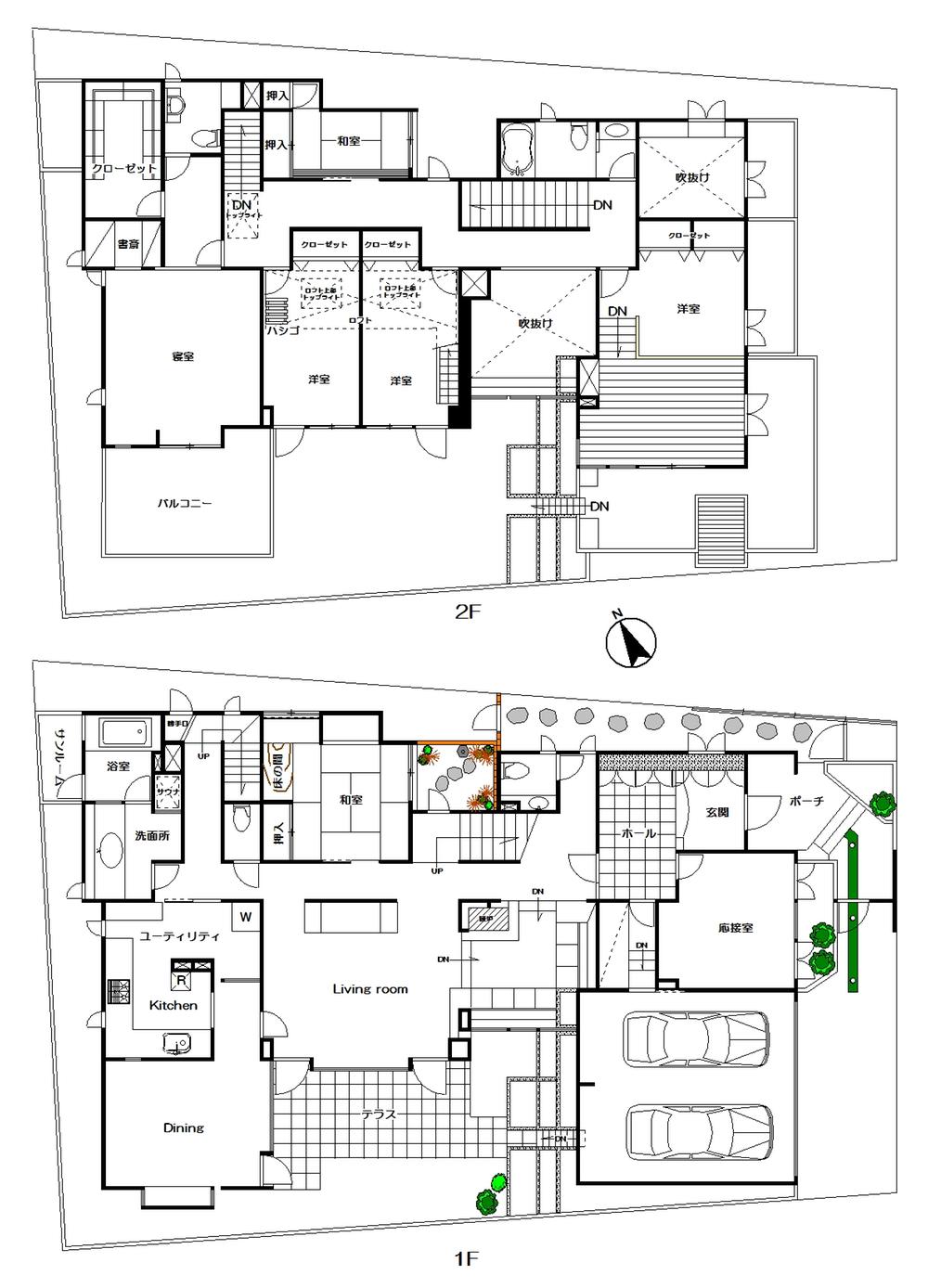
■ 7LDK + 3 bathroom ■ Robust Reinforced Concrete ■ High-grade housing
■7LDK+3バスルーム■堅固な鉄筋コンクリート造■ハイグレード住宅
|
Features pickup 特徴ピックアップ | | Parking two Allowed / LDK20 tatami mats or more / Land more than 100 square meters / System kitchen / Yang per good / Flat to the station / A quiet residential area / Or more before road 6m / Japanese-style room / Shaping land / Garden more than 10 square meters / garden / Security enhancement / Shutter - garage / Wide balcony / Toilet 2 places / Bathroom 1 tsubo or more / 2-story / 2 or more sides balcony / South balcony / loft / Nantei / TV monitor interphone / Leafy residential area / Ventilation good / Built garage / Walk-in closet / A large gap between the neighboring house / roof balcony / Flat terrain / 2 family house / terrace / rooftop 駐車2台可 /LDK20畳以上 /土地100坪以上 /システムキッチン /陽当り良好 /駅まで平坦 /閑静な住宅地 /前道6m以上 /和室 /整形地 /庭10坪以上 /庭 /セキュリティ充実 /シャッタ-車庫 /ワイドバルコニー /トイレ2ヶ所 /浴室1坪以上 /2階建 /2面以上バルコニー /南面バルコニー /ロフト /南庭 /TVモニタ付インターホン /緑豊かな住宅地 /通風良好 /ビルトガレージ /ウォークインクロゼット /隣家との間隔が大きい /ルーフバルコニー /平坦地 /2世帯住宅 /テラス /屋上 |
Price 価格 | | 278 million yen 2億7800万円 |
Floor plan 間取り | | 7LDK + S (storeroom) 7LDK+S(納戸) |
Units sold 販売戸数 | | 1 units 1戸 |
Land area 土地面積 | | 388.14 sq m (measured) 388.14m2(実測) |
Building area 建物面積 | | 115.83 sq m (registration) 115.83m2(登記) |
Driveway burden-road 私道負担・道路 | | Nothing, East 6m width (contact the road width 13.6m) 無、東6m幅(接道幅13.6m) |
Completion date 完成時期(築年月) | | January 1989 1989年1月 |
Address 住所 | | Setagaya-ku, Tokyo Kyodo 3 東京都世田谷区経堂3 |
Traffic 交通 | | Odakyu line "Kyodo" walk 8 minutes Odakyu line "Chitosefunabashi" walk 9 minutes Setagaya Line Tokyu "Miyanosaka" walk 21 minutes 小田急線「経堂」歩8分 小田急線「千歳船橋」歩9分 東急世田谷線「宮の坂」歩21分
|
Person in charge 担当者より | | [Regarding this property.] land ・ 100 square meters more than in building both 【この物件について】土地・建物ともに100坪超 |
Contact お問い合せ先 | | (Ltd.) Howdy TEL: 0800-603-2236 [Toll free] mobile phone ・ Also available from PHS Caller ID is not notified Please contact the "saw SUUMO (Sumo)" If it does not lead, If the real estate company (株)ハウディTEL:0800-603-2236【通話料無料】携帯電話・PHSからもご利用いただけます 発信者番号は通知されません 「SUUMO(スーモ)を見た」と問い合わせください つながらない方、不動産会社の方は
|
Building coverage, floor area ratio 建ぺい率・容積率 | | 60% ・ 150% 60%・150% |
Time residents 入居時期 | | January 2014 2014年1月 |
Land of the right form 土地の権利形態 | | Ownership 所有権 |
Structure and method of construction 構造・工法 | | RC2 story RC2階建 |
Use district 用途地域 | | One low-rise 1種低層 |
Other limitations その他制限事項 | | Height district, Quasi-fire zones, Site area minimum Yes, Shade limit Yes 高度地区、準防火地域、敷地面積最低限度有、日影制限有 |
Overview and notices その他概要・特記事項 | | Facilities: Public Water Supply, This sewage, City gas, Parking: Garage 設備:公営水道、本下水、都市ガス、駐車場:車庫 |
Company profile 会社概要 | | <Mediation> Governor of Tokyo (4) No. 073685 (Corporation) Tokyo Metropolitan Government Building Lots and Buildings Transaction Business Association (Corporation) metropolitan area real estate Fair Trade Council member (Ltd.) Howdy Yubinbango158-0083 Setagaya-ku, Tokyo Okusawa 6-33-9 <仲介>東京都知事(4)第073685号(公社)東京都宅地建物取引業協会会員 (公社)首都圏不動産公正取引協議会加盟(株)ハウディ〒158-0083 東京都世田谷区奥沢6-33-9 |