1988September
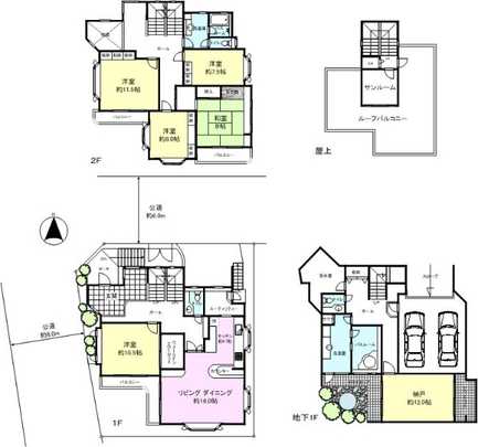
148 million yen, 5LDK + S (storeroom), 304.97 sq m
Used Homes » Kanto » Tokyo » Setagaya
 
| | Setagaya-ku, Tokyo 東京都世田谷区 |
| Denentoshi Tokyu "Sakurashinmachi" walk 12 minutes 東急田園都市線「桜新町」歩12分 |
Price 価格 | | 148 million yen 1億4800万円 | Floor plan 間取り | | 5LDK + S (storeroom) 5LDK+S(納戸) | Units sold 販売戸数 | | 1 units 1戸 | Land area 土地面積 | | 182.11 sq m (registration) 182.11m2(登記) | Building area 建物面積 | | 304.97 sq m (registration) 304.97m2(登記) | Driveway burden-road 私道負担・道路 | | Nothing, North 6m width (contact the road width 10m), West 6m width 無、北6m幅(接道幅10m)、西6m幅 | Completion date 完成時期(築年月) | | September 1988 1988年9月 | Address 住所 | | Setagaya-ku, Tokyo helical 1 東京都世田谷区弦巻1 | Traffic 交通 | | Denentoshi Tokyu "Sakurashinmachi" walk 12 minutes Setagaya Line Tokyu "Setagaya" walk 9 minutes 東急田園都市線「桜新町」歩12分 東急世田谷線「世田谷」歩9分
| Person in charge 担当者より | | Rep Watari Daisuke 担当者渡利 大介 | Contact お問い合せ先 | | Sumitomo Real Estate Sales Co., Ltd. Yoga business center TEL: 03-3707-2151 Please contact as "saw SUUMO (Sumo)" 住友不動産販売(株)用賀営業センターTEL:03-3707-2151「SUUMO(スーモ)を見た」と問い合わせください | Building coverage, floor area ratio 建ぺい率・容積率 | | Fifty percent ・ Hundred percent 50%・100% | Time residents 入居時期 | | Consultation 相談 | Land of the right form 土地の権利形態 | | Ownership 所有権 | Structure and method of construction 構造・工法 | | Wooden second floor underground 1 story 木造2階地下1階建 | Use district 用途地域 | | One low-rise 1種低層 | Other limitations その他制限事項 | | / It includes garage area of about 30.96 sq m in construction area. / Terrain: flat /建築面積に車庫面積約30.96m2を含みます。/地勢:平坦 | Overview and notices その他概要・特記事項 | | Contact: Watari Daisuke, Parking: car space 担当者:渡利 大介、駐車場:カースペース | Company profile 会社概要 | | <Mediation> Minister of Land, Infrastructure and Transport (11) No. 002077 (one company) Real Estate Association (Corporation) metropolitan area real estate Fair Trade Council member Sumitomo Real Estate Sales Co., Ltd. Yoga business center Yubinbango158-0097 Setagaya-ku, Tokyo Yoga 2-36-15 Sambir first floor <仲介>国土交通大臣(11)第002077号(一社)不動産協会会員 (公社)首都圏不動産公正取引協議会加盟住友不動産販売(株)用賀営業センター〒158-0097 東京都世田谷区用賀2-36-15 サンビル1階 |
Local appearance photo現地外観写真  appearance
外観
 Floor plan
間取り図
Location
|