1989January
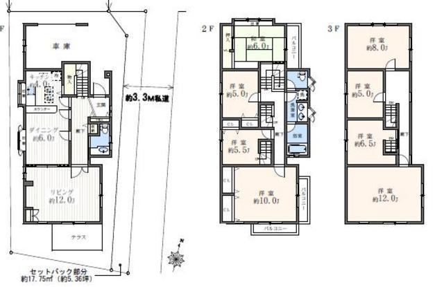
88 million yen, 8LDK, 214.17 sq m
Used Homes » Kanto » Tokyo » Setagaya
 
| | Setagaya-ku, Tokyo 東京都世田谷区 |
| Keio Line "Meidaimae" walk 3 minutes 京王線「明大前」歩3分 |
Price 価格 | | 88 million yen 8800万円 | Floor plan 間取り | | 8LDK 8LDK | Units sold 販売戸数 | | 1 units 1戸 | Land area 土地面積 | | 138.99 sq m (registration) 138.99m2(登記) | Building area 建物面積 | | 214.17 sq m (registration) 214.17m2(登記) | Driveway burden-road 私道負担・道路 | | 31.87 sq m , Northwest 5.1m width (contact the road width 6.6m), Northeast 3.4m width 31.87m2、北西5.1m幅(接道幅6.6m)、北東3.4m幅 | Completion date 完成時期(築年月) | | January 1989 1989年1月 | Address 住所 | | Setagaya-ku, Tokyo Matsubara 2 東京都世田谷区松原2 | Traffic 交通 | | Keio Line "Meidaimae" walk 3 minutes Inokashira "Meidaimae" walk 3 minutes 京王線「明大前」歩3分 京王井の頭線「明大前」歩3分
| Contact お問い合せ先 | | TEL: 0800-603-1955 [Toll free] mobile phone ・ Also available from PHS Caller ID is not notified Please contact the "saw SUUMO (Sumo)" If it does not lead, If the real estate company TEL:0800-603-1955【通話料無料】携帯電話・PHSからもご利用いただけます 発信者番号は通知されません 「SUUMO(スーモ)を見た」と問い合わせください つながらない方、不動産会社の方は
| Building coverage, floor area ratio 建ぺい率・容積率 | | 60% ・ 150% 60%・150% | Time residents 入居時期 | | Consultation 相談 | Land of the right form 土地の権利形態 | | Ownership 所有権 | Structure and method of construction 構造・工法 | | Wooden three-story 木造3階建 | Use district 用途地域 | | One low-rise 1種低層 | Other limitations その他制限事項 | | Set-back: already, Some city planning road セットバック:済、一部都市計画道路 | Overview and notices その他概要・特記事項 | | Parking: Garage 駐車場:車庫 | Company profile 会社概要 | | <Mediation> Governor of Tokyo (6) No. 060665 (Corporation) Tokyo Metropolitan Government Building Lots and Buildings Transaction Business Association (Corporation) metropolitan area real estate Fair Trade Council member (Ltd.) Uptown Yubinbango158-0097 Setagaya-ku, Tokyo Yoga 2-34-13 <仲介>東京都知事(6)第060665号(公社)東京都宅地建物取引業協会会員 (公社)首都圏不動産公正取引協議会加盟(株)アップタウン〒158-0097 東京都世田谷区用賀2-34-13 |
 Local appearance photo
現地外観写真
 Local appearance photo
現地外観写真
Floor plan間取り図  88 million yen, 8LDK, Land area 138.99 sq m , Building area 214.17 sq m
8800万円、8LDK、土地面積138.99m2、建物面積214.17m2
Location
|