2013July
100 million 17.6 million yen, 4LDK, 150.5 sq m
Used Homes » Kanto » Tokyo » Setagaya
 
| | Setagaya-ku, Tokyo 東京都世田谷区 |
| Inokashira "Shindaita" walk 6 minutes 京王井の頭線「新代田」歩6分 |
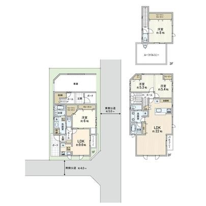
Price 価格 | | 100 million 17.6 million yen 1億1760万円 | Floor plan 間取り | | 4LDK 4LDK | Units sold 販売戸数 | | 1 units 1戸 | Land area 土地面積 | | 107.58 sq m (registration) 107.58m2(登記) | Building area 建物面積 | | 150.5 sq m (registration) 150.5m2(登記) | Driveway burden-road 私道負担・道路 | | Nothing, South 4m width (contact the road width 6.1m), East 5m width 無、南4m幅(接道幅6.1m)、東5m幅 | Completion date 完成時期(築年月) | | July 2013 2013年7月 | Address 住所 | | Setagaya-ku, Tokyo Hanegi 1 東京都世田谷区羽根木1 | Traffic 交通 | | Inokashira "Shindaita" walk 6 minutes Inokashira "Higashimatsubara" walk 7 minutes 京王井の頭線「新代田」歩6分 京王井の頭線「東松原」歩7分
| Person in charge 担当者より | | Rep Hisashi Suzuki 担当者鈴木尚 | Contact お問い合せ先 | | Mitsui Rehouse Eifukucho shop Mitsui Fudosan Realty (Ltd.) TEL: 0120-317631 [Toll free] Please contact the "saw SUUMO (Sumo)" 三井のリハウス永福町店三井不動産リアルティ(株)TEL:0120-317631【通話料無料】「SUUMO(スーモ)を見た」と問い合わせください | Building coverage, floor area ratio 建ぺい率・容積率 | | 60% ・ 150% 60%・150% | Time residents 入居時期 | | Consultation 相談 | Land of the right form 土地の権利形態 | | Ownership 所有権 | Structure and method of construction 構造・工法 | | Wooden three-story 木造3階建 | Use district 用途地域 | | One low-rise 1種低層 | Overview and notices その他概要・特記事項 | | Contact: Takashi Suzuki, Parking: car space 担当者:鈴木尚、駐車場:カースペース | Company profile 会社概要 | | <Mediation> Minister of Land, Infrastructure and Transport (13) No. 000777 (one company) Property distribution management Association (Corporation) metropolitan area real estate Fair Trade Council member Mitsui Rehouse Eifukucho shop Mitsui Fudosan Realty Co. Yubinbango168-0064 Suginami-ku, Tokyo Yongfu 2-60-24 Maison Yongfu first floor <仲介>国土交通大臣(13)第000777号(一社)不動産流通経営協会会員 (公社)首都圏不動産公正取引協議会加盟三井のリハウス永福町店三井不動産リアルティ(株)〒168-0064 東京都杉並区永福2-60-24 メゾン永福1階 |
 Local appearance photo
現地外観写真
 Floor plan
間取り図
Location
|