|
|
Setagaya-ku, Tokyo
東京都世田谷区
|
|
Tokyu Toyoko Line "Jiyugaoka" walk 7 minutes
東急東横線「自由が丘」歩7分
|
Features pickup 特徴ピックアップ | | Parking two Allowed / 2 along the line more accessible / LDK20 tatami mats or more / Land 50 square meters or more / Facing south / Bathroom Dryer / Yang per good / Around traffic fewer / 3 face lighting / Exterior renovation / South balcony / Nantei / Walk-in closet / All room 6 tatami mats or more / Three-story or more / City gas / roof balcony / 2 family house / Floor heating 駐車2台可 /2沿線以上利用可 /LDK20畳以上 /土地50坪以上 /南向き /浴室乾燥機 /陽当り良好 /周辺交通量少なめ /3面採光 /外装リフォーム /南面バルコニー /南庭 /ウォークインクロゼット /全居室6畳以上 /3階建以上 /都市ガス /ルーフバルコニー /2世帯住宅 /床暖房 |
Price 価格 | | 149 million yen 1億4900万円 |
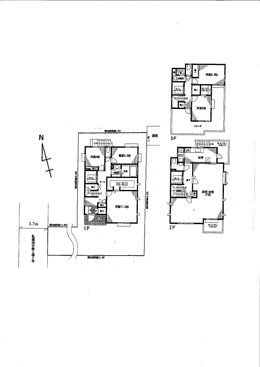
Floor plan 間取り | | 5LDK 5LDK |
Units sold 販売戸数 | | 1 units 1戸 |
Land area 土地面積 | | 214.92 sq m (registration) 214.92m2(登記) |
Building area 建物面積 | | 199.26 sq m (registration) 199.26m2(登記) |
Driveway burden-road 私道負担・道路 | | Nothing, West 3.7m width (contact the road width 3.8m) 無、西3.7m幅(接道幅3.8m) |
Completion date 完成時期(築年月) | | July 1997 1997年7月 |
Address 住所 | | Setagaya-ku, Tokyo Okusawa 6 東京都世田谷区奥沢6 |
Traffic 交通 | | Tokyu Toyoko Line "Jiyugaoka" walk 7 minutes Oimachi Line Tokyu "Kuhonbutsu" walk 5 minutes 東急東横線「自由が丘」歩7分 東急大井町線「九品仏」歩5分
|
Related links 関連リンク | | [Related Sites of this company] 【この会社の関連サイト】 |
Person in charge 担当者より | | [Regarding this property.] A quiet residential area, Jiyugaoka within walking distance, Home with Elevator 【この物件について】閑静な住宅街、自由ヶ丘徒歩圏内、ホームエレベーター付き |
Contact お問い合せ先 | | (Ltd.) Harada office TEL: 0800-601-4941 [Toll free] mobile phone ・ Also available from PHS Caller ID is not notified Please contact the "saw SUUMO (Sumo)" If it does not lead, If the real estate company (株)原田事務所TEL:0800-601-4941【通話料無料】携帯電話・PHSからもご利用いただけます 発信者番号は通知されません 「SUUMO(スーモ)を見た」と問い合わせください つながらない方、不動産会社の方は
|
Expenses 諸費用 | | Home Elevator and administrative expenses: 50,400 yen / Year ホームエレベーター管理費:5万400円/年 |
Building coverage, floor area ratio 建ぺい率・容積率 | | 60% ・ 200% 60%・200% |
Time residents 入居時期 | | Consultation 相談 |
Land of the right form 土地の権利形態 | | Ownership 所有権 |
Structure and method of construction 構造・工法 | | Steel frame three-story 鉄骨3階建 |
Renovation リフォーム | | June 2011 exterior renovation completed (outer wall) 2011年6月外装リフォーム済(外壁) |
Use district 用途地域 | | One middle and high 1種中高 |
Overview and notices その他概要・特記事項 | | Facilities: Public Water Supply, City gas, Parking: car space 設備:公営水道、都市ガス、駐車場:カースペース |
Company profile 会社概要 | | <Mediation> Governor of Tokyo (2) No. 086811 (Ltd.) Harada office Yubinbango150-0011, Shibuya-ku, Tokyo Higashi 2-23-8 <仲介>東京都知事(2)第086811号(株)原田事務所〒150-0011 東京都渋谷区東2-23-8 |