Used Homes » Kanto » Tokyo » Setagaya


Setagaya-ku, Tokyo
Setagaya Line Tokyu "Uemachi" walk 9 minutes
Large-scale renovation residential land ・ Building about 35 square meters large 4LDK + den
Reform place ■ Kitchen New ■ Bathroom New ■ Washbasin New ■ Toilet new ■ Flooring new ■ Entrance door New ■ Cupboard New ■ Outer wall paint ※ Because of the non-conforming contact road, Reconstruction not
Features pickup
2 along the line more accessible / Bathroom Dryer / A quiet residential area / Around traffic fewer / Bathroom 1 tsubo or more / 2-story / South balcony / The window in the bathroom
Price
39,800,000 yen
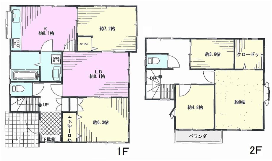
Floor plan
5LDK
Units sold
1 units
Land area
119.72 sq m (36.21 tsubo) (measured)
Building area
114.53 sq m (34.64 tsubo) (Registration)
Driveway burden-road
Nothing, South 3.8m width (contact the road width 6m)
Completion date
March 1979
Address
Setagaya-ku, Tokyo Setagaya 2
Traffic
Setagaya Line Tokyu "Uemachi" walk 9 minutes
Odakyu line "Kyodo" walk 19 minutes
Denentoshi Tokyu "Sakurashinmachi" walk 18 minutes
Person in charge
Personnel Maki Arakawa people
Contact
TEL: 0800-603-3448 [Toll free] mobile phone ・ Also available from PHS
Caller ID is not notified
Please contact the "saw SUUMO (Sumo)"
If it does not lead, If the real estate company
Building coverage, floor area ratio
60% ・ 200%
Time residents
Consultation
Land of the right form
Ownership
Structure and method of construction
Light-gauge steel 2-story
Use district
One middle and high
Overview and notices
Contact: Maki Arakawa people, Parking: No
Company profile
<Mediation> Governor of Tokyo (2) No. 082920 (Corporation) Tokyo Metropolitan Government Building Lots and Buildings Transaction Business Association (Corporation) metropolitan area real estate Fair Trade Council member am tick (Ltd.) Kichijoji headquarters sales department Yubinbango180-0002 Musashino-shi, Tokyo Kichijojihigashi cho 1-19-21


Local appearance photo
Local appearance photo

Floor plan

Floor plan. 39,800,000 yen, 5LDK, Land area 119.72 sq m , Building area 114.53 sq m
39,800,000 yen, 5LDK, Land area 119.72 sq m , Building area 114.53 sq m

Kitchen
Kitchen

Local appearance photo
Local appearance photo

Living
Living

Bathroom
Bathroom

Non-living room
Non-living room

Entrance
Entrance

Wash basin, toilet
Wash basin, toilet

Toilet
Toilet

Local photos, including front road
Local photos, including front road

Kindergarten ・ Nursery

kindergarten ・ Nursery. Little Women to nursery school 1262m
Little Women to nursery school 1262m

Living
Living

Non-living room
Non-living room

Primary school

Primary school. Wako kindergarten ・ 748m up to elementary school
Wako kindergarten ・ 748m up to elementary school

Living
Living

Non-living room
Non-living room

Primary school. Ward Sakuragaoka to elementary school 1036m
Ward Sakuragaoka to elementary school 1036m

Living
Living



Location