New Homes » Tokai » Aichi Prefecture » Miyoshi City
 
| | Aichi Prefecture, Miyoshi City 愛知県みよし市 |
| Toyodasen Meitetsu "Miyoshigaoka" walk 13 minutes 名鉄豊田線「三好ケ丘」歩13分 |
| [Forest Notes Miyoshi City Miyoshigaoka house Part8 ] Seller Property ■ Toyodasen Meitetsu "Miyoshigaoka" station walk 13 minutes! ■ kindergarten ・ Elementary school walk within 5 minutes! ■ Shopping facilities are also within a 10-minute walk! 【フォレストノート みよし市 三好丘の家 Part8 】 売主物件■名鉄豊田線「三好ヶ丘」駅 徒歩13分!■幼稚園・小学校 徒歩5分以内!■買物施設も徒歩10分以内! |
| ○ feature construction housing performance with evaluation, Design house performance with evaluation, Measures to conserve energy, Long-term high-quality housing, Solar power system, Pre-ground survey, Seismic fit, Parking two Allowed, Energy-saving water heaters, Super close, System kitchen, Bathroom Dryer, LDK15 tatami mats or more, garden, Washbasin with shower, Face-to-face kitchen, Toilet 2 places, Bathroom 1 tsubo or more, 2-story, South balcony, Double-glazing, Warm water washing toilet seat, Nantei, Underfloor Storage, The window in the bathroom, TV monitor interphone, High-function toilet, IH cooking heater, Dish washing dryer, Walk-in closet, Water filter, Living stairs, City gas, Floor heating ● Other inquiries about property is, Please from "document request button" of orange! ○特徴建設住宅性能評価付、設計住宅性能評価付、省エネルギー対策、長期優良住宅、太陽光発電システム、地盤調査済、耐震適合、駐車2台可、省エネ給湯器、スーパーが近い、システムキッチン、浴室乾燥機、LDK15畳以上、庭、シャワー付洗面台、対面式キッチン、トイレ2ヶ所、浴室1坪以上、2階建、南面バルコニー、複層ガラス、温水洗浄便座、南庭、床下収納、浴室に窓、TVモニタ付インターホン、高機能トイレ、IHクッキングヒーター、食器洗乾燥機、ウォークインクロゼット、浄水器、リビング階段、都市ガス、床暖房●そのほか物件に関するお問い合わせは、オレンジ色の「資料請求ボタン」からどうぞ! |
Seller comments 売主コメント | | Building B B棟 | Local guide map 現地案内図 | | Local guide map 現地案内図 | Features pickup 特徴ピックアップ | | Construction housing performance with evaluation / Design house performance with evaluation / Measures to conserve energy / Long-term high-quality housing / Solar power system / Pre-ground survey / Seismic fit / Parking two Allowed / Immediate Available / Energy-saving water heaters / Super close / System kitchen / Bathroom Dryer / LDK15 tatami mats or more / garden / Washbasin with shower / Face-to-face kitchen / Toilet 2 places / Bathroom 1 tsubo or more / 2-story / South balcony / Double-glazing / Warm water washing toilet seat / Nantei / Underfloor Storage / The window in the bathroom / TV monitor interphone / High-function toilet / IH cooking heater / Dish washing dryer / Walk-in closet / Water filter / Living stairs / City gas / Floor heating 建設住宅性能評価付 /設計住宅性能評価付 /省エネルギー対策 /長期優良住宅 /太陽光発電システム /地盤調査済 /耐震適合 /駐車2台可 /即入居可 /省エネ給湯器 /スーパーが近い /システムキッチン /浴室乾燥機 /LDK15畳以上 /庭 /シャワー付洗面台 /対面式キッチン /トイレ2ヶ所 /浴室1坪以上 /2階建 /南面バルコニー /複層ガラス /温水洗浄便座 /南庭 /床下収納 /浴室に窓 /TVモニタ付インターホン /高機能トイレ /IHクッキングヒーター /食器洗乾燥機 /ウォークインクロゼット /浄水器 /リビング階段 /都市ガス /床暖房 | Property name 物件名 | | Forest Notes Miyoshi City Miyoshigaoka house Part8 [Solar power standard! ] Seller Property フォレストノート みよし市 三好丘の家 Part8 【太陽光発電標準装備!】 売主物件 | Price 価格 | | 45,700,000 yen 4570万円 | Floor plan 間取り | | 4LDK + 2S (storeroom) 4LDK+2S(納戸) | Units sold 販売戸数 | | 1 units 1戸 | Total units 総戸数 | | 2 units 2戸 | Land area 土地面積 | | 147.84 sq m (44.72 square meters) 147.84m2(44.72坪) | Building area 建物面積 | | 110.61 sq m (33.45 square meters) 110.61m2(33.45坪) | Driveway burden-road 私道負担・道路 | | North 6.0m 北側6.0m | Completion date 完成時期(築年月) | | In mid-August 2013 2013年8月中旬 | Address 住所 | | Aichi Prefecture, Miyoshi City Miyoshigaoka 3-4 No. 10 愛知県みよし市三好丘3-4番10 | Traffic 交通 | | Toyodasen Meitetsu "Miyoshigaoka" walk 13 minutes Toyodasen Meitetsu "Kurozasa" walk 34 minutes Toyodasen Meitetsu "water purification" walk 37 minutes 名鉄豊田線「三好ケ丘」歩13分 名鉄豊田線「黒笹」歩34分 名鉄豊田線「浄水」歩37分
| Related links 関連リンク | | [Related Sites of this company] 【この会社の関連サイト】 | Contact お問い合せ先 | | (Ltd.) Wood Friends TEL: 0800-603-1631 [Toll free] mobile phone ・ Also available from PHS Caller ID is not notified Please contact the "saw SUUMO (Sumo)" If it does not lead, If the real estate company (株)ウッドフレンズTEL:0800-603-1631【通話料無料】携帯電話・PHSからもご利用いただけます 発信者番号は通知されません 「SUUMO(スーモ)を見た」と問い合わせください つながらない方、不動産会社の方は
| Sale schedule 販売スケジュール | | Tax saving ・ Also questions about such expenses, Than "Request button", Please feel free to ask. 節税・諸費用などについてのご質問も、「資料請求ボタン」より、お気軽にお尋ねください。 | Building coverage, floor area ratio 建ぺい率・容積率 | | Building coverage: 50%, Volume ratio: 100% 建ぺい率:50%、容積率:100% | Time residents 入居時期 | | Immediate available 即入居可 | Land of the right form 土地の権利形態 | | Ownership 所有権 | Structure and method of construction 構造・工法 | | Wooden Galvalume steel Itabuki 2 story 木造ガルバリウム鋼板葺2階建 | Construction 施工 | | Co., Ltd. Wood Friends 株式会社ウッドフレンズ | Use district 用途地域 | | One low-rise 1種低層 | Land category 地目 | | Residential land 宅地 | Overview and notices その他概要・特記事項 | | Building confirmation number: No. H24 confirmation architecture Love Kenjuse No. 25853 建築確認番号:第H24確認建築愛建住セ25853号 | Company profile 会社概要 | | <Seller> Minister of Land, Infrastructure and Transport (3) No. 006013 (Corporation) Aichi Prefecture Building Lots and Buildings Transaction Business Association Tokai Real Estate Fair Trade Council member (Ltd.) Wood Friends Yubinbango460-0008 Sakae, Naka-ku, Nagoya, Aichi Prefecture 4-5-3 <売主>国土交通大臣(3)第006013号(公社)愛知県宅地建物取引業協会会員 東海不動産公正取引協議会加盟(株)ウッドフレンズ〒460-0008 愛知県名古屋市中区栄4-5-3 |
Livingリビング  Building B living ceiling show the makeup Beams, Open directing. Also, By the living room stairs and steel stairs, Further open to.
B棟リビング天井は化粧梁を見せ、開放的に演出。また、リビング階段を鉄骨階段とすることで、さらに開放的に。
Receipt収納  It established a large bookshelf from Building B bookshelf entrance to the approach to the living room. Of course, as a bookshelf, Such as decorate a family photo of, Can you use it for multi-purpose.
B棟本棚玄関からリビングへのアプローチに大型本棚を設置。本棚としてはもちろん、家族の写真を飾るなど、多目的にお使い頂けます。
Non-living roomリビング以外の居室  Building B Master Bedroom gradient ceiling was nestled a large WIC is to open bedroom.
B棟主寝室勾配天井が開放的な寝室には大型WICをしつらえました。
 We established a dedicated bookshelf in Building B Western-style here Western-style. .
B棟洋室こちらの洋室にも専用の本棚を設置しました。.
Other introspectionその他内観  Building B spiral staircase
B棟螺旋階段
Local appearance photo現地外観写真  We established the family large bookshelf that can be used by everyone to approach the part from the B Togaikan entrance to the living room. Also, Inner balcony is also appealing safely in sudden rain.
B棟外観玄関からリビングへのアプローチ部分に家族みんなで使用できる大型本棚を設置しました。また、急な雨降りでも安心なインナーバルコニーも魅力です。
Park公園  Miyoshigaoka 350m up to No. 1 park
三好ケ丘1号公園まで350m
Kindergarten ・ Nursery幼稚園・保育園  130m until the bell Miyoshi kindergarten
ベル三好幼稚園まで130m
Primary school小学校  Miyoshi City Miyoshigaoka to elementary school 260m
みよし市立三好丘小学校まで260m
Junior high school中学校  Miyoshi City Miyoshigaoka until junior high school 900m
みよし市立三好丘中学校まで900m
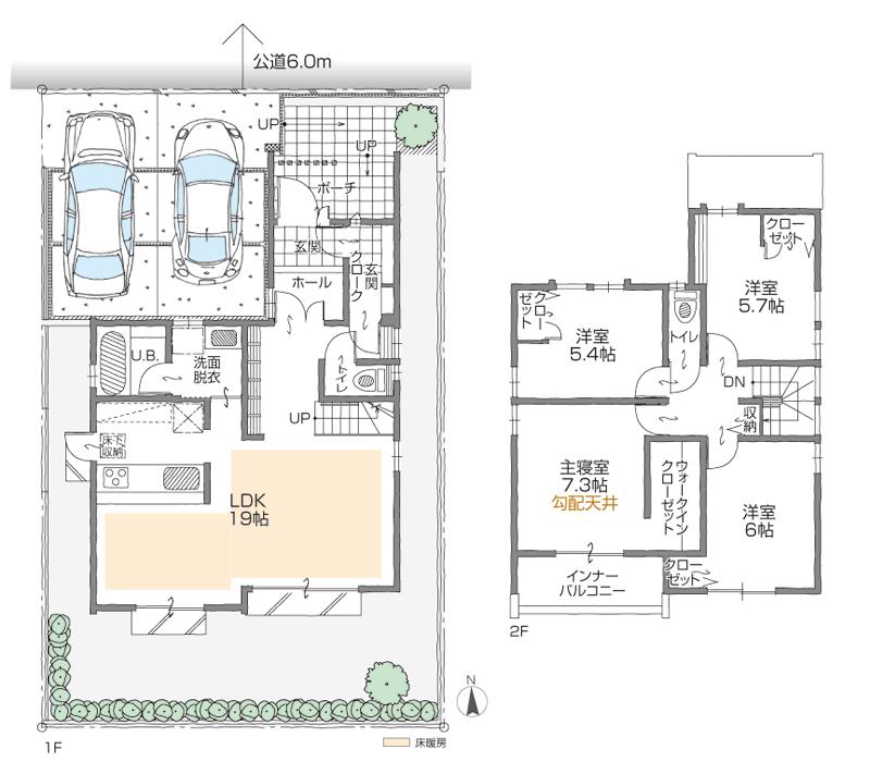
Floor plan間取り図  (B Building), Price 45,700,000 yen, 4LDK+2S, Land area 147.84 sq m , Building area 110.61 sq m
(B棟)、価格4570万円、4LDK+2S、土地面積147.84m2、建物面積110.61m2
The entire compartment Figure全体区画図  Compartment figure
区画図
Otherその他  Performance evaluation certification Ranking (fiscal 2011) design performance evaluation nationwide 8th! Construction performance evaluation nationwide 7th!
性能評価認定ランキング(2011年度)設計性能評価 全国8位!建設性能評価 全国7位!
 Wood Friends Group Business Information
ウッドフレンズグループ事業案内
 Peace of mind in the long-term high-quality housing ・ Favorable living
長期優良住宅で安心・有利な暮らし
 Safe production of structural materials in our factory
自社工場で構造材を安心生産
Local guide map現地案内図  Wide-area view
広域図
 Detail view
詳細図
Location
|