New Homes » Kyushu » Fukuoka Prefecture » Hakata-ku
 
| | Fukuoka, Hakata-ku, Fukuoka City 福岡県福岡市博多区 |
| JR Kagoshima Main Line "Yoshizuka" walk 12 minutes JR鹿児島本線「吉塚」歩12分 |
| ■ New Year Campaign until the end of January! ! ■ Email, Also accepting telephone inquiry! Same specifications Property guidance Allowed. Upon request. Please feel free to contact us, Please visit. ■1月末まで新春キャンペーン実施中!!■メール、お電話でのお問い合わせも承っています!同仕様物件ご案内可。要事前予約。お気軽にお問合せ、ご来店くださいませ。 |
| Yoshizuka a 12-minute walk to the Train Station! Inner city access good! ! 吉塚駅まで徒歩12分!都心部アクセス良好!! |
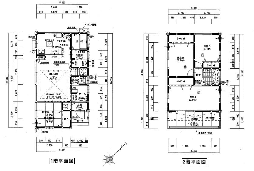
Price 価格 | | 29,800,000 yen 2980万円 | Floor plan 間取り | | 4LDK 4LDK | Units sold 販売戸数 | | 1 units 1戸 | Total units 総戸数 | | 2 units 2戸 | Land area 土地面積 | | 108.9 sq m (registration) 108.9m2(登記) | Building area 建物面積 | | 96.05 sq m (registration) 96.05m2(登記) | Driveway burden-road 私道負担・道路 | | Nothing 無 | Completion date 完成時期(築年月) | | February 2014 2014年2月 | Address 住所 | | Fukuoka, Hakata-ku, Fukuoka City Yoshizuka 7 福岡県福岡市博多区吉塚7 | Traffic 交通 | | JR Kagoshima Main Line "Yoshizuka" walk 12 minutes JR鹿児島本線「吉塚」歩12分
| Person in charge 担当者より | | Rep Ide 担当者井手 | Contact お問い合せ先 | | (Ltd.) Riva utility Home TEL: 0800-602-6823 [Toll free] mobile phone ・ Also available from PHS Caller ID is not notified Please contact the "saw SUUMO (Sumo)" If it does not lead, If the real estate company (株)リバリティホームTEL:0800-602-6823【通話料無料】携帯電話・PHSからもご利用いただけます 発信者番号は通知されません 「SUUMO(スーモ)を見た」と問い合わせください つながらない方、不動産会社の方は
| Building coverage, floor area ratio 建ぺい率・容積率 | | 60% ・ 200% 60%・200% | Time residents 入居時期 | | Three months after the contract 契約後3ヶ月 | Land of the right form 土地の権利形態 | | Ownership 所有権 | Structure and method of construction 構造・工法 | | Wooden 2-story (framing method) 木造2階建(軸組工法) | Construction 施工 | | (Ltd.) AST (株)アスト | Use district 用途地域 | | Semi-industrial 準工業 | Overview and notices その他概要・特記事項 | | Contact: Ide, Facilities: Public Water Supply, This sewage, Building confirmation number: No. H25 confirmation architecture Fukuzumi cell this issue 01325, Parking: car space 担当者:井手、設備:公営水道、本下水、建築確認番号:第H25確認建築福住セ本01325号、駐車場:カースペース | Company profile 会社概要 | | <Mediation> Governor of Fukuoka Prefecture (1) No. 017072 (Ltd.) Riva utility Home Yubinbango811-1314 Fukuoka Prefecture, Minami-ku, Fukuoka City Matoba 2-41-14 <仲介>福岡県知事(1)第017072号(株)リバリティホーム〒811-1314 福岡県福岡市南区的場2-41-14 |
Compartment figure区画図  29,800,000 yen, 4LDK, Land area 108.9 sq m , Building area 96.05 sq m all two-compartment
2980万円、4LDK、土地面積108.9m2、建物面積96.05m2 全2区画
Floor plan間取り図  29,800,000 yen, 4LDK, Land area 108.9 sq m , Building area 96.05 sq m 2 No. land
2980万円、4LDK、土地面積108.9m2、建物面積96.05m2 2号地
Same specifications photos (appearance)同仕様写真(外観)  Same specifications image
同仕様イメージ
Same specifications photos (living)同仕様写真(リビング)  Same specifications image
同仕様イメージ
Same specifications photo (bathroom)同仕様写真(浴室)  Same specifications image
同仕様イメージ
Same specifications photo (kitchen)同仕様写真(キッチン)  Same specifications image
同仕様イメージ
Wash basin, toilet洗面台・洗面所  Same specifications image
同仕様イメージ
Location
|