New Homes » Kyushu » Fukuoka Prefecture » Higashi-ku
 
| | Fukuoka Prefecture, Higashi-ku, Fukuoka 福岡県福岡市東区 |
| JR Kashii Line "Maimatsubara" walk 15 minutes JR香椎線「舞松原」歩15分 |
| Corresponding to the flat-35S, Immediate Available, Energy-saving water heaters, System kitchen, Yang per good, All room storage, A quiet residential area, LDK15 tatami mats or moreese-style room, Washbasin with shower, Face-to-face kitchen, Barrier- フラット35Sに対応、即入居可、省エネ給湯器、システムキッチン、陽当り良好、全居室収納、閑静な住宅地、LDK15畳以上、和室、シャワー付洗面台、対面式キッチン、バリアフ |
| Corresponding to the flat-35S, Immediate Available, Energy-saving water heaters, System kitchen, Yang per good, All room storage, A quiet residential area, LDK15 tatami mats or moreese-style room, Washbasin with shower, Face-to-face kitchen, Barrier-free, Toilet 2 places, 2-story, Double-glazing, Warm water washing toilet seat, Underfloor Storage, The window in the bathroom, TV monitor interphone, City gas フラット35Sに対応、即入居可、省エネ給湯器、システムキッチン、陽当り良好、全居室収納、閑静な住宅地、LDK15畳以上、和室、シャワー付洗面台、対面式キッチン、バリアフリー、トイレ2ヶ所、2階建、複層ガラス、温水洗浄便座、床下収納、浴室に窓、TVモニタ付インターホン、都市ガス |
Features pickup 特徴ピックアップ | | Corresponding to the flat-35S / Immediate Available / Energy-saving water heaters / System kitchen / Yang per good / All room storage / A quiet residential area / LDK15 tatami mats or more / Japanese-style room / Washbasin with shower / Face-to-face kitchen / Barrier-free / Toilet 2 places / 2-story / Double-glazing / Warm water washing toilet seat / Underfloor Storage / The window in the bathroom / TV monitor interphone / City gas フラット35Sに対応 /即入居可 /省エネ給湯器 /システムキッチン /陽当り良好 /全居室収納 /閑静な住宅地 /LDK15畳以上 /和室 /シャワー付洗面台 /対面式キッチン /バリアフリー /トイレ2ヶ所 /2階建 /複層ガラス /温水洗浄便座 /床下収納 /浴室に窓 /TVモニタ付インターホン /都市ガス | Price 価格 | | 27,800,000 yen 2780万円 | Floor plan 間取り | | 4LDK 4LDK | Units sold 販売戸数 | | 1 units 1戸 | Total units 総戸数 | | 3 units 3戸 | Land area 土地面積 | | 140.7 sq m (42.56 tsubo) (measured) 140.7m2(42.56坪)(実測) | Building area 建物面積 | | 97.71 sq m (29.55 tsubo) (measured) 97.71m2(29.55坪)(実測) | Driveway burden-road 私道負担・道路 | | Nothing, North 4.7m width, West 8.5m width 無、北4.7m幅、西8.5m幅 | Completion date 完成時期(築年月) | | September 2013 2013年9月 | Address 住所 | | Fukuoka Prefecture, Higashi-ku, Fukuoka Maimatsubara 1 福岡県福岡市東区舞松原1 | Traffic 交通 | | JR Kashii Line "Maimatsubara" walk 15 minutes JR香椎線「舞松原」歩15分
| Person in charge 担当者より | | Roasted seat and the person in charge 担当者いりざと | Contact お問い合せ先 | | Phoenix ・ Earl ・ E (stock) TEL: 092-534-7787 Please inquire as "saw SUUMO (Sumo)" フェニックス・アール・イー(株)TEL:092-534-7787「SUUMO(スーモ)を見た」と問い合わせください | Building coverage, floor area ratio 建ぺい率・容積率 | | Fifty percent ・ 80% 50%・80% | Time residents 入居時期 | | Immediate available 即入居可 | Land of the right form 土地の権利形態 | | Ownership 所有権 | Structure and method of construction 構造・工法 | | Wooden 2-story (framing method) 木造2階建(軸組工法) | Use district 用途地域 | | One low-rise 1種低層 | Other limitations その他制限事項 | | Regulations have by the Aviation Law, Shade limit Yes 航空法による規制有、日影制限有 | Overview and notices その他概要・特記事項 | | Contact: Iriza and, Facilities: Public Water Supply, This sewage, City gas, Building confirmation number: first KJH13-00905-1, Parking: car space 担当者:いりざと、設備:公営水道、本下水、都市ガス、建築確認番号:第KJH13-00905-1、駐車場:カースペース | Company profile 会社概要 | | <Mediation> Governor of Fukuoka Prefecture (1) No. 016517 Phoenix ・ Earl ・ E Co., Ltd. Yubinbango810-0022 Fukuoka Chuo-ku, Fukuoka City Yakuin 3-12-15 <仲介>福岡県知事(1)第016517号フェニックス・アール・イー(株)〒810-0022 福岡県福岡市中央区薬院3-12-15 |
Local appearance photo現地外観写真  Local (10 May 2013) Shooting
現地(2013年10月)撮影
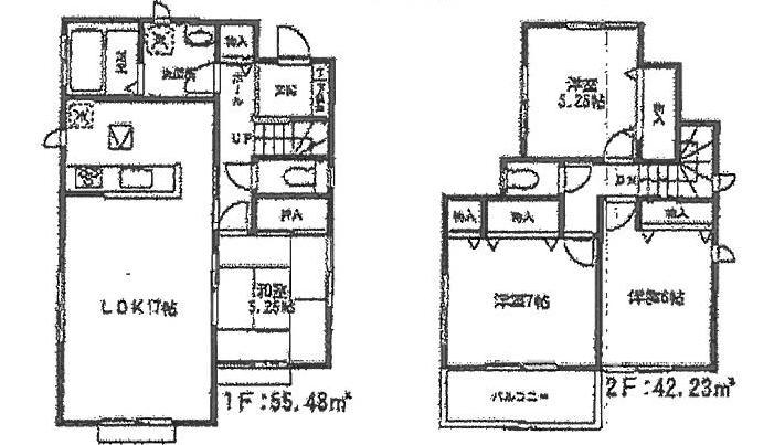
Floor plan間取り図  27,800,000 yen, 4LDK, Land area 140.7 sq m , Building area 97.71 sq m 1 Building new construction 4LDK 2 cars Cars Allowed
2780万円、4LDK、土地面積140.7m2、建物面積97.71m2 1号棟新築4LDK車2台可
 Same specifications photo (kitchen)
同仕様写真(キッチン)
Same specifications photos (Other introspection)同仕様写真(その他内観)  Japanese style room
和室
Otherその他  Maimatsubara elementary school
舞松原小学校
 Tatara junior high school
多々良中学校
Location
|