New Homes » Kyushu » Fukuoka Prefecture » Higashi-ku
 
| | Fukuoka Prefecture, Higashi-ku, Fukuoka 福岡県福岡市東区 |
| JR Kashii Line "Maimatsubara" walk 9 minutes JR香椎線「舞松原」歩9分 |
| ☆ Finished already ☆ JR Kashii Line "Maimatsubara" station walk 9 minutes ☆ Storage Easy because there is a storeroom ◆ Please feel free to contact us until the toll-free number 0800-603-2314 ☆完成済☆JR香椎線「舞松原」駅徒歩9分☆納戸があるので収納ラクラク◆フリーダイアル0800-603-2314までお気軽にお問合せください |
| ☆ Our HP ☆ Sumo non-listed property is also being published in the, Customers who have thought that scary is hard sell to go to the customer ◇ real estate agent you are wondering whether the anxiety take a look please ◇◇ mortgage borrowing can be likely, Region if our staff "good of the people" is the NO.1! ◇ While the request of sale, Quite the customer that does not sell in the amount of hope ~ Please consult any worries Plenty of real estate, Peace of mind ・ It boasts a secure transactions! ~ Until the toll-free number 0800-603-2314 please feel free (= ^ ▽ ^ =) Bruno ☆弊社HP☆にてスーモ非掲載物件も公開中、是非ご覧ください◇◇住宅ローンの借り入れが出来るか不安に思っているお客様◇不動産屋に行くと押し売りされそうで怖いと思っているお客様、弊社スタッフ『人の良さ』なら地域NO.1です!◇売却の依頼をしているが、なかなか希望の金額で売れないというお客様 ~ 不動産のことならどんなお悩みでもご相談ください、安心・安全な取引が自慢です! ~ フリーダイアル0800-603-2314までお気軽にどうぞ(=^▽^=)ノ |
Features pickup 特徴ピックアップ | | Immediate Available / Energy-saving water heaters / System kitchen / Japanese-style room / Washbasin with shower / Barrier-free / Toilet 2 places / Bathroom 1 tsubo or more / 2-story / Warm water washing toilet seat / Underfloor Storage / TV monitor interphone / Water filter / City gas 即入居可 /省エネ給湯器 /システムキッチン /和室 /シャワー付洗面台 /バリアフリー /トイレ2ヶ所 /浴室1坪以上 /2階建 /温水洗浄便座 /床下収納 /TVモニタ付インターホン /浄水器 /都市ガス | Price 価格 | | 22,800,000 yen 2280万円 | Floor plan 間取り | | 4LDK + S (storeroom) 4LDK+S(納戸) | Units sold 販売戸数 | | 1 units 1戸 | Total units 総戸数 | | 2 units 2戸 | Land area 土地面積 | | 123.92 sq m 123.92m2 | Building area 建物面積 | | 94.76 sq m 94.76m2 | Completion date 完成時期(築年月) | | 2013 late October 2013年10月下旬 | Address 住所 | | Fukuoka Prefecture, Higashi-ku, Fukuoka Hatta 3-23 No. undecided or less 福岡県福岡市東区八田3-23番以下未定 | Traffic 交通 | | JR Kashii Line "Maimatsubara" walk 9 minutes Nishitetsu "Hatta park" walk 2 minutes JR香椎線「舞松原」歩9分 西鉄バス「八田団地」歩2分 | Related links 関連リンク | | [Related Sites of this company] 【この会社の関連サイト】 | Person in charge 担当者より | | Rep flower stone Shuichi Age: 30 Daigyokai experience: we the there was the best house on the request of the 10-year customer I want to look with our customers. In all sincerity, It will be supported by the sincerity muffled Service. 担当者花石 秀一年齢:30代業界経験:10年お客様のご要望にあったベストな住宅をお客様と共に探していきたいと思っております。誠心誠意、真心こもったサービスでサポートさせて頂きます。 | Contact お問い合せ先 | | TEL: 0800-603-2314 [Toll free] mobile phone ・ Also available from PHS Caller ID is not notified Please contact the "saw SUUMO (Sumo)" If it does not lead, If the real estate company TEL:0800-603-2314【通話料無料】携帯電話・PHSからもご利用いただけます 発信者番号は通知されません 「SUUMO(スーモ)を見た」と問い合わせください つながらない方、不動産会社の方は
| Building coverage, floor area ratio 建ぺい率・容積率 | | Building coverage 50%, Volume of 80% 建ぺい率50%、容積率80% | Time residents 入居時期 | | Consultation 相談 | Land of the right form 土地の権利形態 | | Ownership 所有権 | Structure and method of construction 構造・工法 | | Wooden 2-story 木造2階建 | Use district 用途地域 | | One low-rise 1種低層 | Land category 地目 | | Residential land 宅地 | Overview and notices その他概要・特記事項 | | Contact: flower stone Shuichi, Building confirmation number: No. H25SHC112555 担当者:花石 秀一、建築確認番号:第H25SHC112555号 | Company profile 会社概要 | | <Mediation> Minister of Land, Infrastructure and Transport (2) No. 007017 (Corporation) All Japan Real Estate Association (One company) Kyushu Real Estate Fair Trade Council member (Ltd.) House Freedom Spanish mackerel shop Yubinbango814-0022 Fukuoka Sawara KuHara 1-39-19 <仲介>国土交通大臣(2)第007017号(公社)全日本不動産協会会員 (一社)九州不動産公正取引協議会加盟(株)ハウスフリーダム早良店〒814-0022 福岡県福岡市早良区原1-39-19 |
Same specifications photos (appearance)同仕様写真(外観)  ☆ Same specifications appearance ☆
☆同仕様外観☆
 ☆ Same specifications appearance ☆
☆同仕様外観☆
Same specifications photos (living)同仕様写真(リビング)  ☆ Same specifications living ☆
☆同仕様リビング☆
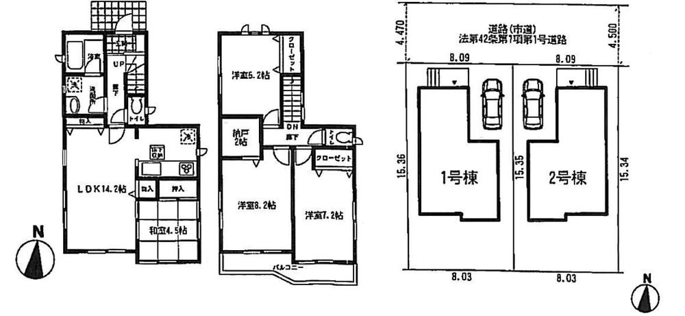
Floor plan間取り図  (1 Building), Price 22,800,000 yen, 4LDK+S, Land area 123.92 sq m , Building area 94.76 sq m
(1号棟)、価格2280万円、4LDK+S、土地面積123.92m2、建物面積94.76m2
Same specifications photo (bathroom)同仕様写真(浴室)  ☆ Same specification bathroom ☆
☆同仕様浴室☆
Same specifications photo (kitchen)同仕様写真(キッチン)  ☆ Same specification kitchen ☆
☆同仕様キッチン☆
 ☆ Same specification kitchen ☆
☆同仕様キッチン☆
Location
|