New Homes » Kyushu » Fukuoka Prefecture » Higashi-ku
 
| | Fukuoka Prefecture, Higashi-ku, Fukuoka 福岡県福岡市東区 |
| JR Kagoshima Main Line "Kashii" walk 10 minutes JR鹿児島本線「香椎」歩10分 |
| Station near Property Beans Kashii shop in 2 wayside available commuting convenient walk within 15 minutes to go to school, Nishitetsu Store, Drag Mori There is a post office, Financial institutions, JA such as the surrounding facilities are enriched area H26 / February completed 駅近物件 2沿線利用可能通勤通学に便利徒歩15分内にビーンズ香椎店、西鉄ストア、ドラッグモリあり郵便局、金融機関、JAなど周辺施設が充実エリアH26/2月完成 |
| New condominium properties living stairs near to the train station convenient area! The main bedroom 9 Pledge! ! And even a walk-in closet. Other Western-style six quires a quiet residential area It has become a condominium in one compartment. It will be unfinished property, but local guides can be. Guidance possible to complete Property & model house of the same specification. Consultation of the loan, Please feel free to contact us so we have questions experienced our staff, such as on housing will correspond. 駅にも近く便利なエリアでの新規分譲物件リビング階段! 主寝室は 9帖!! そしてウォークインクローゼットも。その他洋室も6帖閑静な住宅街 1区画での分譲となっております。未完成物件になりますが現地案内可能。同仕様の完成物件&モデルハウスにご案内可能。ローンのご相談、住宅に関するご質問など経験豊富な弊社スタッフが対応いたしますのでお気軽にお問い合わせくださいませ。 |
Features pickup 特徴ピックアップ | | Parking two Allowed / 2 along the line more accessible / Facing south / System kitchen / All room storage / A quiet residential area / LDK15 tatami mats or more / Japanese-style room / Washbasin with shower / Face-to-face kitchen / Toilet 2 places / Bathroom 1 tsubo or more / 2-story / South balcony / Warm water washing toilet seat / Underfloor Storage / The window in the bathroom / TV monitor interphone / Ventilation good / Walk-in closet 駐車2台可 /2沿線以上利用可 /南向き /システムキッチン /全居室収納 /閑静な住宅地 /LDK15畳以上 /和室 /シャワー付洗面台 /対面式キッチン /トイレ2ヶ所 /浴室1坪以上 /2階建 /南面バルコニー /温水洗浄便座 /床下収納 /浴室に窓 /TVモニタ付インターホン /通風良好 /ウォークインクロゼット | Price 価格 | | 24,300,000 yen 2430万円 | Floor plan 間取り | | 4LDK 4LDK | Units sold 販売戸数 | | 1 units 1戸 | Total units 総戸数 | | 1 units 1戸 | Land area 土地面積 | | 109.95 sq m 109.95m2 | Building area 建物面積 | | 101.02 sq m 101.02m2 | Driveway burden-road 私道負担・道路 | | Nothing, South 3.2m width 無、南3.2m幅 | Completion date 完成時期(築年月) | | February 2014 2014年2月 | Address 住所 | | Fukuoka Prefecture, Higashi-ku, Fukuoka Kashiiekihigashi 1 福岡県福岡市東区香椎駅東1 | Traffic 交通 | | JR Kagoshima Main Line "Kashii" walk 10 minutes Nishitetsu Kaizuka line "Kashii Nishitetsu" walk 12 minutes Nishitetsu "envoy" walk 10 minutes JR鹿児島本線「香椎」歩10分 西鉄貝塚線「西鉄香椎」歩12分 西鉄バス「勅使」歩10分 | Person in charge 担当者より | | Rep Ide 092-586-5758 担当者井手092-586-5758 | Contact お問い合せ先 | | (Ltd.) Riva utility Home TEL: 0800-602-6823 [Toll free] mobile phone ・ Also available from PHS Caller ID is not notified Please contact the "saw SUUMO (Sumo)" If it does not lead, If the real estate company (株)リバリティホームTEL:0800-602-6823【通話料無料】携帯電話・PHSからもご利用いただけます 発信者番号は通知されません 「SUUMO(スーモ)を見た」と問い合わせください つながらない方、不動産会社の方は
| Building coverage, floor area ratio 建ぺい率・容積率 | | 60% ・ Hundred percent 60%・100% | Time residents 入居時期 | | March 2014 schedule 2014年3月予定 | Land of the right form 土地の権利形態 | | Ownership 所有権 | Structure and method of construction 構造・工法 | | Wooden 2-story 木造2階建 | Use district 用途地域 | | One middle and high 1種中高 | Overview and notices その他概要・特記事項 | | Contact: Ide 092-586-5758, Facilities: Public Water Supply, This sewage, Individual LPG, Building confirmation number: No. H25 confirmation architecture Fukuzumi cell this issue 01402, Parking: car space 担当者:井手092-586-5758、設備:公営水道、本下水、個別LPG、建築確認番号:第H25確認建築福住セ本01402号、駐車場:カースペース | Company profile 会社概要 | | <Mediation> Governor of Fukuoka Prefecture (1) No. 017072 (Ltd.) Riva utility Home Yubinbango811-1314 Fukuoka Prefecture, Minami-ku, Fukuoka City Matoba 2-41-14 <仲介>福岡県知事(1)第017072号(株)リバリティホーム〒811-1314 福岡県福岡市南区的場2-41-14 |
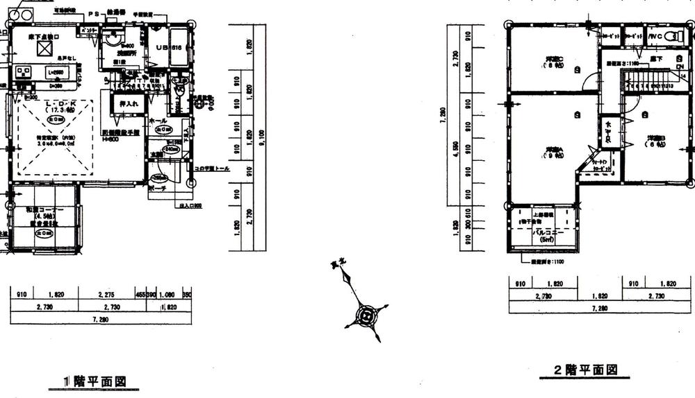
Floor plan間取り図  24,300,000 yen, 4LDK, Land area 109.95 sq m , Building area 101.02 sq m
2430万円、4LDK、土地面積109.95m2、建物面積101.02m2
Same specifications photos (appearance)同仕様写真(外観)  Same specifications image Kasuga model house
同仕様イメージ 春日市モデルハウス
Same specifications photos (living)同仕様写真(リビング)  Same specifications image (Kamishirozu 2 Building)
同仕様イメージ(上白水2号棟)
Same specifications photo (bathroom)同仕様写真(浴室)  Same specifications image (Kamishirozu 2 Building)
同仕様イメージ(上白水2号棟)
Same specifications photo (kitchen)同仕様写真(キッチン)  Same specifications image (Kamishirozu 2 Building)
同仕様イメージ(上白水2号棟)
Same specifications photos (Other introspection)同仕様写真(その他内観)  Same specifications image (Kamishirozu 2 Building)
同仕様イメージ(上白水2号棟)
Location
|