New Homes » Kyushu » Fukuoka Prefecture » Minami-ku
 
| | Fukuoka Prefecture, Minami-ku, Fukuoka City 福岡県福岡市南区 |
| Nishitetsu "Yakatabara" walk 2 minutes 西鉄バス「屋形原」歩2分 |
| Completion is property Local preview Allowed (^ - ^) / Please feel free to contact us City gas, LDK15 tatami mats or more, Pre-ground survey, All room storage, Seismic fit, Parking two Allowed, Corresponding to the flat-35S, Energy-saving hot water supply 完成物件です 現地内覧可(^-^)/ お気軽にお問い合わせください 都市ガス、LDK15畳以上、地盤調査済、全居室収納、耐震適合、駐車2台可、フラット35Sに対応、省エネ給湯 |
| Completion is property Local preview Allowed (^ - ^) / Please feel free to contact us City gas, LDK15 tatami mats or more, Pre-ground survey, All room storage, Seismic fit, Parking two Allowed, Corresponding to the flat-35S, Energy-saving water heaters, Facing south, System kitchen, A quiet residential areaese-style room, garden, Face-to-face kitchen, Barrier-free, Toilet 2 places, Bathroom 1 tsubo or more, 2-story, South balcony, Double-glazing, Warm water washing toilet seat, Nantei, Underfloor Storage, The window in the bathroom, TV monitor interphone, Ventilation good 完成物件です 現地内覧可(^-^)/ お気軽にお問い合わせください 都市ガス、LDK15畳以上、地盤調査済、全居室収納、耐震適合、駐車2台可、フラット35Sに対応、省エネ給湯器、南向き、システムキッチン、閑静な住宅地、和室、庭、対面式キッチン、バリアフリー、トイレ2ヶ所、浴室1坪以上、2階建、南面バルコニー、複層ガラス、温水洗浄便座、南庭、床下収納、浴室に窓、TVモニタ付インターホン、通風良好 |
Features pickup 特徴ピックアップ | | Corresponding to the flat-35S / Pre-ground survey / Seismic fit / Parking two Allowed / Energy-saving water heaters / Facing south / System kitchen / All room storage / A quiet residential area / LDK15 tatami mats or more / Japanese-style room / garden / Face-to-face kitchen / Barrier-free / Toilet 2 places / Bathroom 1 tsubo or more / 2-story / South balcony / Double-glazing / Warm water washing toilet seat / Nantei / Underfloor Storage / The window in the bathroom / TV monitor interphone / Ventilation good / City gas フラット35Sに対応 /地盤調査済 /耐震適合 /駐車2台可 /省エネ給湯器 /南向き /システムキッチン /全居室収納 /閑静な住宅地 /LDK15畳以上 /和室 /庭 /対面式キッチン /バリアフリー /トイレ2ヶ所 /浴室1坪以上 /2階建 /南面バルコニー /複層ガラス /温水洗浄便座 /南庭 /床下収納 /浴室に窓 /TVモニタ付インターホン /通風良好 /都市ガス | Event information イベント情報 | | (Please be sure to ask in advance) (事前に必ずお問い合わせください) | Price 価格 | | 24,800,000 yen 2480万円 | Floor plan 間取り | | 4LDK 4LDK | Units sold 販売戸数 | | 1 units 1戸 | Total units 総戸数 | | 2 units 2戸 | Land area 土地面積 | | 150 sq m (45.37 square meters) 150m2(45.37坪) | Building area 建物面積 | | 96.67 sq m (29.24 square meters) 96.67m2(29.24坪) | Driveway burden-road 私道負担・道路 | | Nothing, Southwest 4m width 無、南西4m幅 | Completion date 完成時期(築年月) | | October 2013 2013年10月 | Address 住所 | | Fukuoka Prefecture, Minami-ku, Fukuoka City flower garden 3 福岡県福岡市南区花畑3 | Traffic 交通 | | Nishitetsu "Yakatabara" walk 2 minutes 西鉄バス「屋形原」歩2分 | Related links 関連リンク | | [Related Sites of this company] 【この会社の関連サイト】 | Person in charge 担当者より | | Rep Kuroki Hidetoshi Age: 30 Daigyokai Experience: 7 years everyone Nice to meet you!! My name is of buying and selling in charge Kuroki. With the feeling that became your family, Merit and we will of course disadvantages also to the convincing Ieerabi by to convey a clear. 担当者黒木 秀俊年齢:30代業界経験:7年みなさん はじめまして!! 売買担当の黒木と申します。お客様の家族になった気持ちで、メリットはもちろんデメリットもハッキリとお伝えすることにより納得いく家選びをさせて頂きます。 | Contact お問い合せ先 | | TEL: 0800-603-3195 [Toll free] mobile phone ・ Also available from PHS Caller ID is not notified Please contact the "saw SUUMO (Sumo)" If it does not lead, If the real estate company TEL:0800-603-3195【通話料無料】携帯電話・PHSからもご利用いただけます 発信者番号は通知されません 「SUUMO(スーモ)を見た」と問い合わせください つながらない方、不動産会社の方は
| Building coverage, floor area ratio 建ぺい率・容積率 | | 60% ・ 160% 60%・160% | Time residents 入居時期 | | 1 month after the contract 契約後1ヶ月 | Land of the right form 土地の権利形態 | | Ownership 所有権 | Structure and method of construction 構造・工法 | | Wooden 2-story 木造2階建 | Use district 用途地域 | | One dwelling 1種住居 | Other limitations その他制限事項 | | Drawing water easement 引水地役権 | Overview and notices その他概要・特記事項 | | Contact: Kuroki Hidetoshi, Facilities: Public Water Supply, This sewage, City gas, Building confirmation number: KJH13-02193-1, Parking: car space 担当者:黒木 秀俊、設備:公営水道、本下水、都市ガス、建築確認番号:KJH13-02193-1、駐車場:カースペース | Company profile 会社概要 | | <Mediation> Governor of Fukuoka Prefecture (3) No. 014300 (Corporation), Fukuoka Prefecture Building Lots and Buildings Transaction Business Association (One company) Kyushu Real Estate Fair Trade Council member (with) Green Estate Yubinbango811-0201 Fukuoka Prefecture, Higashi-ku, Fukuoka Mitoma 5-7-35 <仲介>福岡県知事(3)第014300号(公社)福岡県宅地建物取引業協会会員 (一社)九州不動産公正取引協議会加盟(有)グリーンエステート〒811-0201 福岡県福岡市東区三苫5-7-35 |
Local appearance photo現地外観写真  ※ The photograph is a property of the same manufacturer and construction.
※写真は同一メーカー施工の物件です。
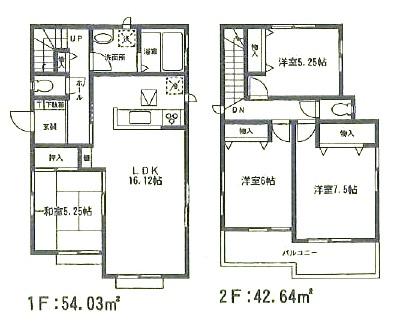
Floor plan間取り図  24,800,000 yen, 4LDK, Land area 150 sq m , Building area 96.67 sq m Floor
2480万円、4LDK、土地面積150m2、建物面積96.67m2 間取り
Livingリビング  ※ The photograph is a property of the same manufacturer and construction.
※写真は同一メーカー施工の物件です。
 Same specifications photos (appearance)
同仕様写真(外観)
 Same specifications photos (living)
同仕様写真(リビング)
Bathroom浴室  ※ The photograph is a property of the same manufacturer and construction.
※写真は同一メーカー施工の物件です。
Kitchenキッチン  ※ The photograph is a property of the same manufacturer and construction.
※写真は同一メーカー施工の物件です。
Entrance玄関  Same specifications Photos
同仕様写真
Wash basin, toilet洗面台・洗面所  Same specifications Photos
同仕様写真
Receipt収納  Same specifications Photos
同仕様写真
Toiletトイレ  Same specifications Photos
同仕様写真
Balconyバルコニー  Same specifications Photos
同仕様写真
 Same specifications photos (Other introspection)
同仕様写真(その他内観)
Model house photoモデルハウス写真  Model house
モデルハウス
Otherその他  Same specifications Photos
同仕様写真
 Same specifications photo (kitchen)
同仕様写真(キッチン)
Entrance玄関  Same specifications Photos
同仕様写真
 Same specifications photos (Other introspection)
同仕様写真(その他内観)
Otherその他  Same specifications Photos
同仕様写真
Entrance玄関  Same specifications Photos
同仕様写真
Location
|