New Homes » Kyushu » Fukuoka Prefecture » Minami-ku


Fukuoka Prefecture, Minami-ku, Fukuoka City
Nishitetsu Tenjin Omuta Line "Takamiya" walk 14 minutes
◆ ◆ Featured here is my ◆ Your family spacious living room that everyone is comfortable and welcoming ◆ ◆ Barrier type housing ◆ TEL: 0800-808-9366 *: You can guide you on the same day *
■ If the guarantee system residential warranty fulfillment method (consumer peace of mind there was a defect in the house that was purchased, The law for carrying out such as the repair of the defect surely. ) ■ Implementation of periodic inspection service (after 6 months from the house ... delivery, After one year, After two years a total of three times, We will carry out regular inspections. ) ■ In addition to the high security of the front door (2 locking mechanism, In addition it comes standard with an electric lock which is excellent in crime prevention. ) ■ Self-cleaning function with external wall material (in the work of the special surface coating, Dirt has become easy to fall flow in rainwater. ) ■ Insulated door ・ Thermal barrier Low-e double-layer glass-filled window ■ Please contact us in the down payment $ 0. TEL: 0800-808-9366 *: You can guide you on the same day *
Features pickup
Corresponding to the flat-35S / Pre-ground survey / Parking two Allowed / Energy-saving water heaters / Super close / It is close to the city / System kitchen / Yang per good / All room storage / Flat to the station / A quiet residential area / LDK15 tatami mats or more / Japanese-style room / Washbasin with shower / Face-to-face kitchen / Barrier-free / Toilet 2 places / Bathroom 1 tsubo or more / South balcony / Double-glazing / Otobasu / Warm water washing toilet seat / Underfloor Storage / The window in the bathroom / TV monitor interphone / Urban neighborhood / Ventilation good / All room 6 tatami mats or more / All rooms are two-sided lighting / roof balcony / Flat terrain
Price
28,480,000 yen
Floor plan
4LDK
Units sold
1 units
Land area
126.69 sq m (registration)
Building area
104.34 sq m (registration)
Driveway burden-road
Nothing, North 4m width
Completion date
August 2013
Address
Shimizu Fukuoka Prefecture, Minami-ku, Fukuoka City 1
Traffic
Nishitetsu Tenjin Omuta Line "Takamiya" walk 14 minutes
Related links
[Related Sites of this company]
Person in charge
Rep Nonaka Takashi Age: 30s ◆ Peace of mind even for the first time customers. Empathetically, We support the looking of hope Property! Property information full of our HP also Please use. ◆ 7 days a week ◆ 0800-808-9366 ◆
Contact
TEL: 0800-808-9366 [Toll free] mobile phone ・ Also available from PHS
Caller ID is not notified
Please contact the "saw SUUMO (Sumo)"
If it does not lead, If the real estate company
Building coverage, floor area ratio
60% ・ 160%
Time residents
Consultation
Land of the right form
Ownership
Structure and method of construction
Wooden 2-story (framing method)
Use district
Two dwellings
Overview and notices
Contact: Nonaka Takashi, Facilities: Public Water Supply, This sewage, Centralized LPG, Building confirmation number: KJH12039081, Parking: car space
Company profile
<Mediation> Governor of Fukuoka Prefecture (1) No. 017142 (Ltd.) information service Fukuoka Yubinbango812-0894 Fukuoka, Hakata-ku, Fukuoka City Morooka 3-1-35


Local appearance photo

Local appearance photo.  ☆ Image is a photograph at the time of completion ☆
☆ Image is a photograph at the time of completion ☆

Kitchen

Kitchen.  ☆ Image is a photograph at the time of completion ☆
☆ Image is a photograph at the time of completion ☆

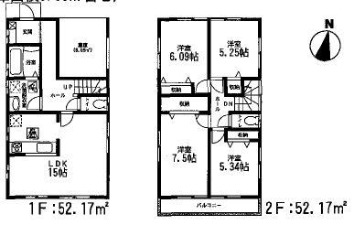
Floor plan

Floor plan. 28,480,000 yen, 4LDK, Land area 126.69 sq m , Building area 104.34 sq m   ☆ 4LDK Parking two ☆
28,480,000 yen, 4LDK, Land area 126.69 sq m , Building area 104.34 sq m ☆ 4LDK Parking two ☆

Living

Living.  ☆ Image is a photograph at the time of completion ☆
☆ Image is a photograph at the time of completion ☆

Bathroom

Bathroom.  ☆ Image is a photograph at the time of completion ☆
☆ Image is a photograph at the time of completion ☆

Same specifications photo (kitchen)

Same specifications photo (kitchen).  ☆ Image is a photograph at the time of completion ☆
☆ Image is a photograph at the time of completion ☆

Entrance

Entrance.  ☆ Image is a photograph at the time of completion ☆
☆ Image is a photograph at the time of completion ☆

Wash basin, toilet

Wash basin, toilet.  ☆ Image is a photograph at the time of completion ☆
☆ Image is a photograph at the time of completion ☆

Receipt

Receipt.  ☆ Image is a photograph at the time of completion ☆
☆ Image is a photograph at the time of completion ☆

Toilet

Toilet.  ☆ Image is a photograph at the time of completion ☆
☆ Image is a photograph at the time of completion ☆

Same specifications photos (Other introspection)

Same specifications photos (Other introspection).  ☆ Image is a photograph at the time of completion ☆
☆ Image is a photograph at the time of completion ☆

Model house photo

Model house photo.  ☆ Image is a photograph at the time of completion ☆
☆ Image is a photograph at the time of completion ☆

Exhibition hall / Showroom

exhibition hall / Showroom.  ☆ Image is a photograph at the time of completion ☆
☆ Image is a photograph at the time of completion ☆

Same specifications photos (living)

Same specifications photos (living).  ☆ Image is a photograph at the time of completion ☆
☆ Image is a photograph at the time of completion ☆

Same specifications photo (bathroom)

Same specifications photo (bathroom).  ☆ Image is a photograph at the time of completion ☆
☆ Image is a photograph at the time of completion ☆

Entrance

Entrance.  ☆ Image is a photograph at the time of completion ☆
☆ Image is a photograph at the time of completion ☆

Receipt

Receipt.  ☆ Image is a photograph at the time of completion ☆
☆ Image is a photograph at the time of completion ☆

Rendering (introspection)

Rendering (introspection).  ☆ Image is a photograph at the time of completion ☆
☆ Image is a photograph at the time of completion ☆

Model house photo

Model house photo.  ☆ Image is a photograph at the time of completion ☆
☆ Image is a photograph at the time of completion ☆

Same specifications photos (Other introspection)

Same specifications photos (Other introspection).  ☆ Image is a photograph at the time of completion ☆
☆ Image is a photograph at the time of completion ☆



Location