New Homes » Kyushu » Fukuoka Prefecture » Minami-ku
 
| | Fukuoka Prefecture, Minami-ku, Fukuoka City 福岡県福岡市南区 |
| Nishitetsu Tenjin Omuta Line "Takamiya" walk 14 minutes 西鉄天神大牟田線「高宮」歩14分 |
| [5th Anniversary] Campaign in! Founded in backing fifth anniversary! Who was capped for the first time be announced at our company, 2,000 yen worth of gift certificates gift every month first 30 people! 【5th Anniversary】キャンペーン開催中!お蔭様で創立5周年!初めて弊社にてご案内させて頂いた方、毎月先着30名様に2,000円分の商品券プレゼント! |
| Immediate Available! Please refer to the actual building Come! ◎ lifestyle convenience facilities, Enhance ◎ 1 Building is, There is a walk-in closet, Storage capacity is rich Building 2 is not a Japanese-style room in with built-in garage, Western-style on the second floor is 4 there room Please feel free to contact us! 即入居可!実際の建物是非をご覧ください!◎生活利便施設、充実◎1号棟は、ウォークインクローゼットあり、収納力が豊富です2号棟はビルトイン車庫付で和室はなく、2階に洋室が4部屋ございますお気軽にお問い合わせ下さい! |
Features pickup 特徴ピックアップ | | Corresponding to the flat-35S / Pre-ground survey / Year Available / Parking two Allowed / Immediate Available / Energy-saving water heaters / Facing south / System kitchen / Yang per good / All room storage / LDK15 tatami mats or more / Japanese-style room / Shaping land / Washbasin with shower / Face-to-face kitchen / Toilet 2 places / Bathroom 1 tsubo or more / 2-story / South balcony / Warm water washing toilet seat / Underfloor Storage / The window in the bathroom / TV monitor interphone / Built garage / Walk-in closet / All room 6 tatami mats or more / City gas / All rooms are two-sided lighting フラット35Sに対応 /地盤調査済 /年内入居可 /駐車2台可 /即入居可 /省エネ給湯器 /南向き /システムキッチン /陽当り良好 /全居室収納 /LDK15畳以上 /和室 /整形地 /シャワー付洗面台 /対面式キッチン /トイレ2ヶ所 /浴室1坪以上 /2階建 /南面バルコニー /温水洗浄便座 /床下収納 /浴室に窓 /TVモニタ付インターホン /ビルトガレージ /ウォークインクロゼット /全居室6畳以上 /都市ガス /全室2面採光 | Price 価格 | | 28,480,000 yen ~ 28,980,000 yen 2848万円 ~ 2898万円 | Floor plan 間取り | | 4LDK 4LDK | Units sold 販売戸数 | | 2 units 2戸 | Total units 総戸数 | | 2 units 2戸 | Land area 土地面積 | | 126.02 sq m ~ 126.69 sq m (38.12 tsubo ~ 38.32 tsubo) (measured) 126.02m2 ~ 126.69m2(38.12坪 ~ 38.32坪)(実測) | Building area 建物面積 | | 104.34 sq m ~ 105.98 sq m (31.56 tsubo ~ 32.05 tsubo) (measured) 104.34m2 ~ 105.98m2(31.56坪 ~ 32.05坪)(実測) | Driveway burden-road 私道負担・道路 | | Contact road situation: the north side 4.0m municipal road 接道状況:北側4.0m市道 | Completion date 完成時期(築年月) | | September 2013 2013年9月 | Address 住所 | | Shimizu Fukuoka Prefecture, Minami-ku, Fukuoka City 1 福岡県福岡市南区清水1 | Traffic 交通 | | Nishitetsu Tenjin Omuta Line "Takamiya" walk 14 minutes JR Kagoshima Main Line "Hakata" bus 12 minutes Nishitetsu ・ Shimizu 1-chome, walk 2 minutes 西鉄天神大牟田線「高宮」歩14分 JR鹿児島本線「博多」バス12分西鉄バス・清水1丁目歩2分
| Related links 関連リンク | | [Related Sites of this company] 【この会社の関連サイト】 | Contact お問い合せ先 | | TEL: 0120717-123 [Toll free] Please contact the "saw SUUMO (Sumo)" TEL:0120717-123【通話料無料】「SUUMO(スーモ)を見た」と問い合わせください | Building coverage, floor area ratio 建ぺい率・容積率 | | Kenpei rate: 60%, Volume ratio: 160% 建ペい率:60%、容積率:160% | Time residents 入居時期 | | Immediate available 即入居可 | Land of the right form 土地の権利形態 | | Ownership 所有権 | Structure and method of construction 構造・工法 | | Wooden siding Zhang asphalt shingle 葺 2-story 木造サイディング張アスファルトシングル葺2階建 | Use district 用途地域 | | Two dwellings 2種住居 | Land category 地目 | | Residential land 宅地 | Other limitations その他制限事項 | | Regulations have by the Aviation Law, Height ceiling Yes 航空法による規制有、高さ最高限度有 | Overview and notices その他概要・特記事項 | | Building confirmation number: (1) No. KJH-12-03908-1 (2) No. KJH-12-03909-1 建築確認番号:(1)第KJH-12-03908-1号(2)第KJH-12-03909-1号 | Company profile 会社概要 | | <Mediation> Governor of Fukuoka Prefecture (1) No. 016400 (Corporation), Fukuoka Prefecture Building Lots and Buildings Transaction Business Association (One company) Kyushu Real Estate Fair Trade Council member (Ltd.) Eforu Yubinbango810-0074 Fukuoka Chuo-ku, Fukuoka City Otemon 1-8-8 <仲介>福岡県知事(1)第016400号(公社)福岡県宅地建物取引業協会会員 (一社)九州不動産公正取引協議会加盟(株)エフォール〒810-0074 福岡県福岡市中央区大手門1-8-8 |
Local appearance photo現地外観写真  Local (11 May 2013) Shooting
現地(2013年11月)撮影
Livingリビング  Living (November 2013) Shooting
リビング(2013年11月)撮影
Kitchenキッチン  Kitchen (November 2013) Shooting
キッチン(2013年11月)撮影
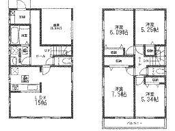
Floor plan間取り図  (1 Building), Price 28,980,000 yen, 4LDK, Land area 126.02 sq m , Building area 105.98 sq m
(1号棟)、価格2898万円、4LDK、土地面積126.02m2、建物面積105.98m2
Local appearance photo現地外観写真  Local (11 May 2013) Shooting
現地(2013年11月)撮影
Bathroom浴室  Bathroom (11 May 2013) Shooting
浴室(2013年11月)撮影
Non-living roomリビング以外の居室  Japanese-style room (11 May 2013) Shooting
和室(2013年11月)撮影
Wash basin, toilet洗面台・洗面所  Wash basin (November 2013) Shooting
洗面台(2013年11月)撮影
Receipt収納  Closet (November 2013) Shooting
押入(2013年11月)撮影
Toiletトイレ  1F toilet (November 2013) Shooting
1Fトイレ(2013年11月)撮影
Garden庭  Local (11 May 2013) Shooting
現地(2013年11月)撮影
Floor plan間取り図  (Building 2), Price 28,480,000 yen, 4LDK, Land area 126.69 sq m , Building area 104.34 sq m
(2号棟)、価格2848万円、4LDK、土地面積126.69m2、建物面積104.34m2
Non-living roomリビング以外の居室  Western-style (11 May 2013) Shooting
洋室(2013年11月)撮影
Receipt収納  Storage (11 May 2013) Shooting
収納(2013年11月)撮影
Toiletトイレ  2F toilet (November 2013) Shooting
2Fトイレ(2013年11月)撮影
Non-living roomリビング以外の居室  Western-style (11 May 2013) Shooting
洋室(2013年11月)撮影
Receipt収納  Storage (11 May 2013) Shooting
収納(2013年11月)撮影
Non-living roomリビング以外の居室  Western-style (11 May 2013) Shooting
洋室(2013年11月)撮影
Receipt収納  Storage (11 May 2013) Shooting
収納(2013年11月)撮影
 Storage (11 May 2013) Shooting
収納(2013年11月)撮影
Location
|