New Homes » Kyushu » Fukuoka Prefecture » Minami-ku
 
| | Fukuoka Prefecture, Minami-ku, Fukuoka City 福岡県福岡市南区 |
| Nishitetsu Tenjin Omuta Line "Takamiya" walk 14 minutes 西鉄天神大牟田線「高宮」歩14分 |
Features pickup 特徴ピックアップ | | Parking two Allowed / System kitchen / LDK15 tatami mats or more / Face-to-face kitchen / Toilet 2 places / 2-story / Double-glazing / Warm water washing toilet seat / Underfloor Storage / The window in the bathroom / TV monitor interphone / City gas 駐車2台可 /システムキッチン /LDK15畳以上 /対面式キッチン /トイレ2ヶ所 /2階建 /複層ガラス /温水洗浄便座 /床下収納 /浴室に窓 /TVモニタ付インターホン /都市ガス | Price 価格 | | 29,480,000 yen 2948万円 | Floor plan 間取り | | 4LDK 4LDK | Units sold 販売戸数 | | 1 units 1戸 | Total units 総戸数 | | 2 units 2戸 | Land area 土地面積 | | 126.6 sq m (38.29 tsubo) (measured) 126.6m2(38.29坪)(実測) | Building area 建物面積 | | 104.34 sq m (31.56 tsubo) (Registration) 104.34m2(31.56坪)(登記) | Driveway burden-road 私道負担・道路 | | Nothing, North 4m width 無、北4m幅 | Completion date 完成時期(築年月) | | September 2013 2013年9月 | Address 住所 | | Shimizu Fukuoka Prefecture, Minami-ku, Fukuoka City 1 福岡県福岡市南区清水1 | Traffic 交通 | | Nishitetsu Tenjin Omuta Line "Takamiya" walk 14 minutes 西鉄天神大牟田線「高宮」歩14分
| Person in charge 担当者より | | Rep Nyusato Naomi 担当者入里尚己 | Contact お問い合せ先 | | Phoenix ・ Earl ・ E (stock) TEL: 092-534-7787 Please inquire as "saw SUUMO (Sumo)" フェニックス・アール・イー(株)TEL:092-534-7787「SUUMO(スーモ)を見た」と問い合わせください | Building coverage, floor area ratio 建ぺい率・容積率 | | 60% ・ 160% 60%・160% | Time residents 入居時期 | | Consultation 相談 | Land of the right form 土地の権利形態 | | Ownership 所有権 | Structure and method of construction 構造・工法 | | Wooden 2-story (framing method) 木造2階建(軸組工法) | Use district 用途地域 | | Two dwellings 2種住居 | Overview and notices その他概要・特記事項 | | Contact: Naomi Nyusato, Facilities: Public Water Supply, This sewage, City gas, Parking: car space 担当者:入里尚己、設備:公営水道、本下水、都市ガス、駐車場:カースペース | Company profile 会社概要 | | <Mediation> Governor of Fukuoka Prefecture (1) No. 016517 Phoenix ・ Earl ・ E Co., Ltd. Yubinbango810-0022 Fukuoka Chuo-ku, Fukuoka City Yakuin 3-12-15 <仲介>福岡県知事(1)第016517号フェニックス・アール・イー(株)〒810-0022 福岡県福岡市中央区薬院3-12-15 |
 Local appearance photo
現地外観写真
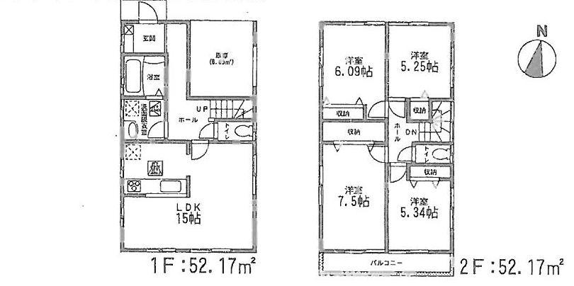
Floor plan間取り図  29,480,000 yen, 4LDK, Land area 126.6 sq m , Building area 104.34 sq m 4LDK
2948万円、4LDK、土地面積126.6m2、建物面積104.34m2 4LDK
Same specifications photos (Other introspection)同仕様写真(その他内観)  Kitchen
キッチン
 Cupboard
下駄箱
Otherその他  Tamagawa elementary school
玉川小学校
 HaruKaoru junior high school
春芳中学校
Location
|