New Homes » Kyushu » Fukuoka Prefecture » Minami-ku


Fukuoka Prefecture, Minami-ku, Fukuoka City
Nishitetsu "Yanagochi" walk 10 minutes
◆ Paseo Noma Oike store a 5-minute walk ◇ 1 floor with shutter shutters, Screen door standard specification ◆ Please call us feel free to toll-free 0800-603-2316.
◇ who wants to Relocation but from what just started looking for real estate is left ◇◇ mortgage those who do not know say with a hand [Our buyback program there] ◇◇ construction company has decided, but, Although the ◇◇ request of sale who are thought scary quite likely to be hard sell to go to ◇◇ real estate agent who land is thought to anxiety or not those ◇◇ mortgage borrowing can be to find, Quite anyone who does not sell in the amount of hope ◇ ~ Please consult any worries Plenty of real estate. Peace of mind ・ It boasts a secure transactions. ~
Features pickup
Corresponding to the flat-35S / Parking two Allowed / Land 50 square meters or more / Energy-saving water heaters / Super close / System kitchen / Bathroom Dryer / All room storage / A quiet residential area / LDK15 tatami mats or more / Japanese-style room / Washbasin with shower / Face-to-face kitchen / Toilet 2 places / 2-story / Double-glazing / Warm water washing toilet seat / Underfloor Storage / TV monitor interphone / All room 6 tatami mats or more
Event information
(Please be sure to ask in advance)
Price
30,800,000 yen ~ 31,800,000 yen
Floor plan
4LDK
Units sold
3 units
Total units
4 units
Land area
178.67 sq m ~ 195.5 sq m
Building area
96.39 sq m ~ 98.01 sq m
Driveway burden-road
West Width 4m public road, Southeast side Width 4m public road
Completion date
2013 mid-December
Address
Fukuoka Prefecture, Minami-ku, Fukuoka City Yanagochi 1
Traffic
Nishitetsu "Yanagochi" walk 10 minutes
Related links
[Related Sites of this company]
Person in charge
Rep Hayabusata Workmanship Age: 40's we are working hard aiming regional customer satisfaction NO.1 Please contact us once.
Contact
TEL: 0800-603-2316 [Toll free] mobile phone ・ Also available from PHS
Caller ID is not notified
Please contact the "saw SUUMO (Sumo)"
If it does not lead, If the real estate company
Building coverage, floor area ratio
Kenpei rate: 50%, Volume ratio: 80%
Time residents
Consultation
Land of the right form
Ownership
Structure and method of construction
Wooden 2-story
Use district
One low-rise
Land category
Residential land
Overview and notices
Contact: Hayabusata Excellent work, Building confirmation number: No. 1 Location: No. 00870, No. 2 Location: No. 00871, No. 3 Location: No. 00872
Company profile
<Mediation> Minister of Land, Infrastructure and Transport (2) No. 007017 (Corporation) All Japan Real Estate Association (One company) Kyushu Real Estate Fair Trade Council member (Ltd.) House Freedom Seongnam shop Yubinbango814-0133 Fukuoka Jonan-ku Nanakuma 4-11-13


Local appearance photo

Local appearance photo.  ◆ ◇ Please have a look once! ! ◇ ◆
◆ ◇ Please have a look once! ! ◇ ◆

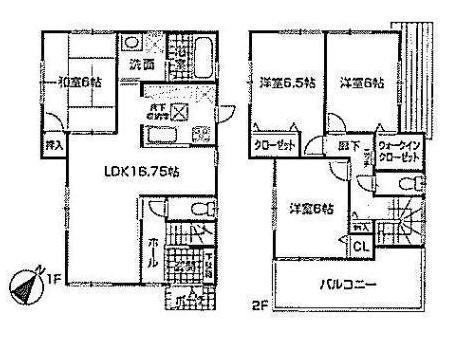
Floor plan

Floor plan. (No. 1 point), Price 30,800,000 yen, 4LDK, Land area 195.5 sq m , Building area 96.39 sq m
(No. 1 point), Price 30,800,000 yen, 4LDK, Land area 195.5 sq m , Building area 96.39 sq m

Local appearance photo

Local appearance photo.  ◆ ◇ it is incomplete, but you can see the building of the same specification ◇ ◆
◆ ◇ it is incomplete, but you can see the building of the same specification ◇ ◆

Local appearance photo.  ◆ ◇ local, Model house will guide ◇ ◆
◆ ◇ local, Model house will guide ◇ ◆

Shopping centre

Shopping centre. Paseo Noma Oike up to 400m
Paseo Noma Oike up to 400m

Primary school

Primary school. 1376m to Fukuoka Municipal Wakahisa Elementary School
1376m to Fukuoka Municipal Wakahisa Elementary School

Park

park. 628m to Noma Oike park
628m to Noma Oike park

Home center

Home center. MrMax until Nagazumi shop 1667m
MrMax until Nagazumi shop 1667m

Hospital

Hospital. Medical Corporation 慈光 Board Wakahisa to hospital 842m
Medical Corporation 慈光 Board Wakahisa to hospital 842m

Local appearance photo
Local appearance photo

Local photos, including front road
Local photos, including front road

Floor plan

Floor plan. (No. 2 locations), Price 30,800,000 yen, 4LDK, Land area 178.67 sq m , Building area 98.01 sq m
(No. 2 locations), Price 30,800,000 yen, 4LDK, Land area 178.67 sq m , Building area 98.01 sq m

Floor plan. (No. 3 locations), Price 31,800,000 yen, 4LDK, Land area 180.36 sq m , Building area 98.01 sq m
(No. 3 locations), Price 31,800,000 yen, 4LDK, Land area 180.36 sq m , Building area 98.01 sq m

Same specifications photos (Other introspection)

Same specifications photos (Other introspection).  ◆ ◇ photograph is the one of the construction company the same specification. Please contact us for specification details ◇ ◆
◆ ◇ photograph is the one of the construction company the same specification. Please contact us for specification details ◇ ◆

Same specifications photo (bathroom)

Same specifications photo (bathroom).  ◆ ◇ photograph is the one of the construction company the same specification. Please contact us for specification details ◇ ◆
◆ ◇ photograph is the one of the construction company the same specification. Please contact us for specification details ◇ ◆

Same specifications photos (Other introspection)

Same specifications photos (Other introspection).  ◆ ◇ photograph is the one of the construction company the same specification. Please contact us for specification details ◇ ◆
◆ ◇ photograph is the one of the construction company the same specification. Please contact us for specification details ◇ ◆

Same specifications photos (living)

Same specifications photos (living).  ◆ ◇ photograph is the one of the construction company the same specification. Please contact us for specification details ◇ ◆
◆ ◇ photograph is the one of the construction company the same specification. Please contact us for specification details ◇ ◆

Same specifications photo (kitchen)

Same specifications photo (kitchen).  ◆ ◇ photograph is the one of the construction company the same specification. Please contact us for specification details ◇ ◆
◆ ◇ photograph is the one of the construction company the same specification. Please contact us for specification details ◇ ◆



Location