New Homes » Kyushu » Fukuoka Prefecture » Minami-ku
 
| | Fukuoka Prefecture, Minami-ku, Fukuoka City 福岡県福岡市南区 |
| Nishitetsu Tenjin Omuta Line "Takamiya" walk 31 minutes 西鉄天神大牟田線「高宮」歩31分 |
Features pickup 特徴ピックアップ | | Corresponding to the flat-35S / Year Available / Parking two Allowed / Energy-saving water heaters / Facing south / System kitchen / Yang per good / All room storage / LDK15 tatami mats or more / Japanese-style room / Washbasin with shower / Face-to-face kitchen / Toilet 2 places / 2-story / South balcony / Double-glazing / Warm water washing toilet seat / Underfloor Storage / TV monitor interphone / City gas フラット35Sに対応 /年内入居可 /駐車2台可 /省エネ給湯器 /南向き /システムキッチン /陽当り良好 /全居室収納 /LDK15畳以上 /和室 /シャワー付洗面台 /対面式キッチン /トイレ2ヶ所 /2階建 /南面バルコニー /複層ガラス /温水洗浄便座 /床下収納 /TVモニタ付インターホン /都市ガス | Price 価格 | | 29,800,000 yen 2980万円 | Floor plan 間取り | | 4LDK 4LDK | Units sold 販売戸数 | | 1 units 1戸 | Land area 土地面積 | | 160 sq m (48.39 tsubo) (measured) 160m2(48.39坪)(実測) | Building area 建物面積 | | 97.6 sq m (29.52 tsubo) (measured) 97.6m2(29.52坪)(実測) | Driveway burden-road 私道負担・道路 | | Nothing, West 4.2m width, South 3.2m width 無、西4.2m幅、南3.2m幅 | Completion date 完成時期(築年月) | | December 2013 2013年12月 | Address 住所 | | Fukuoka Prefecture, Minami-ku, Fukuoka City Yanagochi 1 福岡県福岡市南区柳河内1 | Traffic 交通 | | Nishitetsu Tenjin Omuta Line "Takamiya" walk 31 minutes 西鉄天神大牟田線「高宮」歩31分
| Person in charge 担当者より | | Roasted seat and the person in charge 担当者いりざと | Contact お問い合せ先 | | Phoenix ・ Earl ・ E (stock) TEL: 092-534-7787 Please inquire as "saw SUUMO (Sumo)" フェニックス・アール・イー(株)TEL:092-534-7787「SUUMO(スーモ)を見た」と問い合わせください | Building coverage, floor area ratio 建ぺい率・容積率 | | Fifty percent ・ 80% 50%・80% | Time residents 入居時期 | | Consultation 相談 | Land of the right form 土地の権利形態 | | Ownership 所有権 | Structure and method of construction 構造・工法 | | Wooden 2-story (framing method) 木造2階建(軸組工法) | Use district 用途地域 | | One low-rise 1種低層 | Other limitations その他制限事項 | | Setback: upon 2.77 sq m , Regulations have by the Aviation Law, Shade limit Yes セットバック:要2.77m2、航空法による規制有、日影制限有 | Overview and notices その他概要・特記事項 | | Contact: Iriza and, Facilities: Public Water Supply, This sewage, City gas, Building confirmation number: No. H25 Fukuzumi cell this issue 00878, Parking: car space 担当者:いりざと、設備:公営水道、本下水、都市ガス、建築確認番号:第H25福住セ本00878号、駐車場:カースペース | Company profile 会社概要 | | <Mediation> Governor of Fukuoka Prefecture (1) No. 016517 Phoenix ・ Earl ・ E Co., Ltd. Yubinbango810-0022 Fukuoka Chuo-ku, Fukuoka City Yakuin 3-12-15 <仲介>福岡県知事(1)第016517号フェニックス・アール・イー(株)〒810-0022 福岡県福岡市中央区薬院3-12-15 |
Local appearance photo現地外観写真  Local (10 May 2013) Shooting
現地(2013年10月)撮影
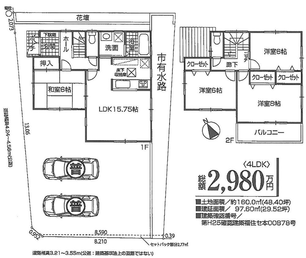
Compartment figure区画図  29,800,000 yen, 4LDK, Land area 160 sq m , Building area 97.6 sq m new construction 4LDK car two Allowed
2980万円、4LDK、土地面積160m2、建物面積97.6m2 新築4LDK車2台可
 Same specifications photo (kitchen)
同仕様写真(キッチン)
Same specifications photos (Other introspection)同仕様写真(その他内観)  Cupboard
下駄箱
Otherその他  Wakahisa elementary school
若久小学校
 Noma junior high school
野間中学校
Location
|