New Homes » Kyushu » Fukuoka Prefecture » Minami-ku
 
| | Fukuoka Prefecture, Minami-ku, Fukuoka City 福岡県福岡市南区 |
| Nishitetsu "Tsuruta housing complex" walk 5 minutes 西鉄バス「鶴田団地」歩5分 |
| Land 50 square meters or more, Yang per good, Around traffic fewer, Super close, Vacant lot passes, Building plan example there, See the mountain, A quiet residential area, Corner lot, Leafy residential area, Urban neighborhood, Good view 土地50坪以上、陽当り良好、周辺交通量少なめ、スーパーが近い、更地渡し、建物プラン例有り、山が見える、閑静な住宅地、角地、緑豊かな住宅地、都市近郊、眺望良好 |
| Land 50 square meters or more, Yang per good, Around traffic fewer, Super close, Vacant lot passes, Building plan example there, See the mountain, A quiet residential area, Corner lot, Leafy residential area, Urban neighborhood, Good view 土地50坪以上、陽当り良好、周辺交通量少なめ、スーパーが近い、更地渡し、建物プラン例有り、山が見える、閑静な住宅地、角地、緑豊かな住宅地、都市近郊、眺望良好 |
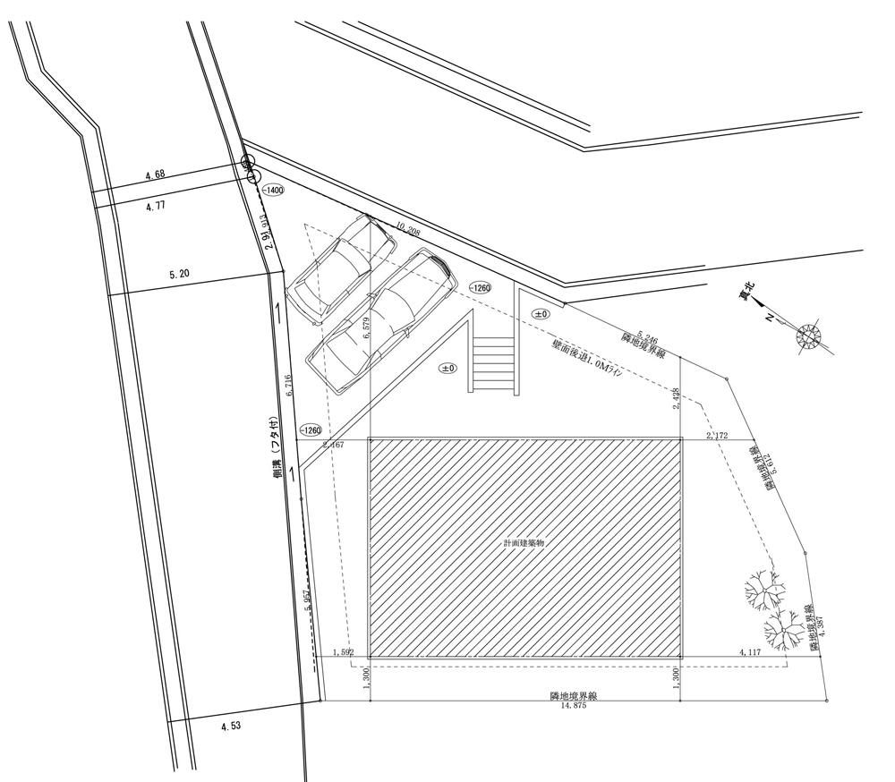
Features pickup 特徴ピックアップ | | Land 50 square meters or more / Vacant lot passes / See the mountain / Super close / Yang per good / A quiet residential area / Around traffic fewer / Corner lot / Leafy residential area / Urban neighborhood / Good view / Building plan example there 土地50坪以上 /更地渡し /山が見える /スーパーが近い /陽当り良好 /閑静な住宅地 /周辺交通量少なめ /角地 /緑豊かな住宅地 /都市近郊 /眺望良好 /建物プラン例有り | Price 価格 | | 7.9 million yen 790万円 | Building coverage, floor area ratio 建ぺい率・容積率 | | 40% ・ 60% 40%・60% | Sales compartment 販売区画数 | | 1 compartment 1区画 | Land area 土地面積 | | 181.22 sq m (54.81 tsubo) (Registration) 181.22m2(54.81坪)(登記) | Driveway burden-road 私道負担・道路 | | Nothing, Northwest 4.9m width, Northeast 4.5m width 無、北西4.9m幅、北東4.5m幅 | Land situation 土地状況 | | Vacant lot 更地 | Address 住所 | | Fukuoka Prefecture, Minami-ku, Fukuoka City Tsuruta 4 福岡県福岡市南区鶴田4 | Traffic 交通 | | Nishitetsu "Tsuruta housing complex" walk 5 minutes JR Hakata-Minami Line "Hakataminami" walk 51 minutes Nishitetsu Tenjin Omuta Line "Bridge" walk 54 minutes 西鉄バス「鶴田団地」歩5分JR博多南線「博多南」歩51分 西鉄天神大牟田線「大橋」歩54分
| Contact お問い合せ先 | | (Ltd.) Property Fukuoka TEL: 092-574-4124 Please inquire as "saw SUUMO (Sumo)" (株)不動産福岡TEL:092-574-4124「SUUMO(スーモ)を見た」と問い合わせください | Land of the right form 土地の権利形態 | | Ownership 所有権 | Building condition 建築条件 | | With 付 | Time delivery 引き渡し時期 | | Consultation 相談 | Land category 地目 | | Residential land 宅地 | Use district 用途地域 | | One low-rise 1種低層 | Other limitations その他制限事項 | | Regulations have by the Landscape Act, Regulations have by the Aviation Law 景観法による規制有、航空法による規制有 | Overview and notices その他概要・特記事項 | | Facilities: Public Water Supply, This sewage, Individual LPG 設備:公営水道、本下水、個別LPG | Company profile 会社概要 | | <Mediation> Governor of Fukuoka Prefecture (2) No. 016024 (Corporation) All Japan Real Estate Association (One company) Kyushu Real Estate Fair Trade Council member (Ltd.) Property Fukuoka Yubinbango811-1314 Fukuoka Prefecture, Minami-ku, Fukuoka City Matoba 2-36-1 <仲介>福岡県知事(2)第016024号(公社)全日本不動産協会会員 (一社)九州不動産公正取引協議会加盟(株)不動産福岡〒811-1314 福岡県福岡市南区的場2-36-1 |
Other localその他現地  Local (11 May 2013) Shooting
現地(2013年11月)撮影
Otherその他  Take the National Route 49 Route Yayoi slope intersection to Notame direction (49 Line), Turn right at the Tsuruta park entrance signal, If you go straight you will arrive at the local.
国道49号線やよい坂交差点を野多目方面(49号線)へ進み、鶴田団地入口信号を右折、直進すると現地に到着します。
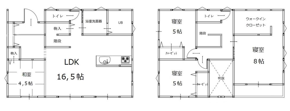
Building plan example (floor plan)建物プラン例(間取り図)  Car 2 car can be secured
車2台分確保可能
 Draw a plan to ask the architect is talk in a free design Free.
自由設計無料で設計士がお話を聞いてプランを描きます。
Other localその他現地  Local (11 May 2013) Shooting
現地(2013年11月)撮影
 Local (11 May 2013) Shooting
現地(2013年11月)撮影
 Local (11 May 2013) Shooting
現地(2013年11月)撮影
 Local (11 May 2013) Shooting,
現地(2013年11月)撮影、
Location
|