New Homes » Kyushu » Fukuoka Prefecture » Minami-ku
 
| | Fukuoka Prefecture, Minami-ku, Fukuoka City 福岡県福岡市南区 |
| Nishitetsu Tenjin Omuta Line "messing" walk 18 minutes 西鉄天神大牟田線「井尻」歩18分 |
| ◆ 2 wayside Available! ! ◆ Marukyo Corporation Osa store 7-minute walk (500m) ◆ Osa is also safe school and a 6-minute walk (450m) to elementary school. ◆2沿線ご利用可能!!◆マルキョウ曰佐店徒歩7分(500m)◆曰佐小学校まで徒歩6分(450m)と通学も安心です。 |
| ◇ who wants to Relocation but from what just started looking for real estate is left ◇◇ mortgage those who do not know say with a hand [Our buyback program there] ◇◇ construction company has decided, but, Although the ◇◇ request of sale who are thought scary quite likely to be hard sell to go to ◇◇ real estate agent who land is thought to anxiety or not those ◇◇ mortgage borrowing can be to find, Quite anyone who does not sell in the amount of hope ◇ ~ Please consult any worries Plenty of real estate. Peace of mind ・ It boasts a secure transactions. ~ ◇不動産を探し始めたばかりで何から手を付けていいのか分からない方◇◇住宅ローンが残っているけれど住み替えを希望している方【弊社買取制度有り】◇◇建築会社は決まっているが、なかなか土地が見つからない方◇◇住宅ローンの借り入れが出来るか不安に思っている方◇◇不動産屋に行くと押し売りされそうで怖いと思っている方◇◇売却の依頼をしているが、なかなか希望の金額で売れないという方◇ ~ 不動産のことならどんなお悩みでもご相談ください。安心・安全な取引が自慢です。 ~ |
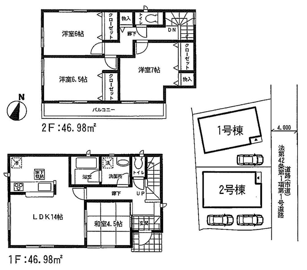
Features pickup 特徴ピックアップ | | 2 along the line more accessible / Super close / System kitchen / Bathroom Dryer / Japanese-style room / Washbasin with shower / Face-to-face kitchen / Toilet 2 places / 2-story / South balcony / Warm water washing toilet seat / Underfloor Storage / TV monitor interphone / City gas 2沿線以上利用可 /スーパーが近い /システムキッチン /浴室乾燥機 /和室 /シャワー付洗面台 /対面式キッチン /トイレ2ヶ所 /2階建 /南面バルコニー /温水洗浄便座 /床下収納 /TVモニタ付インターホン /都市ガス | Event information イベント情報 | | (Please be sure to ask in advance) (事前に必ずお問い合わせください) | Price 価格 | | 20.8 million yen 2080万円 | Floor plan 間取り | | 4LDK 4LDK | Units sold 販売戸数 | | 1 units 1戸 | Total units 総戸数 | | 2 units 2戸 | Land area 土地面積 | | 110.36 sq m 110.36m2 | Building area 建物面積 | | 93.96 sq m 93.96m2 | Driveway burden-road 私道負担・道路 | | Nothing, East 4m width 無、東4m幅 | Completion date 完成時期(築年月) | | February 2014 2014年2月 | Address 住所 | | Fukuoka Prefecture, Minami-ku, Fukuoka City pressed 2 福岡県福岡市南区曰佐2 | Traffic 交通 | | Nishitetsu Tenjin Omuta Line "messing" walk 18 minutes Nishitetsu "Osa 2-chome" walk 5 minutes JR Kagoshima Main Line "Sasahara" walk 20 minutes 西鉄天神大牟田線「井尻」歩18分 西鉄バス「曰佐2丁目」歩5分JR鹿児島本線「笹原」歩20分
| Related links 関連リンク | | [Related Sites of this company] 【この会社の関連サイト】 | Person in charge 担当者より | | Person in charge of real-estate and building FP Kawabata TeruMasashi age: I built a house to buy the land in the 30's my own 25-year-old, It should have more way! There is full it Nante. I wanted to be in your good road destination guide. Anything please consult! 担当者宅建FP川畑 輝雅年齢:30代私自身25歳で土地を買って家を建てましたが、もっとこうすれば良かった!なんて事が一杯あります。 お客様の良き道先案内人でありたいと思っています。何でもご相談ください! | Contact お問い合せ先 | | TEL: 0800-603-2316 [Toll free] mobile phone ・ Also available from PHS Caller ID is not notified Please contact the "saw SUUMO (Sumo)" If it does not lead, If the real estate company TEL:0800-603-2316【通話料無料】携帯電話・PHSからもご利用いただけます 発信者番号は通知されません 「SUUMO(スーモ)を見た」と問い合わせください つながらない方、不動産会社の方は
| Building coverage, floor area ratio 建ぺい率・容積率 | | 60% ・ 160% 60%・160% | Time residents 入居時期 | | February 2014 schedule 2014年2月予定 | Land of the right form 土地の権利形態 | | Ownership 所有権 | Structure and method of construction 構造・工法 | | Wooden 2-story 木造2階建 | Use district 用途地域 | | One dwelling 1種住居 | Overview and notices その他概要・特記事項 | | Contact: Kawabata TeruMasashi, Facilities: Public Water Supply, This sewage, City gas, Building confirmation number: No. H25SHC119732, Parking: car space 担当者:川畑 輝雅、設備:公営水道、本下水、都市ガス、建築確認番号:第H25SHC119732号、駐車場:カースペース | Company profile 会社概要 | | <Mediation> Minister of Land, Infrastructure and Transport (2) No. 007017 (Corporation) All Japan Real Estate Association (One company) Kyushu Real Estate Fair Trade Council member (Ltd.) House Freedom Seongnam shop Yubinbango814-0133 Fukuoka Jonan-ku Nanakuma 4-11-13 <仲介>国土交通大臣(2)第007017号(公社)全日本不動産協会会員 (一社)九州不動産公正取引協議会加盟(株)ハウスフリーダム城南店〒814-0133 福岡県福岡市城南区七隈4-11-13 |
Floor plan間取り図  20.8 million yen, 4LDK, Land area 110.36 sq m , Building area 93.96 sq m ◆ Floor plan ◆
2080万円、4LDK、土地面積110.36m2、建物面積93.96m2 ◆間取り図◆
Local photos, including front road前面道路含む現地写真  ◆ Local photos, including front road ◆
◆前面道路含む現地写真◆
Same specifications photos (living)同仕様写真(リビング)  ◆ Same specifications living ◆
◆同仕様リビング◆
Same specifications photo (kitchen)同仕様写真(キッチン)  ◆ Same specification kitchen ◆
◆同仕様キッチン◆
Same specifications photo (bathroom)同仕様写真(浴室)  ◆ Same specification bathroom ◆
◆同仕様浴室◆
Same specifications photos (Other introspection)同仕様写真(その他内観)  ◆ Same specifications Japanese-style room ◆
◆同仕様和室◆
 ◆ ◇ photograph is the one of the construction company the same specification. Please contact us for specification details ◇ ◆
◆◇写真は施工会社同仕様のものです。詳細の仕様についてはお問合わせください◇◆
Same specifications photos (appearance)同仕様写真(外観)  ◆ ◇ photograph is the one of the construction company the same specification. Please contact us for specification details ◇ ◆
◆◇写真は施工会社同仕様のものです。詳細の仕様についてはお問合わせください◇◆
Primary school小学校  677m to Fukuoka Municipal pressed elementary school
福岡市立曰佐小学校まで677m
Junior high school中学校  1014m to Fukuoka Municipal Yokote Junior High School
福岡市立横手中学校まで1014m
Location
|