New Homes » Kyushu » Fukuoka Prefecture » Minami-ku


Fukuoka Prefecture, Minami-ku, Fukuoka City
Nishitetsu "Furuno" walk 7 minutes
◆ All room is a 6-quires more leeway certain floor plan. ◆ You can park two parallel ◆ School Kashiwabara Elementary School 6-minute walk to the (430m) is also safe.
◇ who wants to Relocation but from what just started looking for real estate is left ◇◇ mortgage those who do not know say with a hand [Our buyback program there] ◇◇ construction company has decided, but, Although the ◇◇ request of sale who are thought scary quite likely to be hard sell to go to ◇◇ real estate agent who land is thought to anxiety or not those ◇◇ mortgage borrowing can be to find, Quite anyone who does not sell in the amount of hope ◇ ~ Please consult any worries Plenty of real estate. Peace of mind ・ It boasts a secure transactions. ~
Features pickup
Parking two Allowed / Land 50 square meters or more / Super close / System kitchen / A quiet residential area / LDK15 tatami mats or more / Japanese-style room / Washbasin with shower / Face-to-face kitchen / Toilet 2 places / 2-story / Warm water washing toilet seat / Underfloor Storage / TV monitor interphone / All room 6 tatami mats or more / City gas
Event information
(Please be sure to ask in advance)
Price
25,980,000 yen
Floor plan
4LDK
Units sold
1 units
Total units
1 units
Land area
169.38 sq m
Building area
104.33 sq m
Driveway burden-road
Nothing, Southeast 4.8m width
Completion date
December 2013
Address
Fukuoka Prefecture, Minami-ku, Fukuoka City Taiheiji 2
Traffic
Nishitetsu "Furuno" walk 7 minutes
Related links
[Related Sites of this company]
Person in charge
Person in charge of real-estate and building FP Kawabata TeruMasashi age: I built a house to buy the land in the 30's my own 25-year-old, It should have more way! There is full it Nante. I wanted to be in your good road destination guide. Anything please consult!
Contact
TEL: 0800-603-2316 [Toll free] mobile phone ・ Also available from PHS
Caller ID is not notified
Please contact the "saw SUUMO (Sumo)"
If it does not lead, If the real estate company
Building coverage, floor area ratio
40% ・ 80%
Time residents
Consultation
Land of the right form
Ownership
Structure and method of construction
Wooden 2-story
Use district
One low-rise
Overview and notices
Contact: Kawabata TeruMasashi, Facilities: Public Water Supply, This sewage, City gas, Building confirmation number: No. KJH13-01586-1, Parking: car space
Company profile
<Marketing alliance (agency)> Minister of Land, Infrastructure and Transport (2) No. 007017 (Corporation) All Japan Real Estate Association (One company) Kyushu Real Estate Fair Trade Council member (Ltd.) House Freedom Seongnam shop Yubinbango814-0133 Fukuoka Jonan-ku Nanakuma 4-11-13


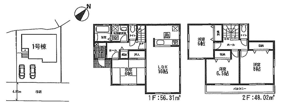
Floor plan

Floor plan. 25,980,000 yen, 4LDK, Land area 169.38 sq m , Building area 104.33 sq m
25,980,000 yen, 4LDK, Land area 169.38 sq m , Building area 104.33 sq m

Same specifications photos (appearance)

Same specifications photos (appearance).  ◆ ◇ photograph is the one of the construction company the same specification. Please contact us for specification details ◇ ◆
◆ ◇ photograph is the one of the construction company the same specification. Please contact us for specification details ◇ ◆

Same specifications photo (kitchen)

Same specifications photo (kitchen).  ◆ ◇ photograph is the one of the construction company the same specification. Please contact us for specification details ◇ ◆
◆ ◇ photograph is the one of the construction company the same specification. Please contact us for specification details ◇ ◆

Same specifications photos (living)

Same specifications photos (living).  ◆ ◇ photograph is the one of the construction company the same specification. Please contact us for specification details ◇ ◆
◆ ◇ photograph is the one of the construction company the same specification. Please contact us for specification details ◇ ◆

Same specifications photo (bathroom)

Same specifications photo (bathroom).  ◆ ◇ photograph is the one of the construction company the same specification. Please contact us for specification details ◇ ◆
◆ ◇ photograph is the one of the construction company the same specification. Please contact us for specification details ◇ ◆

Same specifications photos (Other introspection)

Same specifications photos (Other introspection).  ◆ ◇ photograph is the one of the construction company the same specification. Please contact us for specification details ◇ ◆
◆ ◇ photograph is the one of the construction company the same specification. Please contact us for specification details ◇ ◆

Same specifications photos (Other introspection).  ◆ ◇ photograph is the one of the construction company the same specification. Please contact us for specification details ◇ ◆
◆ ◇ photograph is the one of the construction company the same specification. Please contact us for specification details ◇ ◆

Same specifications photos (Other introspection).  ◆ ◇ photograph is the one of the construction company the same specification. Please contact us for specification details ◇ ◆
◆ ◇ photograph is the one of the construction company the same specification. Please contact us for specification details ◇ ◆

Supermarket

Supermarket. Until Bonrapasu flower garden shop 1345m
Until Bonrapasu flower garden shop 1345m

Drug store

Drug store. 1405m to medicine Matsumotokiyoshi flower garden shop
1405m to medicine Matsumotokiyoshi flower garden shop

Primary school

Primary school. 430m to Fukuoka Municipal Kashiwabara Elementary School
430m to Fukuoka Municipal Kashiwabara Elementary School

Junior high school

Junior high school. 910m to Fukuoka Municipal Kashiwabara junior high school
910m to Fukuoka Municipal Kashiwabara junior high school



Location