New Homes » Kyushu » Fukuoka Prefecture » Nishi-ku


Fukuoka Prefecture, Nishi-ku, Fukuoka
Subway Nanakuma line "Hashimoto" 15 minutes Ikimatsudai 3-chome, walk 2 minutes by bus
Sunny, Spacious living tatami about 28 pledges worth of wide garden! !
Corresponding to the flat-35S, Solar power system, Parking two Allowed, Land 50 square meters or more, System kitchen, Bathroom Dryer, Yang per good, Siemens south road, LDK15 tatami mats or more, Or more before road 6m, Corner lotese-style room, Washbasin with shower, Toilet 2 places, 2-story, 2 or more sides balcony, South balcony, Warm water washing toilet seat, The window in the bathroom, Walk-in closet, City gas
Features pickup
Corresponding to the flat-35S / Solar power system / Parking two Allowed / Land 50 square meters or more / System kitchen / Bathroom Dryer / Yang per good / Siemens south road / LDK15 tatami mats or more / Or more before road 6m / Corner lot / Japanese-style room / Washbasin with shower / Toilet 2 places / 2-story / 2 or more sides balcony / South balcony / Warm water washing toilet seat / The window in the bathroom / Walk-in closet / City gas
Price
23.8 million yen
Floor plan
4LDK
Units sold
1 units
Total units
1 units
Land area
200.45 sq m
Building area
98.82 sq m
Driveway burden-road
Road width: 6m ・ 9m, Asphaltic pavement, Law 42 Paragraph 1 No. 1 road
Completion date
Early September 2013
Address
Fukuoka Prefecture, Nishi-ku, Fukuoka Ikimatsudai 2
Traffic
Subway Nanakuma line "Hashimoto" 15 minutes Ikimatsudai 3-chome, walk 2 minutes by bus
Related links
[Related Sites of this company]
Person in charge
The person in charge Yamada
Contact
(Ltd.) Royal estate TEL: 0800-602-6669 [Toll free] mobile phone ・ Also available from PHS
Caller ID is not notified
Please contact the "saw SUUMO (Sumo)"
If it does not lead, If the real estate company
Building coverage, floor area ratio
Kenpei rate: 50%, Volume ratio: 80%
Time residents
Consultation
Land of the right form
Ownership
Structure and method of construction
Wooden
Use district
One low-rise
Land category
Residential land
Overview and notices
Contact: Yamada, Building confirmation number: 2 Building No. H25 confirmation architecture Fukuzumi cell this issue 00161
Company profile
<Mediation> Governor of Fukuoka Prefecture (1) No. 017038 (Ltd.) Royal estate Yubinbango819-0167 Fukuoka Prefecture, Nishi-ku, Fukuoka Imajuku 2-5-4 second floor


Local appearance photo
Local appearance photo

Living
Living

Kitchen
Kitchen

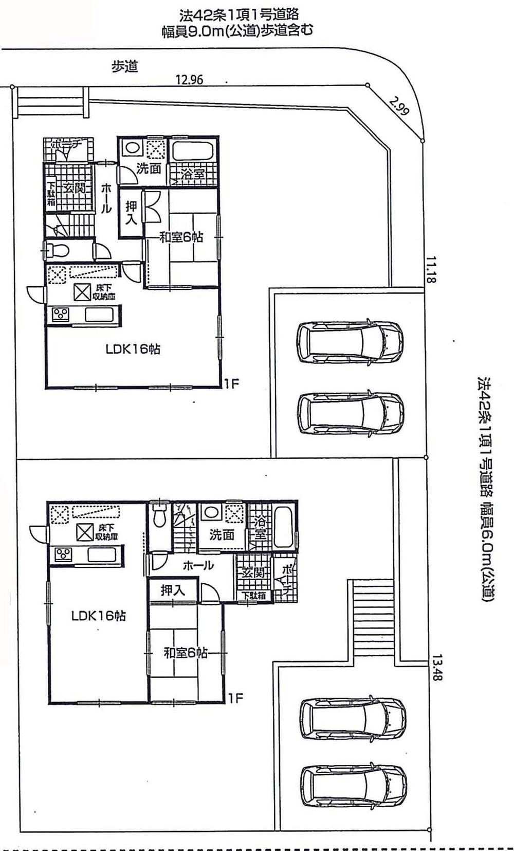
Floor plan

Floor plan. Price 23.8 million yen, 4LDK, Land area 200.45 sq m , Building area 98.82 sq m
Price 23.8 million yen, 4LDK, Land area 200.45 sq m , Building area 98.82 sq m

Local appearance photo

Local appearance photo. Electrical locked entrance door
Electrical locked entrance door

Bathroom

Bathroom. With bathroom heating dryer
With bathroom heating dryer

Garden

Garden. Tatami about 8.5 Pledge worth of large garden
Tatami about 8.5 Pledge worth of large garden

The entire compartment Figure
The entire compartment Figure

Other

Other. LOW_e pair glass
LOW_e pair glass



Location