New Homes » Kyushu » Fukuoka Prefecture » Nishi-ku
 
| | Fukuoka Prefecture, Nishi-ku, Fukuoka 福岡県福岡市西区 |
| JR Chikuhi line "Shimoyamato" walk 6 minutes JR筑肥線「下山門」歩6分 |
| Corresponding to the flat-35S, Year Available, Parking two Allowed, Energy-saving water heaters, Within 2km to the sea, System kitchen, All room storage, Flat to the station, LDK15 tatami mats or moreese-style room, Washbasin with shower, Face-to-face kit フラット35Sに対応、年内入居可、駐車2台可、省エネ給湯器、海まで2km以内、システムキッチン、全居室収納、駅まで平坦、LDK15畳以上、和室、シャワー付洗面台、対面式キッ |
| Corresponding to the flat-35S, Year Available, Parking two Allowed, Energy-saving water heaters, Within 2km to the sea, System kitchen, All room storage, Flat to the station, LDK15 tatami mats or moreese-style room, Washbasin with shower, Face-to-face kitchen, Toilet 2 places, Bathroom 1 tsubo or more, 2-story, 2 or more sides balcony, Double-glazing, Warm water washing toilet seat, Underfloor Storage, The window in the bathroom, TV monitor interphone, City gas, Flat terrain フラット35Sに対応、年内入居可、駐車2台可、省エネ給湯器、海まで2km以内、システムキッチン、全居室収納、駅まで平坦、LDK15畳以上、和室、シャワー付洗面台、対面式キッチン、トイレ2ヶ所、浴室1坪以上、2階建、2面以上バルコニー、複層ガラス、温水洗浄便座、床下収納、浴室に窓、TVモニタ付インターホン、都市ガス、平坦地 |
Features pickup 特徴ピックアップ | | Corresponding to the flat-35S / Year Available / Parking two Allowed / Energy-saving water heaters / Within 2km to the sea / System kitchen / All room storage / Flat to the station / LDK15 tatami mats or more / Japanese-style room / Washbasin with shower / Face-to-face kitchen / Toilet 2 places / Bathroom 1 tsubo or more / 2-story / 2 or more sides balcony / Double-glazing / Warm water washing toilet seat / Underfloor Storage / The window in the bathroom / TV monitor interphone / City gas / Flat terrain フラット35Sに対応 /年内入居可 /駐車2台可 /省エネ給湯器 /海まで2km以内 /システムキッチン /全居室収納 /駅まで平坦 /LDK15畳以上 /和室 /シャワー付洗面台 /対面式キッチン /トイレ2ヶ所 /浴室1坪以上 /2階建 /2面以上バルコニー /複層ガラス /温水洗浄便座 /床下収納 /浴室に窓 /TVモニタ付インターホン /都市ガス /平坦地 | Price 価格 | | 30,800,000 yen 3080万円 | Floor plan 間取り | | 4LDK 4LDK | Units sold 販売戸数 | | 1 units 1戸 | Land area 土地面積 | | 127.2 sq m (38.47 tsubo) (measured) 127.2m2(38.47坪)(実測) | Building area 建物面積 | | 97.91 sq m (29.61 square meters) 97.91m2(29.61坪) | Driveway burden-road 私道負担・道路 | | Nothing, East 10.5m width 無、東10.5m幅 | Completion date 完成時期(築年月) | | October 2013 2013年10月 | Address 住所 | | Fukuoka Prefecture, Nishi-ku, Fukuoka Shimoyamato 4 福岡県福岡市西区下山門4 | Traffic 交通 | | JR Chikuhi line "Shimoyamato" walk 6 minutes JR筑肥線「下山門」歩6分
| Person in charge 担当者より | | Roasted seat and the person in charge 担当者いりざと | Contact お問い合せ先 | | Phoenix ・ Earl ・ E (stock) TEL: 092-534-7787 Please inquire as "saw SUUMO (Sumo)" フェニックス・アール・イー(株)TEL:092-534-7787「SUUMO(スーモ)を見た」と問い合わせください | Building coverage, floor area ratio 建ぺい率・容積率 | | 60% ・ 200% 60%・200% | Time residents 入居時期 | | Consultation 相談 | Land of the right form 土地の権利形態 | | Ownership 所有権 | Structure and method of construction 構造・工法 | | Wooden 2-story (framing method) 木造2階建(軸組工法) | Use district 用途地域 | | One dwelling 1種住居 | Other limitations その他制限事項 | | Regulations have by the Aviation Law, Shade limit Yes 航空法による規制有、日影制限有 | Overview and notices その他概要・特記事項 | | Contact: Iriza and, Facilities: Public Water Supply, This sewage, City gas, Parking: car space 担当者:いりざと、設備:公営水道、本下水、都市ガス、駐車場:カースペース | Company profile 会社概要 | | <Mediation> Governor of Fukuoka Prefecture (1) No. 016517 Phoenix ・ Earl ・ E Co., Ltd. Yubinbango810-0022 Fukuoka Chuo-ku, Fukuoka City Yakuin 3-12-15 <仲介>福岡県知事(1)第016517号フェニックス・アール・イー(株)〒810-0022 福岡県福岡市中央区薬院3-12-15 |
Local appearance photo現地外観写真  Local (10 May 2013) Shooting
現地(2013年10月)撮影
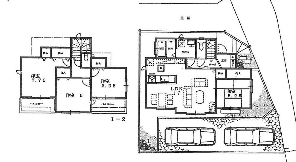
Floor plan間取り図  30,800,000 yen, 4LDK, Land area 127.2 sq m , Building area 97.91 sq m newly built 2-story 4LD car two Allowed
3080万円、4LDK、土地面積127.2m2、建物面積97.91m2 新築2階建4LD車2台可
 Kitchen
キッチン
 Bathroom
浴室
Otherその他  Shimoyamato elementary school
下山門小学校
 Shimoyamato junior high school
下山門中学校
Location
|