New Homes » Kyushu » Fukuoka Prefecture » Nishi-ku
 
| | Fukuoka Prefecture, Nishi-ku, Fukuoka 福岡県福岡市西区 |
| JR Chikuhi line "Kyushu Science City" walk 12 minutes JR筑肥線「九大学研都市」歩12分 |
| ☆ JR Chikuhi line "Kyushu Science City" station 12 minutes' walk ☆ It is incomplete, but you can see the building of the same specification! ◆ Please feel free to contact us to free dial 0800-603-2314 (= ^ ▽ ^ =) Bruno ☆JR筑肥線「九大学研都市」駅徒歩12分☆未完成ですが同仕様の建物をご覧いただけます!◆フリーダイアル0800-603-2314までお気軽にお問合せください(=^▽^=)ノ |
| ☆ Many Sumo non-listed property is also being published at our HP, Come please visit! ◇ customers who thought that scary likely to be hard sell to go to the customer ◇ real estate agent that borrowing of the mortgage are wondering whether anxiety can, Region if our staff "good of the people" is the NO.1! ◇ While the request of sale, Quite the customer that does not sell in the amount of hope ~ Please consult any worries Plenty of real estate, Peace of mind ・ It boasts a secure transactions! ~ Please feel free to send free dial 0800-603-2314 ☆弊社HPにてスーモ非掲載物件も多数公開中、是非ご覧ください!◇住宅ローンの借り入れが出来るか不安に思っているお客様◇不動産屋に行くと押し売りされそうで怖いと思っているお客様、弊社スタッフ『人の良さ』なら地域NO.1です!◇売却の依頼をしているが、なかなか希望の金額で売れないというお客様 ~ 不動産のことならどんなお悩みでもご相談ください、安心・安全な取引が自慢です! ~ フリーダイアル0800-603-2314までお気軽にどうぞ |
Features pickup 特徴ピックアップ | | Parking two Allowed / System kitchen / Japanese-style room / Washbasin with shower / Toilet 2 places / Bathroom 1 tsubo or more / 2-story / Warm water washing toilet seat / Underfloor Storage / TV monitor interphone / Water filter 駐車2台可 /システムキッチン /和室 /シャワー付洗面台 /トイレ2ヶ所 /浴室1坪以上 /2階建 /温水洗浄便座 /床下収納 /TVモニタ付インターホン /浄水器 | Price 価格 | | 28,980,000 yen ~ 31,580,000 yen 2898万円 ~ 3158万円 | Floor plan 間取り | | 4LDK 4LDK | Units sold 販売戸数 | | 6 units 6戸 | Total units 総戸数 | | 6 units 6戸 | Land area 土地面積 | | 131.95 sq m ~ 153.95 sq m 131.95m2 ~ 153.95m2 | Building area 建物面積 | | 101.02 sq m ~ 105.16 sq m 101.02m2 ~ 105.16m2 | Completion date 完成時期(築年月) | | April 2014 schedule 2014年4月予定 | Address 住所 | | Fukuoka Prefecture, Nishi-ku, Fukuoka Imajuku cho Oaza Myobaru JiTsutsuminonai 32-9 福岡県福岡市西区今宿町大字女原字堤ノ内32-9 | Traffic 交通 | | JR Chikuhi line "Kyushu Science City" walk 12 minutes JR筑肥線「九大学研都市」歩12分
| Related links 関連リンク | | [Related Sites of this company] 【この会社の関連サイト】 | Person in charge 担当者より | | Rep FP Chiba Taro Age: 30 Daigyokai Experience: 6 years Nice to meet you. My name is Chiba Sawara shop. Customers As you said, "you were good in charge.", Since we support the My Home Purchase with full force, Anything please consult. 担当者FP千葉 太郎年齢:30代業界経験:6年はじめまして。早良店の千葉と申します。お客様に「あなたが担当で良かった」と言っていただけるよう、マイホーム購入を全力でサポートいたしますので、何でもご相談ください。 | Contact お問い合せ先 | | TEL: 0800-603-2314 [Toll free] mobile phone ・ Also available from PHS Caller ID is not notified Please contact the "saw SUUMO (Sumo)" If it does not lead, If the real estate company TEL:0800-603-2314【通話料無料】携帯電話・PHSからもご利用いただけます 発信者番号は通知されません 「SUUMO(スーモ)を見た」と問い合わせください つながらない方、不動産会社の方は
| Building coverage, floor area ratio 建ぺい率・容積率 | | Building coverage: 60%, Volume rate of 150% 建ぺい率:60%、容積率150% | Time residents 入居時期 | | Consultation 相談 | Land of the right form 土地の権利形態 | | Ownership 所有権 | Structure and method of construction 構造・工法 | | Wooden 2-story 木造2階建 | Use district 用途地域 | | One middle and high 1種中高 | Land category 地目 | | Residential land 宅地 | Overview and notices その他概要・特記事項 | | Contact: Chiba Taro, Building confirmation number: first KJH13-00346-1, 00347-1, 03348-1, 03349-1, 03350-1, 03351-1 担当者:千葉 太郎、建築確認番号:第KJH13-00346-1、00347-1、03348-1、03349-1、03350-1、03351-1 | Company profile 会社概要 | | <Mediation> Minister of Land, Infrastructure and Transport (2) No. 007017 (Corporation) All Japan Real Estate Association (One company) Kyushu Real Estate Fair Trade Council member (Ltd.) House Freedom Spanish mackerel shop Yubinbango814-0022 Fukuoka Sawara KuHara 1-39-19 <仲介>国土交通大臣(2)第007017号(公社)全日本不動産協会会員 (一社)九州不動産公正取引協議会加盟(株)ハウスフリーダム早良店〒814-0022 福岡県福岡市早良区原1-39-19 |
Local appearance photo現地外観写真  ☆ Local Photos ☆
☆現地写真☆
Local photos, including front road前面道路含む現地写真  ☆ Local photos, including the front road ☆
☆前面道路を含む現地写真☆
Same specifications photos (appearance)同仕様写真(外観)  ☆ Same specifications appearance ☆
☆同仕様外観☆
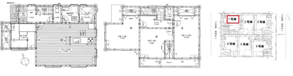
Floor plan間取り図  (1 Building), Price 30,480,000 yen, 4LDK, Land area 131.95 sq m , Building area 101.84 sq m
(1号棟)、価格3048万円、4LDK、土地面積131.95m2、建物面積101.84m2
Same specifications photos (living)同仕様写真(リビング)  ☆ Same specifications living ☆
☆同仕様リビング☆
Same specifications photo (bathroom)同仕様写真(浴室)  ☆ Same specification bathroom ☆
☆同仕様浴室☆
Same specifications photo (kitchen)同仕様写真(キッチン)  ☆ Same specification kitchen ☆
☆同仕様キッチン☆
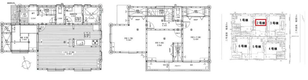
Floor plan間取り図  (Building 2), Price 28,980,000 yen, 4LDK, Land area 153.95 sq m , Building area 105.16 sq m
(2号棟)、価格2898万円、4LDK、土地面積153.95m2、建物面積105.16m2
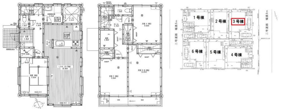
 (3 Building), Price 31,580,000 yen, 4LDK, Land area 144.86 sq m , Building area 101.02 sq m
(3号棟)、価格3158万円、4LDK、土地面積144.86m2、建物面積101.02m2
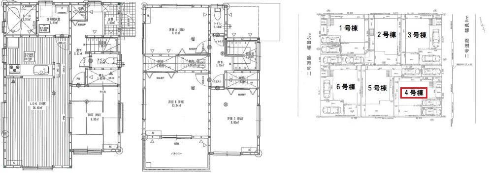
 (4 Building), Price 30,980,000 yen, 4LDK, Land area 132.13 sq m , Building area 101.84 sq m
(4号棟)、価格3098万円、4LDK、土地面積132.13m2、建物面積101.84m2
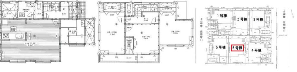
 (5 Building), Price 29,980,000 yen, 4LDK, Land area 153.73 sq m , Building area 101.02 sq m
(5号棟)、価格2998万円、4LDK、土地面積153.73m2、建物面積101.02m2
 (6 Building), Price 30,980,000 yen, 4LDK, Land area 144.87 sq m , Building area 101.02 sq m
(6号棟)、価格3098万円、4LDK、土地面積144.87m2、建物面積101.02m2
Location
|