New Homes » Kyushu » Fukuoka Prefecture » Sawara-ku
 
| | Fukuoka Prefecture, Sawara-ku, Fukuoka 福岡県福岡市早良区 |
| Subway Nanakuma line "Meilin" walk 10 minutes 地下鉄七隈線「梅林」歩10分 |
| [30th Anniversary] 30th anniversary appreciation campaign held in! Those who let me guidance in our, You will receive a gift certificate and memorabilia of 3,000 yen in monthly first 30 people. 【30th Anniversary】創立30周年感謝キャンペーン開催中! 弊社にて御案内させて頂いた方、毎月先着30名様に3千円分の商品券と記念グッズを差し上げます。 |
| ◆ ◆ "Housing mile Support Campaign" held in! For more details, below [Art Tech of living mile new construction net] Click immediately Available, Corner lot, LDK18 tatami mats or more, Walk-in closet, Parking two Allowed, City gas, Measures to conserve energy, Corresponding to the flat-35S, Pre-ground survey, Energy-saving water heaters, Facing south, System kitchen, Yang per good, All room storage, Flat to the station, A quiet residential area, Around traffic fewerese-style room, Washbasin with shower, Wide balcony, Barrier-free, Toilet 2 places, Bathroom 1 tsubo or more, 2-story, South balcony, Double-glazing, Otobasu, Warm water washing toilet seat, Nantei, Underfloor Storage, The window in the bathroom, TV monitor interphone, Ventilation good, Water filter, All rooms are two-sided lighting, Flat terrain ◆◆『住マイル応援キャンペーン』開催中! 詳しくは下記【アートテックの住マイル新築net】をクリック即入居可、角地、LDK18畳以上、ウォークインクロゼット、駐車2台可、都市ガス、省エネルギー対策、フラット35Sに対応、地盤調査済、省エネ給湯器、南向き、システムキッチン、陽当り良好、全居室収納、駅まで平坦、閑静な住宅地、周辺交通量少なめ、和室、シャワー付洗面台、ワイドバルコニー、バリアフリー、トイレ2ヶ所、浴室1坪以上、2階建、南面バルコニー、複層ガラス、オートバス、温水洗浄便座、南庭、床下収納、浴室に窓、TVモニタ付インターホン、通風良好、浄水器、全室2面採光、平坦地 |
Features pickup 特徴ピックアップ | | Measures to conserve energy / Corresponding to the flat-35S / Pre-ground survey / Parking two Allowed / Immediate Available / LDK18 tatami mats or more / Energy-saving water heaters / Facing south / System kitchen / Yang per good / All room storage / Flat to the station / A quiet residential area / Around traffic fewer / Corner lot / Japanese-style room / Washbasin with shower / Wide balcony / Barrier-free / Toilet 2 places / Bathroom 1 tsubo or more / 2-story / South balcony / Double-glazing / Otobasu / Warm water washing toilet seat / Nantei / Underfloor Storage / The window in the bathroom / TV monitor interphone / Ventilation good / Walk-in closet / Water filter / City gas / All rooms are two-sided lighting / Flat terrain 省エネルギー対策 /フラット35Sに対応 /地盤調査済 /駐車2台可 /即入居可 /LDK18畳以上 /省エネ給湯器 /南向き /システムキッチン /陽当り良好 /全居室収納 /駅まで平坦 /閑静な住宅地 /周辺交通量少なめ /角地 /和室 /シャワー付洗面台 /ワイドバルコニー /バリアフリー /トイレ2ヶ所 /浴室1坪以上 /2階建 /南面バルコニー /複層ガラス /オートバス /温水洗浄便座 /南庭 /床下収納 /浴室に窓 /TVモニタ付インターホン /通風良好 /ウォークインクロゼット /浄水器 /都市ガス /全室2面採光 /平坦地 | Event information イベント情報 | | Open House (Please make a reservation beforehand) schedule / Now open オープンハウス(事前に必ず予約してください)日程/公開中 | Price 価格 | | 24,980,000 yen 2498万円 | Floor plan 間取り | | 4LDK + S (storeroom) 4LDK+S(納戸) | Units sold 販売戸数 | | 1 units 1戸 | Total units 総戸数 | | 5 units 5戸 | Land area 土地面積 | | 161.1 sq m (48.73 tsubo) (Registration) 161.1m2(48.73坪)(登記) | Building area 建物面積 | | 105.98 sq m (32.05 tsubo) (Registration) 105.98m2(32.05坪)(登記) | Driveway burden-road 私道負担・道路 | | Nothing, North 3.5m width, West 4.1m width 無、北3.5m幅、西4.1m幅 | Completion date 完成時期(築年月) | | September 2013 2013年9月 | Address 住所 | | Fukuoka Prefecture, Sawara-ku, Fukuoka Meilin 6 (1 Building) 福岡県福岡市早良区梅林6(1号棟) | Traffic 交通 | | Subway Nanakuma line "Meilin" walk 10 minutes 地下鉄七隈線「梅林」歩10分
| Related links 関連リンク | | [Related Sites of this company] 【この会社の関連サイト】 | Person in charge 担当者より | | Person in charge of real-estate and building Shigetoshi Tanaka Age: 50 Daigyokai Experience: 20 years "better choice", "happy smile" ・ ・ ・ As you willing to many of our customers, even one person, Always settle for a customer's point of view bad also I would like to clearly, Try the easy-to-understand advice, Kindness ・ It is creed the careful work. 担当者宅建田中 重敏年齢:50代業界経験:20年「よりよい選択」 「うれしい笑顔」・・・一人でも多くのお客様に喜んで頂けるように、常にお客様の目線で良し悪しもはっきりと申し上げ、判りやすいアドバイスを心がけ、親切・丁寧な仕事を信条としています。 | Contact お問い合せ先 | | TEL: 0800-603-3197 [Toll free] mobile phone ・ Also available from PHS Caller ID is not notified Please contact the "saw SUUMO (Sumo)" If it does not lead, If the real estate company TEL:0800-603-3197【通話料無料】携帯電話・PHSからもご利用いただけます 発信者番号は通知されません 「SUUMO(スーモ)を見た」と問い合わせください つながらない方、不動産会社の方は
| Building coverage, floor area ratio 建ぺい率・容積率 | | 40% ・ 80% 40%・80% | Time residents 入居時期 | | Immediate available 即入居可 | Land of the right form 土地の権利形態 | | Ownership 所有権 | Structure and method of construction 構造・工法 | | Wooden 2-story (framing method) 木造2階建(軸組工法) | Use district 用途地域 | | One low-rise 1種低層 | Other limitations その他制限事項 | | Regulations have by the Aviation Law, Newly built single-family houses all 5 House within 1 Building 航空法による規制有、新築戸建住宅 全5邸内1号棟 | Overview and notices その他概要・特記事項 | | Contact: Shigetoshi Tanaka, Facilities: Public Water Supply, This sewage, City gas, Building confirmation number: No. H25SHC103367, Parking: car space 担当者:田中 重敏、設備:公営水道、本下水、都市ガス、建築確認番号:第H25SHC103367号、駐車場:カースペース | Company profile 会社概要 | | <Mediation> Governor of Fukuoka Prefecture (3) No. 014568 (Corporation), Fukuoka Prefecture Building Lots and Buildings Transaction Business Association (One company) Kyushu Real Estate Fair Trade Council member (Co.) Art Tech Yubinbango815-0082 Fukuoka Prefecture, Minami-ku, Fukuoka City Okusu 1-8-19 first floor <仲介>福岡県知事(3)第014568号(公社)福岡県宅地建物取引業協会会員 (一社)九州不動産公正取引協議会加盟(株)アートテック〒815-0082 福岡県福岡市南区大楠1-8-19 1階 |
Local appearance photo現地外観写真  Local (September 2013) Shooting
現地(2013年9月)撮影
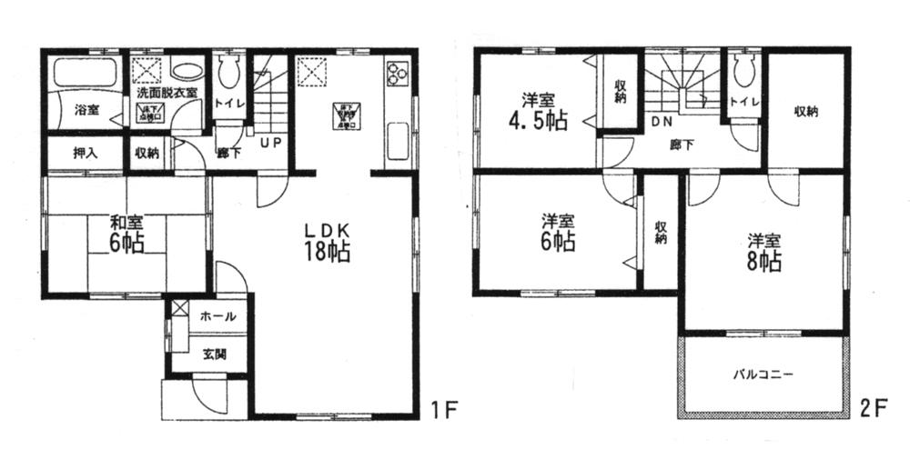
Floor plan間取り図  24,980,000 yen, 4LDK + S (storeroom), Land area 161.1 sq m , Building area 105.98 sq m
2498万円、4LDK+S(納戸)、土地面積161.1m2、建物面積105.98m2
Kitchenキッチン  Indoor (September 2013) Shooting
室内(2013年9月)撮影
Livingリビング  Indoor (September 2013) Shooting
室内(2013年9月)撮影
Bathroom浴室  Indoor (September 2013) Shooting
室内(2013年9月)撮影
Non-living roomリビング以外の居室  Indoor (September 2013) Shooting
室内(2013年9月)撮影
Entrance玄関  Local (September 2013) Shooting
現地(2013年9月)撮影
Wash basin, toilet洗面台・洗面所  Indoor (September 2013) Shooting
室内(2013年9月)撮影
Receipt収納  Indoor (September 2013) Shooting
室内(2013年9月)撮影
Balconyバルコニー  Local (September 2013) Shooting
現地(2013年9月)撮影
Other introspectionその他内観  Indoor (September 2013) Shooting
室内(2013年9月)撮影
View photos from the dwelling unit住戸からの眺望写真  View from local (September 2013) Shooting
現地からの眺望(2013年9月)撮影
Non-living roomリビング以外の居室  Indoor (September 2013) Shooting
室内(2013年9月)撮影
Receipt収納  Indoor (September 2013) Shooting
室内(2013年9月)撮影
Other introspectionその他内観  Indoor (September 2013) Shooting
室内(2013年9月)撮影
Receipt収納  Indoor (September 2013) Shooting
室内(2013年9月)撮影
Other introspectionその他内観  Indoor (September 2013) Shooting
室内(2013年9月)撮影
Same specifications photos (Other introspection)同仕様写真(その他内観)  (1 Building) same specification
(1号棟)同仕様
 (1 Building) same specification
(1号棟)同仕様
Location
|