|
|
Fukuoka Prefecture, Sawara-ku, Fukuoka
福岡県福岡市早良区
|
|
Subway Nanakuma line "Mononoke" walk 12 minutes
地下鉄七隈線「野芥」歩12分
|
|
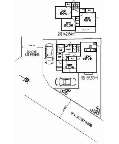
◇ site area of approximately 52.28 square meters, Newly built single-family ◇ parking space There are two cars ◇ all room pair glass of acquisition planning to performance evaluation in 4LDK ◇ Housing Performance Indication System of building area of approximately 29.80 square meters
◇敷地面積約52.28坪、建物面積約29.80坪の4LDK ◇住宅性能表示制度における性能評価を取得予定の新築戸建 ◇駐車スペース2台分あり ◇全居室ペアガラス
|
Features pickup 特徴ピックアップ | | Corresponding to the flat-35S / Parking two Allowed / Japanese-style room / garden / Barrier-free / Toilet 2 places / Bathroom 1 tsubo or more / 2-story / Warm water washing toilet seat / The window in the bathroom / TV monitor interphone フラット35Sに対応 /駐車2台可 /和室 /庭 /バリアフリー /トイレ2ヶ所 /浴室1坪以上 /2階建 /温水洗浄便座 /浴室に窓 /TVモニタ付インターホン |
Price 価格 | | 32,800,000 yen 3280万円 |
Floor plan 間取り | | 4LDK 4LDK |
Units sold 販売戸数 | | 1 units 1戸 |
Land area 土地面積 | | 172.84 sq m (52.28 tsubo) (Registration) 172.84m2(52.28坪)(登記) |
Building area 建物面積 | | 98.53 sq m (29.80 tsubo) (Registration) 98.53m2(29.80坪)(登記) |
Driveway burden-road 私道負担・道路 | | Nothing, Northwest 4.7m width, Southwest 4.7m width 無、北西4.7m幅、南西4.7m幅 |
Completion date 完成時期(築年月) | | October 2013 2013年10月 |
Address 住所 | | Fukuoka Prefecture, Sawara-ku, Fukuoka Hoshikuma 5 福岡県福岡市早良区干隈5 |
Traffic 交通 | | Subway Nanakuma line "Mononoke" walk 12 minutes Nishitetsu "Otsubo" walk 4 minutes 地下鉄七隈線「野芥」歩12分 西鉄バス「大坪」歩4分 |
Related links 関連リンク | | [Related Sites of this company] 【この会社の関連サイト】 |
Person in charge 担当者より | | Rep Shirakihara Tomohiro 担当者白木原 朋弘 |
Contact お問い合せ先 | | Nishitetsu Real Estate Co., Ltd. Otemon Head Office TEL: 0800-603-1685 [Toll free] mobile phone ・ Also available from PHS Caller ID is not notified Please contact the "saw SUUMO (Sumo)" If it does not lead, If the real estate company 西鉄不動産(株)大手門本店TEL:0800-603-1685【通話料無料】携帯電話・PHSからもご利用いただけます 発信者番号は通知されません 「SUUMO(スーモ)を見た」と問い合わせください つながらない方、不動産会社の方は
|
Building coverage, floor area ratio 建ぺい率・容積率 | | 60% ・ 80% 60%・80% |
Time residents 入居時期 | | Consultation 相談 |
Land of the right form 土地の権利形態 | | Ownership 所有権 |
Structure and method of construction 構造・工法 | | Wooden 2-story 木造2階建 |
Use district 用途地域 | | One low-rise 1種低層 |
Other limitations その他制限事項 | | Best height 10m, Building Standards Law Article 22 district 最高の高さ10m、建築基準法22条地区 |
Overview and notices その他概要・特記事項 | | Contact: Shirakihara Tomohiro, Facilities: Public Water Supply, This sewage, Centralized LPG, Building confirmation number: No. KJH-13-002524-1, Parking: Garage 担当者:白木原 朋弘、設備:公営水道、本下水、集中LPG、建築確認番号:第KJH-13-002524-1号、駐車場:車庫 |
Company profile 会社概要 | | <Mediation> Governor of Fukuoka Prefecture (1) No. 017121 (Corporation), Fukuoka Prefecture Building Lots and Buildings Transaction Business Association (One company) Kyushu Real Estate Fair Trade Council member Nishitetsu Real Estate Co., Ltd. Otemon head office Yubinbango810-0074 Fukuoka Chuo-ku, Fukuoka City Otemon 2-1-10 Nishitetsu Otemon building first floor <仲介>福岡県知事(1)第017121号(公社)福岡県宅地建物取引業協会会員 (一社)九州不動産公正取引協議会加盟西鉄不動産(株)大手門本店〒810-0074 福岡県福岡市中央区大手門2-1-10 西鉄大手門ビル1階 |