New Homes » Kyushu » Fukuoka Prefecture » Sawara-ku
 
| | Fukuoka Prefecture, Sawara-ku, Fukuoka 福岡県福岡市早良区 |
| Nishitetsu "Hoshinoharadanchi" walk 6 minutes 西鉄バス「星の原団地」歩6分 |
| [5th Anniversary] Campaign in! Founded in backing fifth anniversary! Who was capped for the first time be announced at our company, 2,000 yen worth of gift certificates gift every month first 30 people! 【5th Anniversary】キャンペーン開催中!お蔭様で創立5周年!初めて弊社にてご案内させて頂いた方、毎月先着30名様に2,000円分の商品券プレゼント! |
| Limited Building 1! Immediate Available! Within a 10-minute walk from the school range ◎ elementary and junior high schools of the peace of mind! Sunny ◎ is because Zenshitsuminami direction of wherever you are bright LDK spacious 16.5 Pledge, Also enhance storage space! Please feel free to contact us! Corresponding to the flat-35S, Year Available, Parking two Allowed, Energy-saving water heaters, Super close, Facing south, System kitchen, Yang per good, All room storage, A quiet residential area, LDK15 tatami mats or moreese-style room, Shaping land, Washbasin with shower, Face-to-face kitchen, Toilet 2 places, Bathroom 1 tsubo or more, 2-story, South balcony, Double-glazing, Zenshitsuminami direction, Warm water washing toilet seat, Underfloor Storage, The window in the bathroom, TV monitor interphone, Ventilation good, Water filter, City gas 限定1棟!即入居可!安心の通学範囲◎小中学校まで徒歩10分以内!日当り良好◎全室南向きなのでどこにいても明るいですLDKは16.5帖と広々、収納スペースも充実!お気軽にお問い合わせ下さい!フラット35Sに対応、年内入居可、駐車2台可、省エネ給湯器、スーパーが近い、南向き、システムキッチン、陽当り良好、全居室収納、閑静な住宅地、LDK15畳以上、和室、整形地、シャワー付洗面台、対面式キッチン、トイレ2ヶ所、浴室1坪以上、2階建、南面バルコニー、複層ガラス、全室南向き、温水洗浄便座、床下収納、浴室に窓、TVモニタ付インターホン、通風良好、浄水器、都市ガス |
Features pickup 特徴ピックアップ | | Corresponding to the flat-35S / Year Available / Parking two Allowed / Immediate Available / Energy-saving water heaters / Super close / Facing south / System kitchen / Yang per good / All room storage / A quiet residential area / LDK15 tatami mats or more / Japanese-style room / Shaping land / Washbasin with shower / Face-to-face kitchen / Toilet 2 places / Bathroom 1 tsubo or more / 2-story / South balcony / Double-glazing / Zenshitsuminami direction / Warm water washing toilet seat / Underfloor Storage / The window in the bathroom / TV monitor interphone / Ventilation good / Water filter / City gas フラット35Sに対応 /年内入居可 /駐車2台可 /即入居可 /省エネ給湯器 /スーパーが近い /南向き /システムキッチン /陽当り良好 /全居室収納 /閑静な住宅地 /LDK15畳以上 /和室 /整形地 /シャワー付洗面台 /対面式キッチン /トイレ2ヶ所 /浴室1坪以上 /2階建 /南面バルコニー /複層ガラス /全室南向き /温水洗浄便座 /床下収納 /浴室に窓 /TVモニタ付インターホン /通風良好 /浄水器 /都市ガス | Price 価格 | | 26,980,000 yen 2698万円 | Floor plan 間取り | | 4LDK 4LDK | Units sold 販売戸数 | | 1 units 1戸 | Total units 総戸数 | | 1 units 1戸 | Land area 土地面積 | | 128.42 sq m (38.84 tsubo) (measured) 128.42m2(38.84坪)(実測) | Building area 建物面積 | | 102.68 sq m (31.06 tsubo) (measured) 102.68m2(31.06坪)(実測) | Driveway burden-road 私道負担・道路 | | Nothing, East 4.4m width 無、東4.4m幅 | Completion date 完成時期(築年月) | | October 2013 2013年10月 | Address 住所 | | Fukuoka Prefecture, Sawara-ku, Fukuoka Iikura 8 福岡県福岡市早良区飯倉8 | Traffic 交通 | | Nishitetsu "Hoshinoharadanchi" walk 6 minutes 西鉄バス「星の原団地」歩6分 | Related links 関連リンク | | [Related Sites of this company] 【この会社の関連サイト】 | Contact お問い合せ先 | | TEL: 0120717-123 [Toll free] Please contact the "saw SUUMO (Sumo)" TEL:0120717-123【通話料無料】「SUUMO(スーモ)を見た」と問い合わせください | Building coverage, floor area ratio 建ぺい率・容積率 | | Fifty percent ・ 80% 50%・80% | Time residents 入居時期 | | Immediate available 即入居可 | Land of the right form 土地の権利形態 | | Ownership 所有権 | Structure and method of construction 構造・工法 | | Wooden 2-story (framing method) 木造2階建(軸組工法) | Use district 用途地域 | | One low-rise 1種低層 | Other limitations その他制限事項 | | Regulations have by the Aviation Law, Height ceiling Yes, Setback Yes 航空法による規制有、高さ最高限度有、壁面後退有 | Overview and notices その他概要・特記事項 | | Facilities: Public Water Supply, This sewage, City gas, Building confirmation number: No. KJH13-00810-1, Parking: car space 設備:公営水道、本下水、都市ガス、建築確認番号:第KJH13-00810-1号、駐車場:カースペース | Company profile 会社概要 | | <Mediation> Governor of Fukuoka Prefecture (1) No. 016400 (Corporation), Fukuoka Prefecture Building Lots and Buildings Transaction Business Association (One company) Kyushu Real Estate Fair Trade Council member (Ltd.) Eforu Yubinbango810-0074 Fukuoka Chuo-ku, Fukuoka City Otemon 1-8-8 <仲介>福岡県知事(1)第016400号(公社)福岡県宅地建物取引業協会会員 (一社)九州不動産公正取引協議会加盟(株)エフォール〒810-0074 福岡県福岡市中央区大手門1-8-8 |
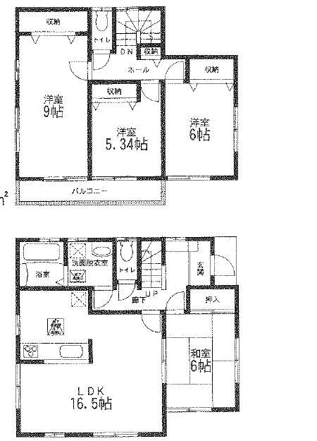
Floor plan間取り図  26,980,000 yen, 4LDK, Land area 128.42 sq m , Building area 102.68 sq m
2698万円、4LDK、土地面積128.42m2、建物面積102.68m2
Kitchenキッチン  Local (11 May 2013) Shooting
現地(2013年11月)撮影
Local appearance photo現地外観写真  Local (11 May 2013) Shooting
現地(2013年11月)撮影
 Local (11 May 2013) Shooting
現地(2013年11月)撮影
Livingリビング  Local (11 May 2013) Shooting
現地(2013年11月)撮影
Bathroom浴室  Local (11 May 2013) Shooting
現地(2013年11月)撮影
Non-living roomリビング以外の居室  Local (11 May 2013) Shooting
現地(2013年11月)撮影
Wash basin, toilet洗面台・洗面所  Local (11 May 2013) Shooting
現地(2013年11月)撮影
Garden庭  Local (11 May 2013) Shooting
現地(2013年11月)撮影
Livingリビング  Local (11 May 2013) Shooting
現地(2013年11月)撮影
Non-living roomリビング以外の居室  Local (11 May 2013) Shooting
現地(2013年11月)撮影
Location
|