New Homes » Kyushu » Fukuoka Prefecture » Sawara-ku
 
| | Fukuoka Prefecture, Sawara-ku, Fukuoka 福岡県福岡市早良区 |
| Subway Nanakuma line "Mononoke" walk 12 minutes 地下鉄七隈線「野芥」歩12分 |
| Fukuoka City Nanakuma line "Mononoke" station 12 minutes' walk! Iikura elementary school walk 9 minutes, Original junior high school walk 16 minutes! P2 cars, 3-neck gas stove, All pair glass, Eco-Jaws, etc. fully equipped! Please feel free to contact us. 福岡市七隈線「野芥」駅徒歩12分!飯倉小学校徒歩9分、原中学校徒歩16分!P2台分、3口ガスコンロ、オールペアガラス、エコジョーズ等設備充実!お気軽にお問合せ下さい。 |
| ■ Newly built single-family information of Fukuoka "Ios match! Search in "! ! New listing, Daily updating ■ Your choice of property and mortgage consultation, etc., Please feel free to contact us. ■福岡の新築一戸建て情報は「イオスいっち!」で検索!!新着物件情報、毎日更新中■ご希望の物件や住宅ローンのご相談など、お気軽にお問い合わせください。 |
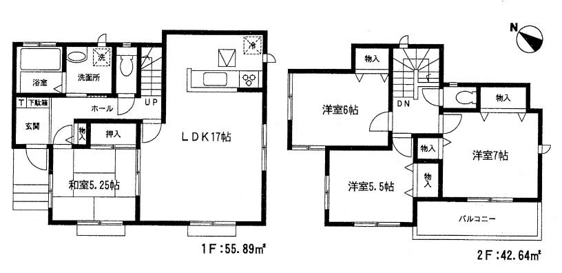
Features pickup 特徴ピックアップ | | Corresponding to the flat-35S / Parking two Allowed / Land 50 square meters or more / Energy-saving water heaters / System kitchen / Yang per good / All room storage / LDK15 tatami mats or more / Corner lot / Japanese-style room / Washbasin with shower / Face-to-face kitchen / Barrier-free / Toilet 2 places / Bathroom 1 tsubo or more / 2-story / South balcony / Double-glazing / Otobasu / Warm water washing toilet seat / Nantei / Underfloor Storage / The window in the bathroom / TV monitor interphone / Ventilation good / Water filter フラット35Sに対応 /駐車2台可 /土地50坪以上 /省エネ給湯器 /システムキッチン /陽当り良好 /全居室収納 /LDK15畳以上 /角地 /和室 /シャワー付洗面台 /対面式キッチン /バリアフリー /トイレ2ヶ所 /浴室1坪以上 /2階建 /南面バルコニー /複層ガラス /オートバス /温水洗浄便座 /南庭 /床下収納 /浴室に窓 /TVモニタ付インターホン /通風良好 /浄水器 | Price 価格 | | 27,900,000 yen 2790万円 | Floor plan 間取り | | 4LDK 4LDK | Units sold 販売戸数 | | 1 units 1戸 | Total units 総戸数 | | 1 units 1戸 | Land area 土地面積 | | 172.84 sq m (measured) 172.84m2(実測) | Building area 建物面積 | | 98.53 sq m (measured) 98.53m2(実測) | Driveway burden-road 私道負担・道路 | | Nothing, Northwest 4.7m width, Southwest 4.7m width 無、北西4.7m幅、南西4.7m幅 | Completion date 完成時期(築年月) | | October 2013 2013年10月 | Address 住所 | | Fukuoka Prefecture, Sawara-ku, Fukuoka Hoshikuma 5 福岡県福岡市早良区干隈5 | Traffic 交通 | | Subway Nanakuma line "Mononoke" walk 12 minutes Subway Nanakuma line "Kamo" walk 12 minutes Subway Nanakuma line "Meilin" walk 22 minutes 地下鉄七隈線「野芥」歩12分 地下鉄七隈線「賀茂」歩12分 地下鉄七隈線「梅林」歩22分
| Related links 関連リンク | | [Related Sites of this company] 【この会社の関連サイト】 | Person in charge 担当者より | | [Regarding this property.] ■ New construction Ichinohe Ken if to Ios Corporation. Please feel free to contact us at any time because it is possible guidance. ☆ Free dial 0120-983-103 ☆ 【この物件について】■新築一戸建ならイオスコーポレーションへ。いつでもご案内可能ですのでお気軽にお問い合わせください。☆フリーダイアル0120-983-103☆ | Contact お問い合せ先 | | TEL: 0800-603-8388 [Toll free] mobile phone ・ Also available from PHS Caller ID is not notified Please contact the "saw SUUMO (Sumo)" If it does not lead, If the real estate company TEL:0800-603-8388【通話料無料】携帯電話・PHSからもご利用いただけます 発信者番号は通知されません 「SUUMO(スーモ)を見た」と問い合わせください つながらない方、不動産会社の方は
| Building coverage, floor area ratio 建ぺい率・容積率 | | 60% ・ 80% 60%・80% | Time residents 入居時期 | | Immediate available 即入居可 | Land of the right form 土地の権利形態 | | Ownership 所有権 | Structure and method of construction 構造・工法 | | Wooden 2-story 木造2階建 | Use district 用途地域 | | One low-rise 1種低層 | Other limitations その他制限事項 | | Law Article 22 district, Best height 10m 法22条地区、最高の高さ10m | Overview and notices その他概要・特記事項 | | Facilities: Public Water Supply, This sewage, Individual LPG, Building confirmation number: KJH13-02524-1, Parking: car space 設備:公営水道、本下水、個別LPG、建築確認番号:KJH13-02524-1、駐車場:カースペース | Company profile 会社概要 | | <Mediation> Governor of Fukuoka Prefecture (2) No. 016040 (Corporation), Fukuoka Prefecture Building Lots and Buildings Transaction Business Association (One company) Kyushu Real Estate Fair Trade Council member (Ltd.) Ios Corporation Yubinbango810-0044 Fukuoka Chuo-ku, Fukuoka City Ropponmatsu 4-11-25 CROSSING2100-3 floor <仲介>福岡県知事(2)第016040号(公社)福岡県宅地建物取引業協会会員 (一社)九州不動産公正取引協議会加盟(株)イオスコーポレーション〒810-0044 福岡県福岡市中央区六本松4-11-25 CROSSING2100-3階 |
Local appearance photo現地外観写真  4LDK + Car space 2 cars!
4LDK+カースペース2台分!
Floor plan間取り図  27,900,000 yen, 4LDK, Land area 172.84 sq m , Building area 98.53 sq m Floor.
2790万円、4LDK、土地面積172.84m2、建物面積98.53m2 間取り。
Kitchenキッチン  System kitchen. 3-neck gas stove!
システムキッチン。3口ガスコンロ!
Non-living roomリビング以外の居室  Japanese-style room 5.25 quires.
和室5.25帖。
Livingリビング  Living 17 Pledge, Facing south!
リビング17帖、南向き!
Bathroom浴室  1 pyeong type bathroom. There is a window in the bathroom!
1坪タイプバスルーム。浴室に窓あり!
Livingリビング  Living 17 Pledge, Facing south!
リビング17帖、南向き!
Wash basin, toilet洗面台・洗面所  Washbasin with shower!
シャワー付き洗面台!
Toiletトイレ  1 ・ Both the second floor with a bidet function!
1・2階ともウォシュレット機能付き!
Non-living roomリビング以外の居室  2 Kaiyoshitsu.
2階洋室。
Receipt収納  There all rooms housed. Plenty of storage!
全室収納あり。たっぷり収納!
Other introspectionその他内観  Intercom with TV monitor.
TVモニター付インターホン。
Otherその他  Compartment figure
区画図
Local appearance photo現地外観写真  Local (11 May 2013) Shooting
現地(2013年11月)撮影
Non-living roomリビング以外の居室  2 Kaiyoshitsu.
2階洋室。
Entrance玄関  Entrance. Plenty of storage!
玄関。たっぷり収納!
 Local (11 May 2013) Shooting
現地(2013年11月)撮影
Local photos, including front road前面道路含む現地写真  Local (11 May 2013) Shooting
現地(2013年11月)撮影
 Local (11 May 2013) Shooting
現地(2013年11月)撮影
Balconyバルコニー  South-facing balcony!
南向きバルコニー!
Location
|