|
|
Fukuoka Prefecture, Sawara-ku, Fukuoka
福岡県福岡市早良区
|
|
Nishitetsu "Hayakotobukien before" walk 2 minutes
西鉄バス「早寿園前」歩2分
|
|
It is unfinished, Please feel free to contact us you can see the same specification properties (= ^ ▽ ^ =) Bruno toll-free number 0800-603-2314, We look forward to
未完成ですが、同仕様物件をご覧いただけますお気軽にお問合せください(=^▽^=)ノフリーダイアル0800-603-2314、お待ちしております
|
|
[Surrounding environment] Deer field Elementary School 6-minute walk Kin junior high walk 19 minutes Smiling nursery walk 7 minutes Spanish mackerel kindergarten 7 minutes walk Sunny Shigedome store 3-minute walk Drag Segami Shigedome store a 5-minute walk Fukuoka Shikatadanchi post office walk 13 minutes ◇ our HP large number listing published in, Customers who have thought that scary is hard sell to go to the customer ◇ real estate agent you are wondering whether the anxiety take a look please ◇◇ mortgage borrowing can be likely, Region if our staff "good of the people" is the NO.1! ◇ While the request of sale, Quite the customer that does not sell in the amount of hope ~ Please consult any worries Plenty of real estate, Peace of mind ・ It boasts a secure transactions! ~ Please feel free to send free dial 0800-603-2314
【周辺環境】四箇田小学校徒歩6分 金武中学校徒歩19分 にこにこ保育園徒歩7分 早良幼稚園徒歩7分サニー重留店徒歩3分 ドラックセガミ重留店徒歩5分 福岡四箇田団地郵便局徒歩13分◇弊社HP多数物件公開中、是非ご覧ください◇◇住宅ローンの借り入れが出来るか不安に思っているお客様◇不動産屋に行くと押し売りされそうで怖いと思っているお客様、弊社スタッフ『人の良さ』なら地域NO.1です!◇売却の依頼をしているが、なかなか希望の金額で売れないというお客様 ~ 不動産のことならどんなお悩みでもご相談ください、安心・安全な取引が自慢です! ~ フリーダイアル0800-603-2314までお気軽にどうぞ
|
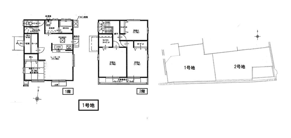
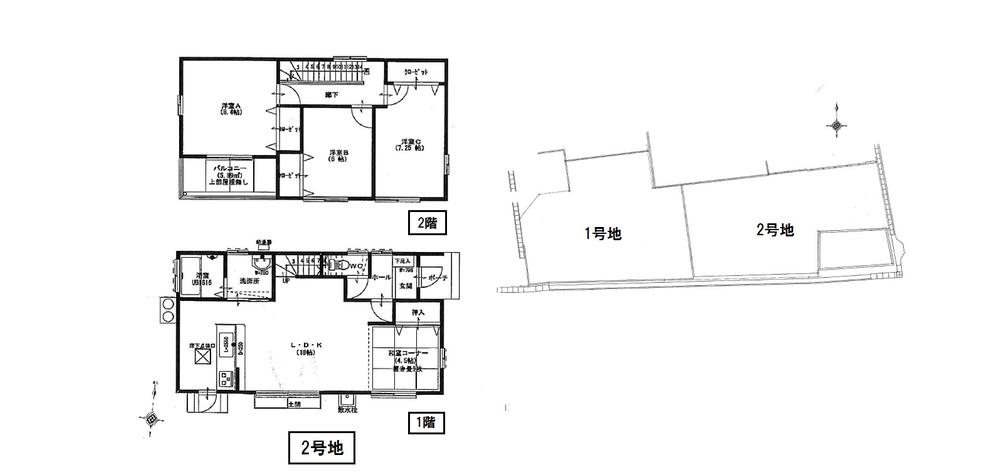
Features pickup 特徴ピックアップ | | Parking two Allowed / Land 50 square meters or more / LDK15 tatami mats or more / Japanese-style room / Face-to-face kitchen / 2-story 駐車2台可 /土地50坪以上 /LDK15畳以上 /和室 /対面式キッチン /2階建 |
Price 価格 | | 26,800,000 yen ~ 28.8 million yen 2680万円 ~ 2880万円 |
Floor plan 間取り | | 4LDK 4LDK |
Units sold 販売戸数 | | 2 units 2戸 |
Total units 総戸数 | | 2 units 2戸 |
Land area 土地面積 | | 165.3 sq m ~ 165.44 sq m 165.3m2 ~ 165.44m2 |
Building area 建物面積 | | 103.71 sq m ~ 104.22 sq m 103.71m2 ~ 104.22m2 |
Completion date 完成時期(築年月) | | February 2014 schedule 2014年2月予定 |
Address 住所 | | Fukuoka Prefecture, Sawara-ku, Fukuoka Shigedome 7 福岡県福岡市早良区重留7 |
Traffic 交通 | | Nishitetsu "Hayakotobukien before" walk 2 minutes 西鉄バス「早寿園前」歩2分 |
Related links 関連リンク | | [Related Sites of this company] 【この会社の関連サイト】 |
Person in charge 担当者より | | [Regarding this property.] ◆ Our HP ◆ Sumo non-listed property in also posted at! ! Housing loan, We will explain an easy-to-understand, such as financial planning. Please feel free to send free dial 0800-603-2314 【この物件について】◆弊社HP◆にてスーモ非掲載物件も掲載中!!住宅ローン、資金計画などわかりやすくご説明します。フリーダイアル0800-603-2314までお気軽にどうぞ |
Contact お問い合せ先 | | TEL: 0800-603-2314 [Toll free] mobile phone ・ Also available from PHS Caller ID is not notified Please contact the "saw SUUMO (Sumo)" If it does not lead, If the real estate company TEL:0800-603-2314【通話料無料】携帯電話・PHSからもご利用いただけます 発信者番号は通知されません 「SUUMO(スーモ)を見た」と問い合わせください つながらない方、不動産会社の方は
|
Time residents 入居時期 | | Three months after the contract 契約後3ヶ月 |
Land of the right form 土地の権利形態 | | Ownership 所有権 |
Structure and method of construction 構造・工法 | | Wooden 2-story 木造2階建 |
Use district 用途地域 | | One low-rise 1種低層 |
Land category 地目 | | Residential land 宅地 |
Overview and notices その他概要・特記事項 | | Building confirmation number: No. 1 destination: the H25 building certification Fukuzumi cell this issue 01306 No. 2 Location: No. BVJ-F13-10-1473 建築確認番号:1号地:第H25確認建築福住セ本01306号 2号地:第BVJ-F13-10-1473号 |
Company profile 会社概要 | | <Mediation> Minister of Land, Infrastructure and Transport (2) No. 007017 (Corporation) All Japan Real Estate Association (One company) Kyushu Real Estate Fair Trade Council member (Ltd.) House Freedom Spanish mackerel shop Yubinbango814-0022 Fukuoka Sawara KuHara 1-39-19 <仲介>国土交通大臣(2)第007017号(公社)全日本不動産協会会員 (一社)九州不動産公正取引協議会加盟(株)ハウスフリーダム早良店〒814-0022 福岡県福岡市早良区原1-39-19 |