New Homes » Kyushu » Fukuoka Prefecture » Fukutsu
 
| | Fukuoka Prefecture Fukutsu 福岡県福津市 |
| Nishitetsu "Yamato-cho" walk 5 minutes 西鉄「大和町」歩5分 |
| ☆ 彡 living 16 tatami ・ Second floor Western-style room in the floor area of 101 sq m is all six tatami mats or more, Each room also has been enhanced storage. Please Visit the once local ☆彡リビング16畳・床面積101m2で2階洋室はすべて6畳以上です、各部屋収納も充実しています。是非一度現地をご覧ください |
| Corresponding to the flat-35S, Seismic fit, Parking two Allowed, System kitchen, Bathroom Dryer, Yang per good, Pre-ground survey, LDK18 tatami mats or more, A quiet residential area, Washbasin with shower, Face-to-face kitchen, Bathroom 1 tsubo or more, 2-story, Double-glazing, Warm water washing toilet seat, Underfloor Storage, The window in the bathroom, TV monitor interphone, Walk-in closet, Living stairs, roof balcony, Flat terrain, Development subdivision in フラット35Sに対応、耐震適合、駐車2台可、システムキッチン、浴室乾燥機、陽当り良好、地盤調査済、LDK18畳以上、閑静な住宅地、シャワー付洗面台、対面式キッチン、浴室1坪以上、2階建、複層ガラス、温水洗浄便座、床下収納、浴室に窓、TVモニタ付インターホン、ウォークインクロゼット、リビング階段、ルーフバルコニー、平坦地、開発分譲地内 |
Features pickup 特徴ピックアップ | | Corresponding to the flat-35S / Pre-ground survey / Seismic fit / Parking two Allowed / LDK18 tatami mats or more / System kitchen / Bathroom Dryer / Yang per good / A quiet residential area / Washbasin with shower / Face-to-face kitchen / Bathroom 1 tsubo or more / 2-story / Double-glazing / Warm water washing toilet seat / Underfloor Storage / The window in the bathroom / TV monitor interphone / Walk-in closet / Living stairs / roof balcony / Flat terrain / Development subdivision in フラット35Sに対応 /地盤調査済 /耐震適合 /駐車2台可 /LDK18畳以上 /システムキッチン /浴室乾燥機 /陽当り良好 /閑静な住宅地 /シャワー付洗面台 /対面式キッチン /浴室1坪以上 /2階建 /複層ガラス /温水洗浄便座 /床下収納 /浴室に窓 /TVモニタ付インターホン /ウォークインクロゼット /リビング階段 /ルーフバルコニー /平坦地 /開発分譲地内 | Price 価格 | | 21,800,000 yen 2180万円 | Floor plan 間取り | | 4LDK 4LDK | Units sold 販売戸数 | | 1 units 1戸 | Total units 総戸数 | | 1 units 1戸 | Land area 土地面積 | | 163.34 sq m (49.41 tsubo) (Registration) 163.34m2(49.41坪)(登記) | Building area 建物面積 | | 101 sq m (30.55 tsubo) (Registration) 101m2(30.55坪)(登記) | Driveway burden-road 私道負担・道路 | | Nothing, West 4.2m width 無、西4.2m幅 | Completion date 完成時期(築年月) | | October 2013 2013年10月 | Address 住所 | | Fukuoka Prefecture Fukutsu center 5 福岡県福津市中央5 | Traffic 交通 | | Nishitetsu "Yamato-cho" walk 5 minutes 西鉄「大和町」歩5分 | Related links 関連リンク | | [Related Sites of this company] 【この会社の関連サイト】 | Person in charge 担当者より | | Person in charge of real-estate and building FP real estate consulting skills registrant Matsufuji Koichi Age: 30 Daigyokai Experience: 9 years and the communication of the importance to our customers, It will help your house hunting that everyone in the family can feel the happiness. Doubt and anxiety of house hunting, Financial planning, etc., Anything please feel free to contact us. 担当者宅建FP不動産コンサルティング技能登録者松藤 浩一年齢:30代業界経験:9年お客様とのコミュニケーションを大切に、ご家族の皆様が幸せを感じられるお家探しをお手伝い致します。家探しの疑問や不安、資金計画など、何でもお気軽にご相談下さい。 | Contact お問い合せ先 | | TEL: 0800-602-5700 [Toll free] mobile phone ・ Also available from PHS Caller ID is not notified Please contact the "saw SUUMO (Sumo)" If it does not lead, If the real estate company TEL:0800-602-5700【通話料無料】携帯電話・PHSからもご利用いただけます 発信者番号は通知されません 「SUUMO(スーモ)を見た」と問い合わせください つながらない方、不動産会社の方は
| Building coverage, floor area ratio 建ぺい率・容積率 | | 60% ・ 200% 60%・200% | Time residents 入居時期 | | Immediate available 即入居可 | Land of the right form 土地の権利形態 | | Ownership 所有権 | Structure and method of construction 構造・工法 | | Wooden 2-story (framing method) 木造2階建(軸組工法) | Use district 用途地域 | | One dwelling 1種住居 | Other limitations その他制限事項 | | Regulations have by the Aviation Law 航空法による規制有 | Overview and notices その他概要・特記事項 | | Contact: Matsufuji Koichi, Facilities: Public Water Supply, This sewage, Individual LPG, Building confirmation number: H24, Parking: car space 担当者:松藤 浩一、設備:公営水道、本下水、個別LPG、建築確認番号:H24、駐車場:カースペース | Company profile 会社概要 | | <Mediation> Governor of Fukuoka Prefecture (1) No. 016302 (Ltd.) Mercury Home real estate section Yubinbango814-0022 Fukuoka Sawara KuHara 5-14-8 luge original No. 201 <仲介>福岡県知事(1)第016302号(株)マーキュリーホーム不動産部〒814-0022 福岡県福岡市早良区原5-14-8 リュージュ原 201号 |
Same specifications photos (appearance)同仕様写真(外観)  Same specifications
同仕様
Local appearance photo現地外観写真  The outer wall fire protection ・ Dairaito specification with excellent durability, Siding stain-resistant fluorine processing!
外壁は防火性・耐久性に優れたダイライト仕様、サイディングは汚れの付きにくいフッ素加工!
Kitchenキッチン  Also enhance storage in the shower water purifier systems with kitchen!
シャワー浄水器付きシステムキッチンで収納も充実!
Livingリビング  Also useful dishes in face-to-face counter kitchen, It is also likely to increase dialogue with the family (^ - ^)
対面式カウンターキッチンでお料理にも便利で、家族との対話も増えそうですね(^-^)
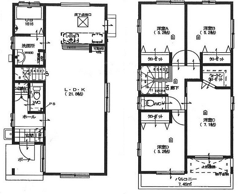
Floor plan間取り図  21,800,000 yen, 4LDK, Land area 163.34 sq m , Building area 101 sq m
2180万円、4LDK、土地面積163.34m2、建物面積101m2
Bathroom浴室  The bathroom is with a spacious bathroom dryer at 1 pyeong type
浴室は1坪タイプで広々浴室乾燥機付きです
 Non-living room
リビング以外の居室
 Wash basin, toilet
洗面台・洗面所
 Receipt
収納
 Garden
庭
 Parking lot
駐車場
 Other introspection
その他内観
 Non-living room
リビング以外の居室
 Non-living room
リビング以外の居室
Location
|