New Homes » Kyushu » Fukuoka Prefecture » Fukutsu
 
| | Fukuoka Prefecture Fukutsu 福岡県福津市 |
| JR Kagoshima Main Line "Fukuma" walk 12 minutes JR鹿児島本線「福間」歩12分 |
| Complete tour being held! (No. 1 destination ・ No. 4 locations) Please feel the warmth of the living room floor heating. You can also visit on weekdays! For more information, please contact. 0120-76-0505 Shin Nippon Holmes Fukuoka Branch 完成見学会開催中!(1号地・4号地)リビング床暖房の暖かさをご体感ください。平日もご覧頂けます!詳しくはお問い合わせください。0120-76-0505 新日本ホームズ福岡支 |
| The much living like home? . What kind of house? . Was examined "reform, More than expected of costly was replaced eventually Ken. We ask well the story of ". Village series everyone is that I think that you want to live a long time in a house with an attachment will be fulfilled. Birth to asset value to the house and city to continue to protect the beauty does not change, It will be unwavering status. ずっと暮らしたい家とは?愛着を持ち続ける事が出来る家とは。どんな家でしょうか?その答えがvillage series(明日花ビレッジ) にあります。「リフォームを検討したが、予想以上の費用がかかり結局建替えた。」という話をよく伺います。愛着のある家に永く暮らしたいという誰もが思う事をビレッジシリーズは叶えられます。美しさを守り続ける家と街並みが変わらない資産価値を生み、揺るがないステータスになります。 |
Local guide map 現地案内図 | | Local guide map 現地案内図 | Features pickup 特徴ピックアップ | | Parking two Allowed / Immediate Available / LDK20 tatami mats or more / Energy-saving water heaters / Super close / Facing south / System kitchen / Bathroom Dryer / Yang per good / Flat to the station / Siemens south road / Around traffic fewer / Japanese-style room / Shaping land / garden / Face-to-face kitchen / Barrier-free / Toilet 2 places / Bathroom 1 tsubo or more / 2-story / Double-glazing / Warm water washing toilet seat / The window in the bathroom / Urban neighborhood / Ventilation good / Dish washing dryer / Walk-in closet / Water filter / City gas / Maintained sidewalk / Flat terrain / Floor heating / Development subdivision in / Readjustment land within / Movable partition 駐車2台可 /即入居可 /LDK20畳以上 /省エネ給湯器 /スーパーが近い /南向き /システムキッチン /浴室乾燥機 /陽当り良好 /駅まで平坦 /南側道路面す /周辺交通量少なめ /和室 /整形地 /庭 /対面式キッチン /バリアフリー /トイレ2ヶ所 /浴室1坪以上 /2階建 /複層ガラス /温水洗浄便座 /浴室に窓 /都市近郊 /通風良好 /食器洗乾燥機 /ウォークインクロゼット /浄水器 /都市ガス /整備された歩道 /平坦地 /床暖房 /開発分譲地内 /区画整理地内 /可動間仕切り | Event information イベント情報 | | Local sales Association (please make a reservation beforehand) schedule / During the public time / 9:30 ~ 17:30 local sales meetings and consultation carried out during the! 現地販売会(事前に必ず予約してください)日程/公開中時間/9:30 ~ 17:30現地販売会&相談会実施中! | Property name 物件名 | | Tomorrow Hana Village 明日花ビレッジ | Price 価格 | | 33,900,000 yen ~ 34,950,000 yen 3390万円 ~ 3495万円 | Floor plan 間取り | | 4LDK 4LDK | Units sold 販売戸数 | | 3 units 3戸 | Total units 総戸数 | | 4 units 4戸 | Land area 土地面積 | | 191.5 sq m ~ 191.75 sq m (57.92 tsubo ~ 58.00 tsubo) (measured) 191.5m2 ~ 191.75m2(57.92坪 ~ 58.00坪)(実測) | Building area 建物面積 | | 110.13 sq m ~ 111.78 sq m (33.31 tsubo ~ 33.81 tsubo) (measured) 110.13m2 ~ 111.78m2(33.31坪 ~ 33.81坪)(実測) | Completion date 完成時期(築年月) | | 2013 early December 2013年12月初旬 | Address 住所 | | Fukuoka Prefecture Fukutsu Fukuma Station east land readjustment project site within the 8 city blocks 1-4, 5, 6 福岡県福津市福間駅東土地区画整理事業地内 8街区1-4、5、6 | Traffic 交通 | | JR Kagoshima Main Line "Fukuma" walk 12 minutes JR鹿児島本線「福間」歩12分
| Related links 関連リンク | | [Related Sites of this company] 【この会社の関連サイト】 | Contact お問い合せ先 | | New Japan Holmes Co., Ltd. Fukuoka Branch TEL: 0120-760505 [Toll free] Please contact the "saw SUUMO (Sumo)" 新日本ホームズ(株)福岡支店TEL:0120-760505【通話料無料】「SUUMO(スーモ)を見た」と問い合わせください | Sale schedule 販売スケジュール | | Complete tour being held! (No. 1 destination ・ No. 4 locations) For more information, please contact. 0120-76-0505 Shin Nippon Holmes Fukuoka branch 完成見学会開催中!(1号地・4号地)詳しくはお問い合わせください。0120-76-0505 新日本ホームズ福岡支店 | Building coverage, floor area ratio 建ぺい率・容積率 | | Building coverage: 60%, 40% 建ぺい率:60%、40% | Time residents 入居時期 | | Immediate available 即入居可 | Land of the right form 土地の権利形態 | | Ownership 所有権 | Structure and method of construction 構造・工法 | | Wooden (2 × 4 construction method) 木造(2×4工法) | Construction 施工 | | New Japan Homes, Inc. 新日本ホームズ株式会社 | Use district 用途地域 | | One dwelling, One low-rise 1種住居、1種低層 | Overview and notices その他概要・特記事項 | | Building confirmation number: KJH13-02599-1, KJH13-02600-1, KJH13-02601-1, KJH13-02602-1 建築確認番号:KJH13-02599-1、KJH13-02600-1、KJH13-02601-1、KJH13-02602-1 | Company profile 会社概要 | | <Seller> Governor of Fukuoka Prefecture (8) New Japan Holmes Co., Fukuoka branch Yubinbango810-0074 Fukuoka Chuo-ku, Fukuoka City No. 008074 Otemon 2-3-13 <売主>福岡県知事(8)第008074号新日本ホームズ(株)福岡支店〒810-0074 福岡県福岡市中央区大手門2-3-13 |
Local appearance photo現地外観写真  Local (12 May 2013) Shooting
現地(2013年12月)撮影
Other introspectionその他内観 ![Other introspection. [No. 1 destination PLAN] All the living room facing south! At any time light and wind is the open floor plan charm shine in!](/images/fukuoka/fukutsu/636a580040.jpg) [No. 1 destination PLAN] All the living room facing south! At any time light and wind is the open floor plan charm shine in!
【1号地PLAN】全居室南向き!いつでも光と風が射し込む開放的な間取りが魅力です!
Local appearance photo現地外観写真  No. 4 place appearance face-to-face kitchen, Compact water around flow line, Housing wealth, All types LDK floor heating standard equipment! (2013 November shooting)
4号地外観対面キッチン、コンパクトな水廻り動線、収納豊富、全タイプLDK床暖房標準装備!(2013年11月撮影)
Sale already cityscape photo分譲済街並み写真 ![Sale already cityscape photo. [Nearby construction cases: Mainosato Village] Even after the completion five years, You can see the beautiful skyline that does not change as time! I'd love to, Please realize the maintenance-free charm! (Same specifications)](/images/fukuoka/fukutsu/636a580033.jpg) [Nearby construction cases: Mainosato Village] Even after the completion five years, You can see the beautiful skyline that does not change as time! I'd love to, Please realize the maintenance-free charm! (Same specifications)
【近隣施工例:舞の里ビレッジ】竣工5年後も、当時のと変わらない美しい街並みがご覧いただけます!是非、メンテナンスフリーの魅力を実感ください!(同仕様)
The entire compartment Figure全体区画図  Tomorrow flower Village whole compartment view (12 / 02 update) ■ All four compartment ■ Two car space ■ Every Saturday and Sunday, Local guide meeting held in!
明日花ビレッジ全体区画図(12/02更新)■全4区画■カースペース2台■毎週土日、現地案内会開催中!
Local appearance photo現地外観写真  No. 1 destination appearance face-to-face kitchen, Water around a straight line of flow line, Storage rich plan, All the living room facing south, Full recommended plan! (2013 November shooting)
1号地外観対面キッチン、水廻り一直線の動線、収納豊富なプラン、全居室南向き、お勧めプラン満載!(2013年11月撮影)
Same specifications photo (kitchen)同仕様写真(キッチン)  Kitchen dishes is get on function by shortening the housework time is packed! Housework flow line is pat (same specifications)
家事時間を短縮してお料理がはかどる機能が満載のキッチン!家事動線もバッチリです(同仕様)
Model house photoモデルハウス写真 ![Model house photo. [Kashiihama model home] From tomorrow Hana Village, It is a short drive! Please come and visit us. Pleasant design and functional space living the design depict, please feel.](/images/fukuoka/fukutsu/636a580041.jpg) [Kashiihama model home] From tomorrow Hana Village, It is a short drive! Please come and visit us. Pleasant design and functional space living the design depict, please feel.
【香椎浜モデルホーム】明日花ビレッジから、車ですぐです!是非お立ち寄りください。心地よいデザインと機能的な空間設計が描き出す暮らしをご体感ください。
![Model house photo. [Marina Street model home] living, dining, Space development with a continuous feeling of opening of the inner court](/images/fukuoka/fukutsu/636a580045.jpg) [Marina Street model home] living, dining, Space development with a continuous feeling of opening of the inner court
【マリナ通りモデルホーム】リビング、ダイニング、インナーコートの連続した開放感のある空間づくり
![Model house photo. [Marina Street model home] Inner coat warm light enters the family of the sun gather](/images/fukuoka/fukutsu/636a580044.jpg) [Marina Street model home] Inner coat warm light enters the family of the sun gather
【マリナ通りモデルホーム】太陽のあたたかな光が入る家族が集うインナーコート
![Model house photo. [Symphony of the model home] Design that emphasizes a sense of distance of a comfortable 2 households. Living is a spacious space surrounding the fireplace.](/images/fukuoka/fukutsu/636a580046.jpg) [Symphony of the model home] Design that emphasizes a sense of distance of a comfortable 2 households. Living is a spacious space surrounding the fireplace.
【ひびきのモデルホーム】快適な2世帯の距離感を重視した設計。リビングは暖炉を囲むゆったりとした空間です。
![Model house photo. Marina Street model home [Living-dining] This exhibition hall was OPEN in March this year. Even in such a large urban space of the site constraints, To provide users with a three-dimensional manner possible, "the pursuit of light and wind.".](/images/fukuoka/fukutsu/636a580043.jpg) Marina Street model home [Living-dining] This exhibition hall was OPEN in March this year. Even in such a large urban space of the site constraints, To provide users with a three-dimensional manner possible, "the pursuit of light and wind.".
マリナ通りモデルホーム【リビングダイニング】今年3月にOPENした展示場です。敷地的な制約の多い都市空間などにおいても、立体的に可能な「光と風の追求」を実現しています。
Rendering (appearance)完成予想図(外観)  <No. 1 destination Elevation>
<1号地 立面図>
 <No. 3 place Elevation>
<3号地 立面図>
 <No. 4 place Elevation>
<4号地 立面図>
Station駅  960m to Fukuma Station
福間駅まで960m
Shopping centreショッピングセンター  3000m to Aeon Mall Fu Tsu
イオンモール福津まで3000m
Primary school小学校  720m until Minami Fukuma Elementary School
福間南小学校まで720m
Home centerホームセンター  Until Maxvalu 960m
マックスバリュまで960m
Other Environmental Photoその他環境写真  Fukuma to the coast 3000m
福間海岸まで3000m
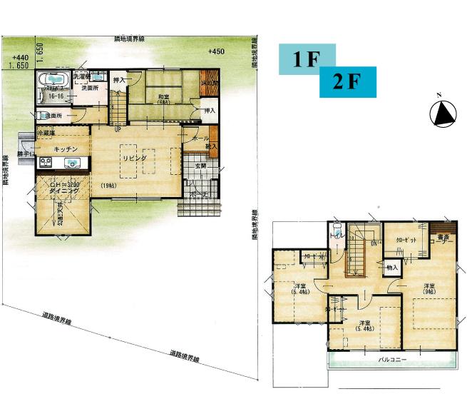
Floor plan間取り図  Local (12 May 2013) Shooting
現地(2013年12月)撮影
 Local (12 May 2013) Shooting
現地(2013年12月)撮影
 Local (12 May 2013) Shooting
現地(2013年12月)撮影
Government office役所  Fukutsu City Office Fukuma to government buildings 1200m
福津市役所福間庁舎まで1200m
Other Equipmentその他設備  Cleanup Corporation / Clean Lady
クリナップ/クリンレディ
 TOTO / Sazana temperature I had A type
TOTO/サザナ温あったかAタイプ
 YKK AP / Venato
YKK AP/ヴェナート
Local guide map現地案内図  JR Fukuma a 12-minute walk to the Train Station!
JR福間駅まで徒歩12分!
Other Equipmentその他設備  YKK AP / Eipia J
YKK AP/エイピアJ
 Asahi Wood Tech
朝日ウッドテック
Cooling and heating ・ Air conditioning冷暖房・空調設備  Saibu Gas Co., Ltd.
西部ガス
Location
|