New Homes » Kyushu » Fukuoka Prefecture » Itoshima
 
| | Fukuoka Prefecture Itoshima 福岡県糸島市 |
| JR Chikuhi line "Ikisan" walk 9 minutes JR筑肥線「一貴山」歩9分 |
| JR Chikuhi line "consistency mountain" station walk 9 minutes! Consistency mountain elementary school ・ Nijo junior high school. Zenshitsuminami direction! 3-neck gas stove, Pair glass, Eco Jaws, With bathroom dryer, etc. fully equipped Please feel free to contact us. JR筑肥線「一貫山」駅徒歩9分!一貫山小学校・二丈中学校。全室南向き!3口ガスコンロ、ペアガラス、エコジョーズ、浴室乾燥機付き等設備充実お気軽にお問合せください。 |
| ■ Newly built single-family information of Fukuoka "Ios match! Search in "! ! New listing, Daily updating ■ Your choice of property and mortgage consultation, etc., Please feel free to contact us. ■福岡の新築一戸建て情報は「イオスいっち!」で検索!!新着物件情報、毎日更新中■ご希望の物件や住宅ローンのご相談など、お気軽にお問い合わせください。 |
Features pickup 特徴ピックアップ | | Corresponding to the flat-35S / Parking two Allowed / Land 50 square meters or more / Energy-saving water heaters / Facing south / System kitchen / Bathroom Dryer / Yang per good / All room storage / A quiet residential area / LDK15 tatami mats or more / Or more before road 6m / Japanese-style room / Washbasin with shower / Face-to-face kitchen / Toilet 2 places / Bathroom 1 tsubo or more / 2-story / South balcony / Double-glazing / Zenshitsuminami direction / Otobasu / Warm water washing toilet seat / Nantei / Underfloor Storage / The window in the bathroom / TV monitor interphone / Ventilation good / Water filter / Storeroom フラット35Sに対応 /駐車2台可 /土地50坪以上 /省エネ給湯器 /南向き /システムキッチン /浴室乾燥機 /陽当り良好 /全居室収納 /閑静な住宅地 /LDK15畳以上 /前道6m以上 /和室 /シャワー付洗面台 /対面式キッチン /トイレ2ヶ所 /浴室1坪以上 /2階建 /南面バルコニー /複層ガラス /全室南向き /オートバス /温水洗浄便座 /南庭 /床下収納 /浴室に窓 /TVモニタ付インターホン /通風良好 /浄水器 /納戸 | Price 価格 | | 17.8 million yen 1780万円 | Floor plan 間取り | | 4LDK + S (storeroom) 4LDK+S(納戸) | Units sold 販売戸数 | | 1 units 1戸 | Total units 総戸数 | | 2 units 2戸 | Land area 土地面積 | | 214.94 sq m (registration) 214.94m2(登記) | Building area 建物面積 | | 97.19 sq m 97.19m2 | Driveway burden-road 私道負担・道路 | | Nothing, West 8.4m width 無、西8.4m幅 | Completion date 完成時期(築年月) | | February 2014 2014年2月 | Address 住所 | | Fukuoka Prefecture Itoshima Takeshi Nijo 福岡県糸島市二丈武 | Traffic 交通 | | JR Chikuhi line "Ikisan" walk 9 minutes JR Chikuhi line "Kafuri" walk 29 minutes JR Chikuhi line "Chikuzen Fukae" walk 41 minutes JR筑肥線「一貴山」歩9分 JR筑肥線「加布里」歩29分 JR筑肥線「筑前深江」歩41分
| Related links 関連リンク | | [Related Sites of this company] 【この会社の関連サイト】 | Person in charge 担当者より | | [Regarding this property.] ■ Please feel free to contact us. Also in consultation about the expenses and payments, We respond firmly. 【この物件について】■お気軽にお問い合わせください。諸費用やお支払いに関するご相談にも、しっかりお応えします。 | Contact お問い合せ先 | | TEL: 0800-603-8388 [Toll free] mobile phone ・ Also available from PHS Caller ID is not notified Please contact the "saw SUUMO (Sumo)" If it does not lead, If the real estate company TEL:0800-603-8388【通話料無料】携帯電話・PHSからもご利用いただけます 発信者番号は通知されません 「SUUMO(スーモ)を見た」と問い合わせください つながらない方、不動産会社の方は
| Building coverage, floor area ratio 建ぺい率・容積率 | | 60% ・ Hundred percent 60%・100% | Time residents 入居時期 | | Consultation 相談 | Land of the right form 土地の権利形態 | | Ownership 所有権 | Structure and method of construction 構造・工法 | | Wooden 2-story 木造2階建 | Use district 用途地域 | | Two low-rise 2種低層 | Other limitations その他制限事項 | | TateHajimeho Article 22 designated area 建基法22条指定区域 | Overview and notices その他概要・特記事項 | | Facilities: Public Water Supply, This sewage, Individual LPG, Building confirmation number: No. H25SHC119658, Parking: car space 設備:公営水道、本下水、個別LPG、建築確認番号:第H25SHC119658号、駐車場:カースペース | Company profile 会社概要 | | <Mediation> Governor of Fukuoka Prefecture (2) No. 016040 (Corporation), Fukuoka Prefecture Building Lots and Buildings Transaction Business Association (One company) Kyushu Real Estate Fair Trade Council member (Ltd.) Ios Corporation Yubinbango810-0044 Fukuoka Chuo-ku, Fukuoka City Ropponmatsu 4-11-25 CROSSING2100-3 floor <仲介>福岡県知事(2)第016040号(公社)福岡県宅地建物取引業協会会員 (一社)九州不動産公正取引協議会加盟(株)イオスコーポレーション〒810-0044 福岡県福岡市中央区六本松4-11-25 CROSSING2100-3階 |
Same specifications photos (appearance)同仕様写真(外観)  Car space 2 cars! (Same specifications photo)
カースペース2台分!(同仕様写真)
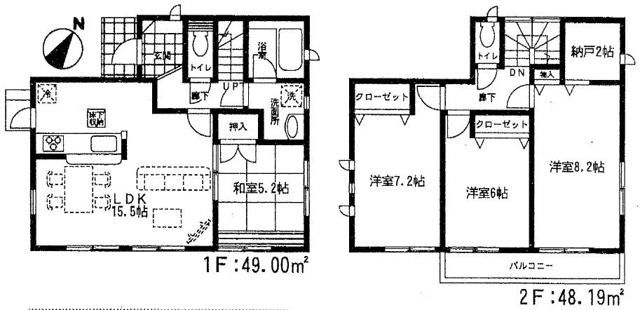
Floor plan間取り図  17.8 million yen, 4LDK + S (storeroom), Land area 214.94 sq m , Building area 97.19 sq m Floor
1780万円、4LDK+S(納戸)、土地面積214.94m2、建物面積97.19m2 間取り
Same specifications photo (kitchen)同仕様写真(キッチン)  3-neck gas stove! ! (Same specifications photo)
3口ガスコンロ!!(同仕様写真)
Same specifications photos (living)同仕様写真(リビング)  Living 15.5 Pledge! (Same specifications photo)
リビング15.5帖!(同仕様写真)
Same specifications photo (bathroom)同仕様写真(浴室)  With bathroom dryer! (Same specifications photo)
浴室乾燥機付き!(同仕様写真)
Same specifications photos (Other introspection)同仕様写真(その他内観)  Japanese-style room 5.2 quires (same specifications photo)
和室5.2帖(同仕様写真)
 Western style room, Zenshitsuminami facing sunny! (Same specifications photo)
洋室、全室南向き日当たり良好!(同仕様写真)
 Western style room, There all rooms housed! (Same specifications photo)
洋室、全室収納あり!(同仕様写真)
 Washbasin with shower (same specifications photo)
シャワー付き洗面台(同仕様写真)
 1 ・ 2 Kaitomo, Bidet with function! (Same specifications photo)
1・2階共、ウォシュレット機能付き!(同仕様写真)
 Entrance. Plenty of storage! (Same specifications photo)
玄関。たっぷり収納!(同仕様写真)
 Intercom with TV monitor! (Same specifications photo)
TVモニター付インターホン!(同仕様写真)
 Balcony facing south! (Same specifications photo)
バルコニー南向き!(同仕様写真)
Otherその他  Compartment figure
区画図
Same specifications photos (Other introspection)同仕様写真(その他内観)  There are two Pledge closet! (Same specifications photo)
納戸2帖あり!(同仕様写真)
Location
|