|
|
Fukuoka Prefecture Kasuga
福岡県春日市
|
|
JR Hakata-Minami Line "Hakataminami" walk 21 minutes
JR博多南線「博多南」歩21分
|
|
Land 50 square meters or more Is situated in a quiet location and traffic volume is less. Solar power Equipped with EV for outdoor electrical outlet is standard! Your choice of field trips, please feel free to contact us.
土地50坪以上 交通量が少ない静かな立地です。太陽光発電 EV用屋外コンセントが標準装備!現地見学のご希望はお気軽にお問い合わせ下さい。
|
|
small ・ Junior high school is near, Commercial facility enhancement! Give monthly electric bill in the solar power generation equipped with you!
小・中学校が近く、商業施設充実!太陽光発電搭載で月々の電気代がお得!
|
Features pickup 特徴ピックアップ | | Measures to conserve energy / Corresponding to the flat-35S / Solar power system / Pre-ground survey / Year Available / Parking two Allowed / Land 50 square meters or more / Energy-saving water heaters / lake ・ See the pond / Facing south / System kitchen / Bathroom Dryer / Yang per good / All room storage / LDK15 tatami mats or more / Japanese-style room / Face-to-face kitchen / Toilet 2 places / Bathroom 1 tsubo or more / 2-story / 2 or more sides balcony / South balcony / Double-glazing / Warm water washing toilet seat / Nantei / Underfloor Storage / The window in the bathroom / Ventilation good / Dish washing dryer / Water filter / City gas 省エネルギー対策 /フラット35Sに対応 /太陽光発電システム /地盤調査済 /年内入居可 /駐車2台可 /土地50坪以上 /省エネ給湯器 /湖・池が見える /南向き /システムキッチン /浴室乾燥機 /陽当り良好 /全居室収納 /LDK15畳以上 /和室 /対面式キッチン /トイレ2ヶ所 /浴室1坪以上 /2階建 /2面以上バルコニー /南面バルコニー /複層ガラス /温水洗浄便座 /南庭 /床下収納 /浴室に窓 /通風良好 /食器洗乾燥機 /浄水器 /都市ガス |
Event information イベント情報 | | (Please be sure to ask in advance) (事前に必ずお問い合わせください) |
Price 価格 | | 25,800,000 yen 2580万円 |
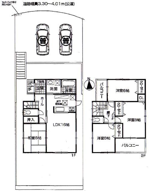
Floor plan 間取り | | 4LDK 4LDK |
Units sold 販売戸数 | | 1 units 1戸 |
Total units 総戸数 | | 1 units 1戸 |
Land area 土地面積 | | 181.36 sq m (54.86 tsubo) (Registration) 181.36m2(54.86坪)(登記) |
Building area 建物面積 | | 98.41 sq m (29.76 tsubo) (Registration) 98.41m2(29.76坪)(登記) |
Driveway burden-road 私道負担・道路 | | 0.42 sq m , North 3.3m width 0.42m2、北3.3m幅 |
Completion date 完成時期(築年月) | | August 2013 2013年8月 |
Address 住所 | | Fukuoka Prefecture Kasuga Shimoshirouzuminami 2-159 No. 2 福岡県春日市下白水南2-161番2 |
Traffic 交通 | | JR Hakata-Minami Line "Hakataminami" walk 21 minutes Yayoi bus "Kasuganishi junior high school before" walk 6 minutes JR博多南線「博多南」歩21分 やよいバス「春日西中学校前」歩6分 |
Related links 関連リンク | | [Related Sites of this company] 【この会社の関連サイト】 |
Contact お問い合せ先 | | I seeds Earl E. (Ltd.) TEL: 0800-602-6802 [Toll free] mobile phone ・ Also available from PHS Caller ID is not notified Please contact the "saw SUUMO (Sumo)" If it does not lead, If the real estate company ボクシーズアールイー(株)TEL:0800-602-6802【通話料無料】携帯電話・PHSからもご利用いただけます 発信者番号は通知されません 「SUUMO(スーモ)を見た」と問い合わせください つながらない方、不動産会社の方は
|
Building coverage, floor area ratio 建ぺい率・容積率 | | 60% ・ 150% 60%・150% |
Time residents 入居時期 | | Consultation 相談 |
Land of the right form 土地の権利形態 | | Ownership 所有権 |
Structure and method of construction 構造・工法 | | Wooden 2-story (framing method) 木造2階建(軸組工法) |
Use district 用途地域 | | One middle and high 1種中高 |
Other limitations その他制限事項 | | Set-back: already セットバック:済 |
Overview and notices その他概要・特記事項 | | Facilities: Public Water Supply, This sewage, City gas, Building confirmation number: No. H25 confirmation architecture Fukuzumi cell this issue 00283, Parking: car space 設備:公営水道、本下水、都市ガス、建築確認番号:第H25確認建築福住セ本00283号、駐車場:カースペース |
Company profile 会社概要 | | <Mediation> Governor of Fukuoka Prefecture (1) the first 017,058 No. I seeds Earl E Co., Ltd. Yubinbango812-0053 Fukuoka Prefecture, Higashi-ku, Fukuoka Hakozaki 2-22-3-103 <仲介>福岡県知事(1)第017058号ボクシーズアールイー(株)〒812-0053 福岡県福岡市東区箱崎2-22-3-103 |