|
|
Fukuoka Prefecture Kasuga
福岡県春日市
|
|
JR Hakata-Minami Line "Hakataminami" walk 20 minutes
JR博多南線「博多南」歩20分
|
|
◆ Of the popular district newly built single-family home! small ・ Junior high school is close to families Caters to a property. ◆ This is useful in life commercial facilities have been enhanced in the vicinity.
◆人気地区の新築一戸建て住宅!小・中学校近くファミリー向きな物件です。◆近くに商業施設が充実していて生活に便利です。
|
|
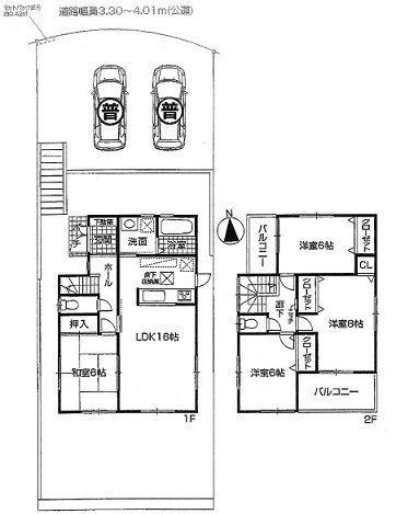
◆ Parking is two spacious car worth! There is also a backyard on the south side. ◆ LDK16 Pledge ・ There are six Pledge greater than or equal to a total room, Is 4LDK margin. ◆ Per during the campaign, It presents one of the air conditioning two or LED lighting 8 places ◆ Kasuga Nishi Elementary School ・ Kasuganishi is a junior high school area.
◆駐車場は広々車2台分!南側には裏庭もあります。◆LDK16帖・全居室6帖以上あり、余裕の4LDKです。◆キャンペーン中につき、エアコン2台またはLED照明8ヶ所のいずれかをプレゼント◆春日西小学校・春日西中学校地域です。
|
Features pickup 特徴ピックアップ | | Corresponding to the flat-35S / Solar power system / Parking two Allowed / Immediate Available / Energy-saving water heaters / Super close / System kitchen / Bathroom Dryer / Yang per good / All room storage / A quiet residential area / LDK15 tatami mats or more / Japanese-style room / Washbasin with shower / Toilet 2 places / Bathroom 1 tsubo or more / 2-story / 2 or more sides balcony / South balcony / Double-glazing / Warm water washing toilet seat / The window in the bathroom / TV monitor interphone / Water filter / City gas フラット35Sに対応 /太陽光発電システム /駐車2台可 /即入居可 /省エネ給湯器 /スーパーが近い /システムキッチン /浴室乾燥機 /陽当り良好 /全居室収納 /閑静な住宅地 /LDK15畳以上 /和室 /シャワー付洗面台 /トイレ2ヶ所 /浴室1坪以上 /2階建 /2面以上バルコニー /南面バルコニー /複層ガラス /温水洗浄便座 /浴室に窓 /TVモニタ付インターホン /浄水器 /都市ガス |
Price 価格 | | 25,800,000 yen 2580万円 |
Floor plan 間取り | | 4LDK 4LDK |
Units sold 販売戸数 | | 1 units 1戸 |
Total units 総戸数 | | 1 units 1戸 |
Land area 土地面積 | | 181.36 sq m 181.36m2 |
Building area 建物面積 | | 98.41 sq m 98.41m2 |
Driveway burden-road 私道負担・道路 | | Nothing, North 4m width 無、北4m幅 |
Completion date 完成時期(築年月) | | August 2013 2013年8月 |
Address 住所 | | Fukuoka Prefecture Kasuga Shimoshirouzuminami 2 福岡県春日市下白水南2 |
Traffic 交通 | | JR Hakata-Minami Line "Hakataminami" walk 20 minutes JR博多南線「博多南」歩20分
|
Related links 関連リンク | | [Related Sites of this company] 【この会社の関連サイト】 |
Contact お問い合せ先 | | TEL: 0800-602-2249 [Toll free] mobile phone ・ Also available from PHS Caller ID is not notified Please contact the "saw SUUMO (Sumo)" If it does not lead, If the real estate company TEL:0800-602-2249【通話料無料】携帯電話・PHSからもご利用いただけます 発信者番号は通知されません 「SUUMO(スーモ)を見た」と問い合わせください つながらない方、不動産会社の方は
|
Building coverage, floor area ratio 建ぺい率・容積率 | | 60% ・ 150% 60%・150% |
Time residents 入居時期 | | Immediate available 即入居可 |
Land of the right form 土地の権利形態 | | Ownership 所有権 |
Structure and method of construction 構造・工法 | | Wooden 2-story 木造2階建 |
Use district 用途地域 | | One middle and high 1種中高 |
Overview and notices その他概要・特記事項 | | Facilities: Public Water Supply, This sewage, City gas, Parking: car space 設備:公営水道、本下水、都市ガス、駐車場:カースペース |
Company profile 会社概要 | | <Mediation> Governor of Fukuoka Prefecture (1) No. 016594 (Ltd.) green Estate Yubinbango810-0012 Fukuoka Chuo-ku, Fukuoka City platinum 2-2-14 <仲介>福岡県知事(1)第016594号(株)ミドリエステート〒810-0012 福岡県福岡市中央区白金2-2-14 |