New Homes » Kyushu » Fukuoka Prefecture » Kasuga


Fukuoka Prefecture Kasuga
Nishitetsu "Tenjinyama" walk 8 minutes
■ New Year Campaign until the end of January! ! ■ Email, Also accepting telephone inquiry! Same specification model house guidance Allowed. Upon request. Please feel free to contact us, Please visit
■ Increasingly Forest City near the property in development! ■ Tenjinyama Small ・ Kasuga South Junior High School!
Price
27,800,000 yen
Floor plan
4LDK
Units sold
1 units
Total units
4 units
Land area
181.46 sq m (registration)
Building area
103.68 sq m (registration)
Driveway burden-road
Nothing
Completion date
February 2014
Address
Fukuoka Prefecture Kasuga white water pond 2
Traffic
Nishitetsu "Tenjinyama" walk 8 minutes
Person in charge
Rep Ide
Contact
(Ltd.) Riva utility Home TEL: 0800-602-6823 [Toll free] mobile phone ・ Also available from PHS
Caller ID is not notified
Please contact the "saw SUUMO (Sumo)"
If it does not lead, If the real estate company
Building coverage, floor area ratio
Fifty percent ・ 80%
Time residents
Three months after the contract
Land of the right form
Ownership
Structure and method of construction
Wooden 2-story (framing method)
Construction
(Ltd.) AST
Use district
One low-rise
Overview and notices
Contact: Ide, Facilities: Public Water Supply, This sewage, Individual LPG, Building confirmation number: No. H25 confirmation architecture Fukuzumi cell this issue 01306, Parking: car space
Company profile
<Mediation> Governor of Fukuoka Prefecture (1) No. 017072 (Ltd.) Riva utility Home Yubinbango811-1314 Fukuoka Prefecture, Minami-ku, Fukuoka City Matoba 2-41-14


Compartment figure

Compartment figure. 27,800,000 yen, 4LDK, Land area 181.46 sq m , Building area 103.68 sq m all three compartments
27,800,000 yen, 4LDK, Land area 181.46 sq m , Building area 103.68 sq m all three compartments

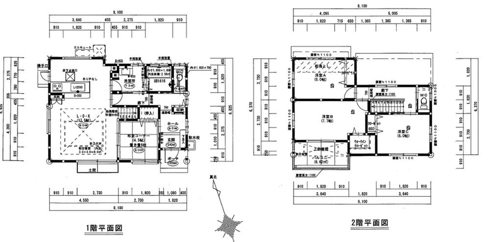
Floor plan

Floor plan. 27,800,000 yen, 4LDK, Land area 181.46 sq m , Building area 103.68 sq m 1 issue areas
27,800,000 yen, 4LDK, Land area 181.46 sq m , Building area 103.68 sq m 1 issue areas

Same specifications photos (appearance)

Same specifications photos (appearance). Same specifications image
Same specifications image

Same specifications photos (living)

Same specifications photos (living). Same specifications image
Same specifications image

Same specifications photo (bathroom)

Same specifications photo (bathroom). Same specifications image
Same specifications image

Same specifications photo (kitchen)

Same specifications photo (kitchen). Same specifications image
Same specifications image

Wash basin, toilet

Wash basin, toilet. Same specifications image
Same specifications image

Other

Other. Same specifications image (entrance approach)
Same specifications image (entrance approach)



Location