New Homes » Kyushu » Fukuoka Prefecture » Kasuya District Hisayama


Kasuya-gun, Fukuoka Hisayama
Nishitetsu "Kamiyamada" walk 4 minutes
The final sale! ! Now remaining 1 buildings. Spacious of more than 70 square meters, It is the house that was rich in land.
Facility ・ Specification is a ready-built properties that fulfilling to both. Some of the parking spaces three clear, Site is.
Local guide map
Local guide map
Features pickup
Year Available / Parking three or more possible / Land 50 square meters or more / LDK18 tatami mats or more / See the mountain / It is close to golf course / Super close / Facing south / System kitchen / Bathroom Dryer / All room storage / Around traffic fewer / Or more before road 6m / Corner lot / Shaping land / Garden more than 10 square meters / Washbasin with shower / Face-to-face kitchen / Wide balcony / Barrier-free / Toilet 2 places / Bathroom 1 tsubo or more / 2-story / South balcony / Zenshitsuminami direction / Warm water washing toilet seat / Nantei / TV monitor interphone / High-function toilet / Leafy residential area / Good view / IH cooking heater / Dish washing dryer / Walk-in closet / Or more ceiling height 2.5m / Water filter / All-electric / All rooms are two-sided lighting / Flat terrain / Development subdivision in
Event information
Local tours (Please be sure to ask in advance) schedule / Every Saturday, Sunday and public holidays time / 10:00 ~ 18:00 Our staff, I will explain at the local. We look forward to your inquiries to the Company.
Property name
Yuniekuseran Hisayama
Price
29,950,000 yen
Floor plan
4LDK
Units sold
1 units
Total units
3 units
Land area
254 sq m (76.83 tsubo) (Registration)
Building area
112.61 sq m (34.06 square meters)
Driveway burden-road
6 m
Completion date
September 2014 early schedule
Address
Kasuya-gun, Fukuoka Hisayama Oaza Yamada shaped Chono basis 712-12
Traffic
Nishitetsu "Kamiyamada" walk 4 minutes
Related links
[Related Sites of this company]
Contact
TEL: 0800-602-2149 [Toll free] mobile phone ・ Also available from PHS
Caller ID is not notified
Please contact the "saw SUUMO (Sumo)"
If it does not lead, If the real estate company
Building coverage, floor area ratio
Ken Pay 50%, Volume of 80%
Time residents
2014 end of September schedule
Land of the right form
Ownership
Structure and method of construction
Second floor wooden ・ Underground 0 stories
Construction
First Home, Inc.
Use district
Urbanization control area
Land category
Residential land
Other limitations
Height minimum Available, Site area minimum Yes
Overview and notices
Building Permits reason: land sale by the development permit, etc., Building confirmation number: No. H24 confirmation architecture Fukuzumi cell this issue 02013
Company profile
<Seller> Governor of Fukuoka Prefecture (1) first home (Ltd.) Fukuoka sales office Yubinbango812-0007 Fukuoka, Hakata-ku, Fukuoka City Higashihie 2-17-15 first floor No. 016465


Local photos, including front road

Local photos, including front road. Local (12 May 2013) Shooting
Local (12 May 2013) Shooting

Garden

Garden. Local (September 2013) Shooting
Local (September 2013) Shooting

Local appearance photo

Local appearance photo. Local (September 2013) Shooting
Local (September 2013) Shooting

Local photos, including front road

Local photos, including front road. Local (September 2013) Shooting
Local (September 2013) Shooting

Indoor (September 2013) Shooting
Indoor (September 2013) Shooting

Indoor (September 2013) shooting dining space

Indoor (September 2013) shooting dining space. Indoor (September 2013) Shooting
Indoor (September 2013) Shooting

Living

Living. Indoor (September 2013) shooting the ceiling and the height is the same, Living room door
Indoor (September 2013) shooting the ceiling and the height is the same, Living room door

Kitchen

Kitchen. Indoor (September 2013) sink of shooting kitchen, Cleaning is effortless person Large.
Indoor (September 2013) sink of shooting kitchen, Cleaning is effortless person Large.

Wash basin, toilet

Wash basin, toilet. Indoor (September 2013) Shooting
Indoor (September 2013) Shooting

Bathroom

Bathroom. Indoor (September 2013) was spacious and shooting, Bathtub.
Indoor (September 2013) was spacious and shooting, Bathtub.

Living

Living. Indoor (September 2013) Shooting
Indoor (September 2013) Shooting

Kitchen

Kitchen. Indoor (September 2013) Shooting
Indoor (September 2013) Shooting

Living

Living. Indoor (September 2013) Shooting
Indoor (September 2013) Shooting

Entrance

Entrance. Local (September 2013) Shooting
Local (September 2013) Shooting

Entrance. Local (September 2013) Shooting
Local (September 2013) Shooting

Garden

Garden. Local (September 2013) Shooting
Local (September 2013) Shooting

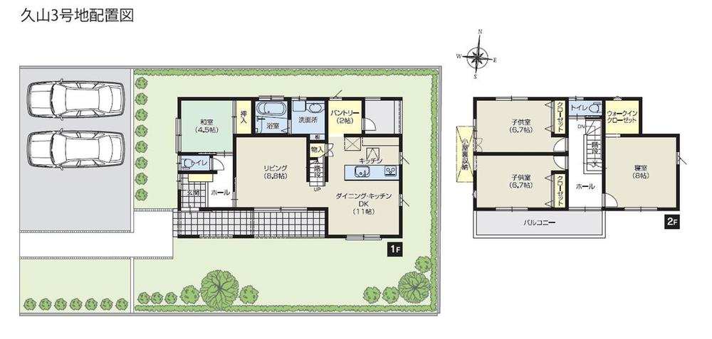
Floor plan

Floor plan. (No. 3 locations), Price 29,950,000 yen, 4LDK, Land area 254 sq m , Building area 112.61 sq m
(No. 3 locations), Price 29,950,000 yen, 4LDK, Land area 254 sq m , Building area 112.61 sq m

Primary school

Primary school. Hisayama Municipal Yamada to elementary school 729m
Hisayama Municipal Yamada to elementary school 729m

Junior high school

Junior high school. Hisayama Municipal Hisayama until junior high school 1159m
Hisayama Municipal Hisayama until junior high school 1159m

Government office

Government office. 1781m until Hisayama office
1781m until Hisayama office

Other Equipment

Other Equipment. With a thermal barrier thermal insulation of high Low-E double-glazing of TOSTEM, Comfortable to keep the room temperature, Reduce the condensation, The year comfortably spend.
With a thermal barrier thermal insulation of high Low-E double-glazing of TOSTEM, Comfortable to keep the room temperature, Reduce the condensation, The year comfortably spend.

Other Equipment. Takara Standard "Ofelia" is, It stuck to the ease of use and storage. Clean up Ease rear also with dishwasher.
Takara Standard "Ofelia" is, It stuck to the ease of use and storage. Clean up Ease rear also with dishwasher.

Other Equipment. Karari floor ・ Thermos bathtub ・ Water-saving shower ・ Bathroom heating dryer ・ That is a system bus high-feature-packed, such as clean door.
Karari floor ・ Thermos bathtub ・ Water-saving shower ・ Bathroom heating dryer ・ That is a system bus high-feature-packed, such as clean door.

Local guide map
Local guide map

Other Equipment. Sefi on Detect ・ Tornado cleaning ・ Borderless shape ・ deodorize ・ Toilet is a high-performance full of comfort features, such as antibacterial toilet seat.
Sefi on Detect ・ Tornado cleaning ・ Borderless shape ・ deodorize ・ Toilet is a high-performance full of comfort features, such as antibacterial toilet seat.

The entire compartment Figure

The entire compartment Figure. The final sale! ! Now remaining 1 buildings.
The final sale! ! Now remaining 1 buildings.



Location